Dům s loftem - rekonstrukce pozdně secesního domu

Pozdně secesní dům architekta Felixe Neumanna je nemovitou kulturní památkou. Bylo nutno jej komplexně rekonstruovat a oživit. Původní zdobná fasáda byla zachována. Hlavní platformou domu se stal nový loftový byt na střeše, který využil starý zatuchlý krov a neprosluněné páté podlaží. Skleněná fasáda loftu přes obě podlaží propojuje exteriér Masarykova náměstí a domu. Vzniklá venkovní terasa je stíněná pevnými hliníkovými lamelami v rovině původní střechy.

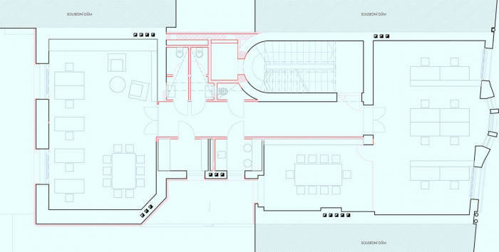
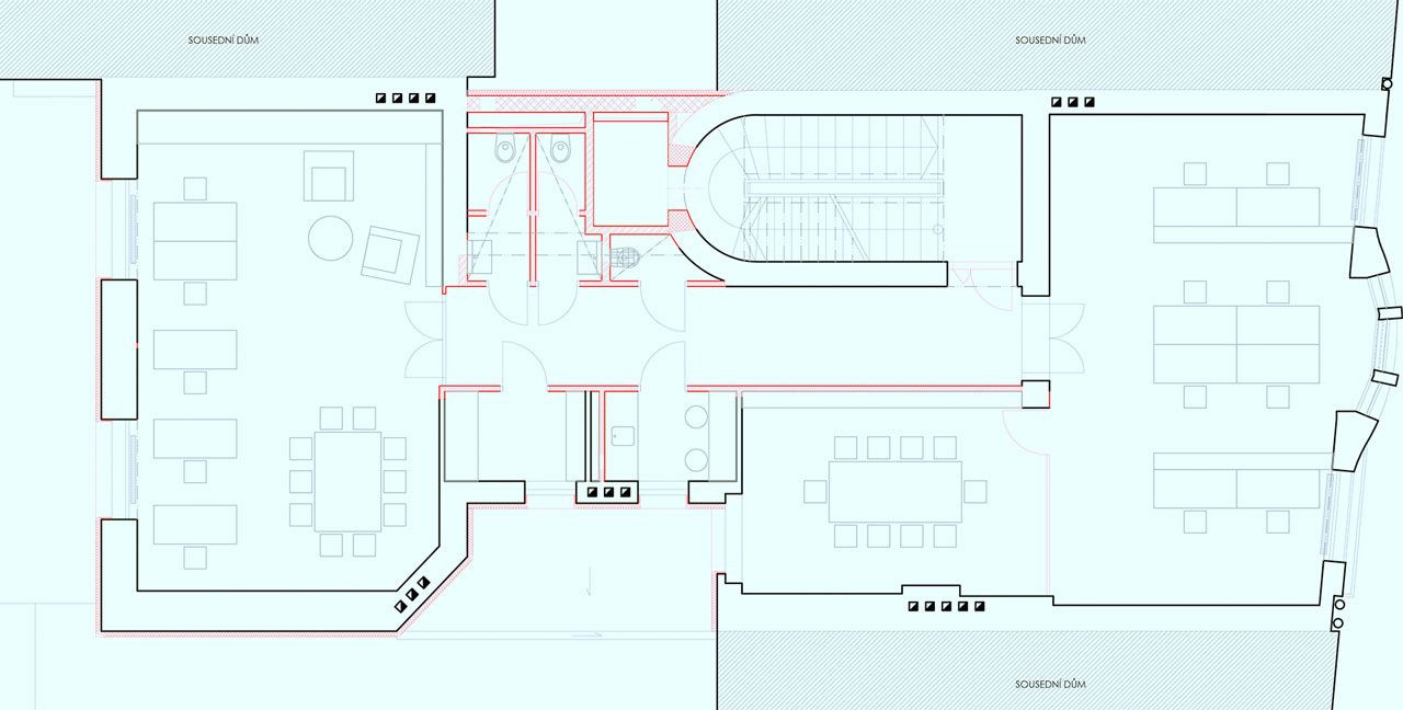
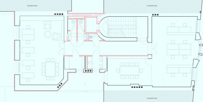
Modernizace domu č.p.38 spočívá především ve kvalitním vnitřním prostředí při zachování principu původní dispozice a rozšíření využitelných ploch. Dům je doplněn o výtah obsluhující všechna podlaží na mezipodestách. Je umístěn ve volném prostoru světlíku za schodištěm. Zbytek světlíku je využit k rozšíření sociálního zázemí v jednotlivých patrech.

Po všech analýzách a rozborech jsme vytvořili několik alternativ, jak pojednat nově hmotu střechy tak, abychom využili střešní (půdní) prostory. Naším cílem bylo najít využití pro 5. n. p. a 6. n. p. v podobě kvalitního bydlení z důvodů vylidňování stálých obyvatel z centra města. Dům za současných hygienických standardů nešel v jeho plné míře využít pro bydlení. Ale v zájmu historického centra je sem bydlení dostat. Náš návrh spočívá ve vytvoření loftového bytu přes obě podlaží, který byl třeba přímo prosvětlit a proslunit. Tento princip uspořádání vychází ze stávajícího řešení půdního prostoru, který má rovněž vstup z centrálního schodiště v 5.n.p. a je propojen vnitřním schodištěm do 6.n.p. Při zachování celé střechy v původní podobě by nebylo možné tyto prostory dlouhodobě využít a staly by se tak mrtvými prostorami domu. Náš návrh citlivě zachovává obrys mansardové střechy a v žádném případě nenarušuje celkový dojem ve vnímání této střechy z prostoru náměstí. I přes vložení svislé skleněné stěny je zachován původní obrys mansardy. Šikmé venkovní lamely potřebné pro stínění (celá fasáda je na jižní straně) vytvářejí vertikální členění v původní rovině střešní roviny. Tímto zásahem dojde k plnohodnotnému využití a oživení celého domu i k oživení náměstí novými prostory pro bydlení, vycházející z potřeb 21. století, v symbióze se stávající kulturní památkou. Myslíme si, že celý návrh je přínosem moderního způsobu obnovy a využití kulturních památek a může se stát příkladem citlivého zacházení s historicky významnými prvky.

  • Autoři: David Průša, Alena Mazalová
  • Ateliér: PLATFORMA ARCHITEKTI
  • Země: Česká republika
  • Realizace: 2015
  • Město: Ostrava
  • Ulice, číslo: Masarykovo náměstí
  • Realizace: 2015
  • Užitná plocha: 1 108.00m2
  • Zastavěná plocha: 230.00m2
  • fotografie: Jakub Zdechovan, Vizualizace: Martin Budina
Generální partner
Hlavní partneři