Ellement architects - Výrobní a administrativní objekt firmy Pilana Karbid v Hulíně
PILANA Karbid s.r.o. je mladá rodinná česká firma zabývající se výrobou karbidových nástrojů. Firma sídlí v historickém továrním areálu nedaleko Hulína s 85 letou tradicí výroby řezných nástrojů. Za osm let své existence došlo k rozvoji výroby a ve firmě je dnes zaměstnaných 45 lidí. Díky tomuto rozvoji přestaly původní prostory dostačovat a vznikla potřeba vybudovat nový objekt. Ve dvou etapách vznikla nová hala a na ní navazující administrativní budova. I přes rychlý růst zůstala ve firmě potřeba být si na blízku. Komunikace uvnitř budovy a snaha zachovat mezi lidmi přiměřenou vzdálenost a vizuální kontakt, se proto stala hlavním tématem architektonického návrhu.
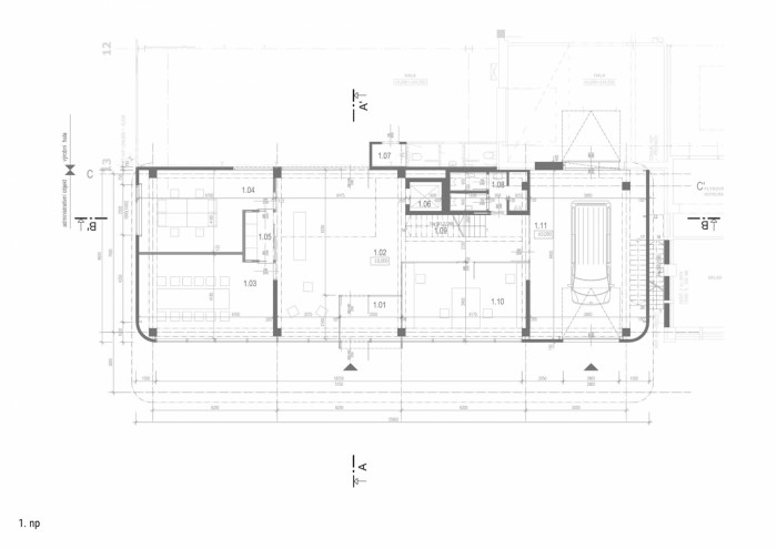
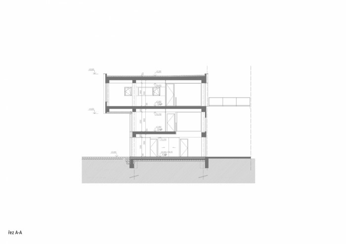
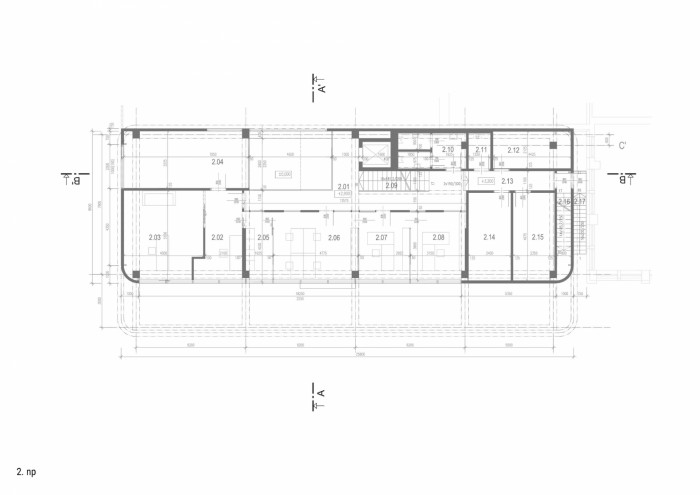
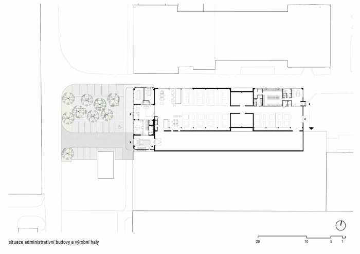
Tovární areál PILANA je zastavěným a vytíženým prostorem. Pro novou stavbu bylo důležité zohlednit omezený prostor bez perspektivy dalšího růstů do okolí. Na parcele o rozměru 2450 metrů čtverečních vznikla nejdříve jednopodlažní hala a na ni navázala třípodlažní stavba s předsunutým/převislým horním patrem, které je možné v budoucnosti doplnit o další poschodí a předprostorem. Hala obdélníkového půdorysu splňuje přísné požadavky pro výrobu. Je zde dostatek denního světla, které proniká hlavními okny a světlíky záměrně orientovanými na severní stranu. Prostor je přehledný a čistý s celoročně stabilní teplotou pohybující se okolo 24° C. Hala má pochozí zelenou střechu a je opláštěná sendvičovými panely, které přechází na administrativní část.
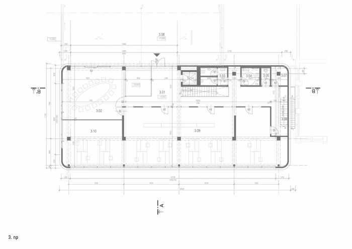
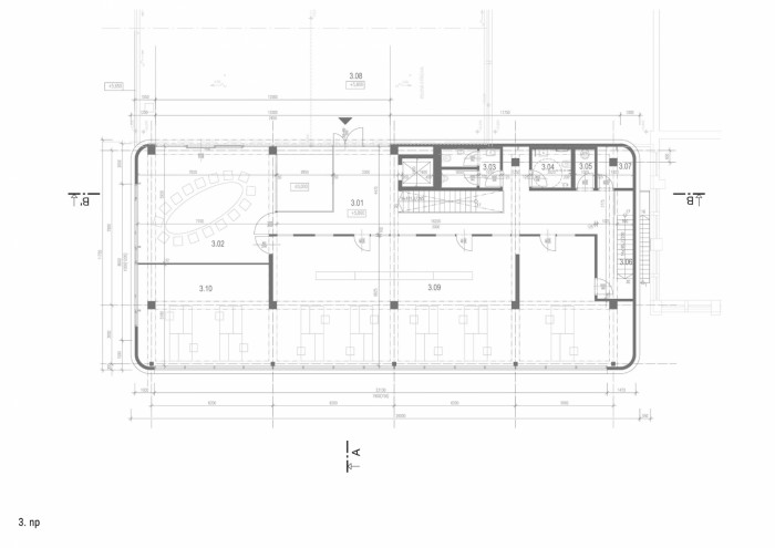
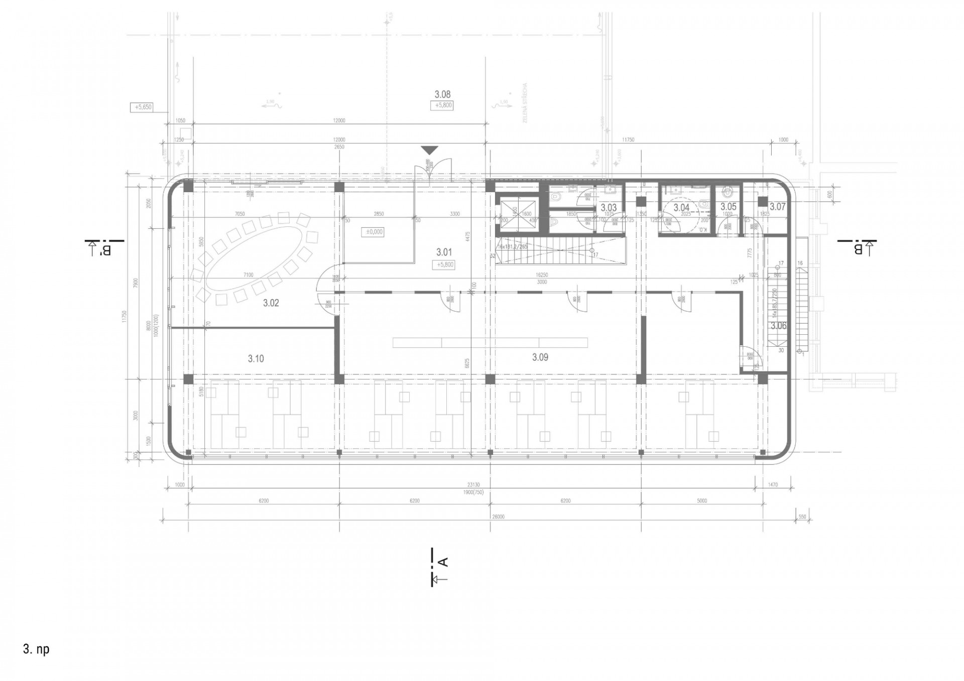
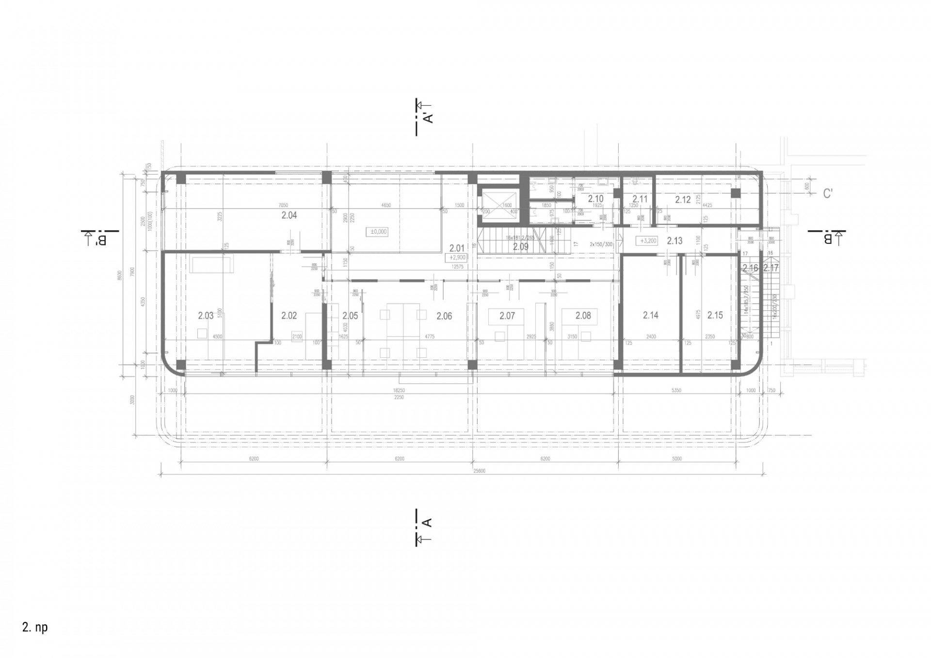
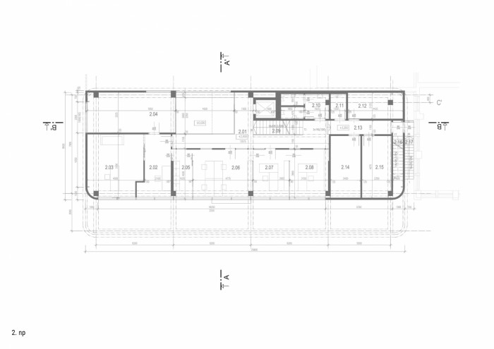
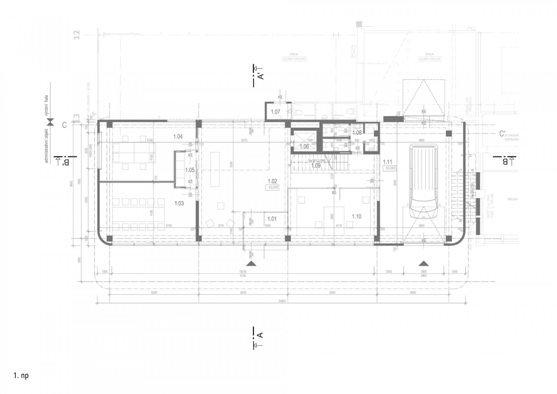
Třípodlažní budova administrativy je monolitickým betonovým skeletem, který je přiznaný v interiéru. Jednotlivé kanceláře mají svým rozměrem a nízkou světelnou výškou blíže pokojům v rodinných domech než v rozlehlých openspace. Důležitým komunikačním prvkem uvnitř objektu je malé zastřešené atrium, jímž proniká světlo. Stěny halové i administrativní části jsou ve velké míře transparentní, jen výtahová šachta a vstup do domu je zvýrazněný modrou firemní barvou. Z jedné budovy je možné vidět do druhé a naopak, průhled na pracující firmu funguje také z exteriéru. Návštěvník vidí pohyb v budovách a naopak zaměstnanci vidí na přicházející. V atriu jsou ochozy fungující jako místo setkávání a zároveň cesta na zelenou střechu, ze které je vidět až na Hostýnské vrchy.
Společně s novými objekty došlo i k úpravě přiléhajícího parkoviště. I zde je pracováno s podobnými křivkami jako na administrativní budově, zároveň jsou zde vysázeny stromy, které by měly doplňovat zeleň na střeše.
- Autoři: Hana Maršíková, Jitka Ressová, Jan Pavézka
- Ateliér: Ellement
- Spolupráce: Kateřina Páterová, Jakub Bachman, Ondřej Stolařík
- Země: Česká republika
- Město: Hulín
- Ulice, číslo: Nádražní 804
- PSČ: 76824
- Datum projektu: 2016
- Realizace: 2019
- Užitná plocha: 367.00m2
- Zastavěná plocha: 327.00m2
- Spolupracovali ing. Pavel Ohnoutek / stavební profese, ing. Pavel Gurecký / statika /: //www.ixy.cz">www.ixy.cz
Související projekty
Související architekti
Související ateliéry a firmy
Mohlo by vás zajímat