Frami D | Frami D office house Finsko
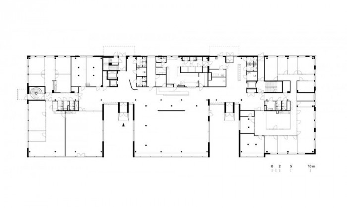
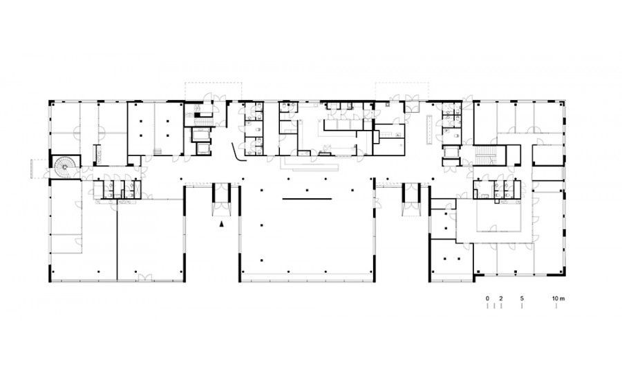
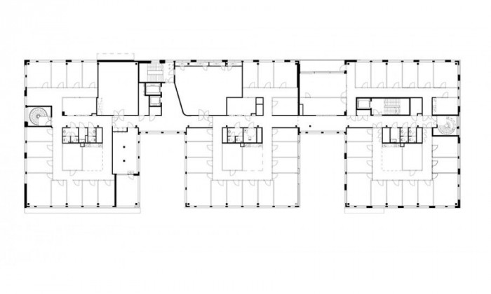
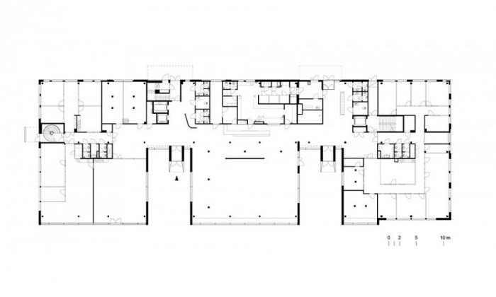
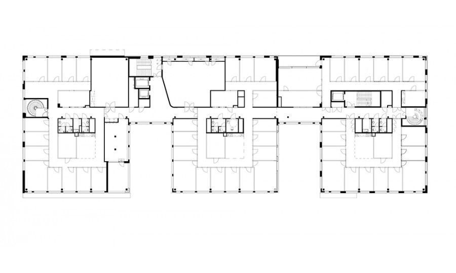
Prostory Frami D jsou designované pro to, aby poskytovaly útočiště společnostem a obchodníkům s pestrou nabídkou služeb pokrývajícími všechna možná přání zákazníků. Prostory jsou tedy i navrženy tak, aby šly jednoduše upravovat a měnit. Budova má od čtyř do osmi pater. Uvnitř je možné například vybudovat samostatné kanceláře nebo openspace prostory pro stovky zaměstnanců.
Koncept celého prostoru je založen hlavně na tom, aby šlo každé patro flexibilně variovat podle jednotlivých potřeb společností. V přízemí je situován hlavní vchod a společné prostory, jako je kavárna a otevřené prostory pro setkávání. Interiér je vybaven čistě a jednoduše, místně prosvícen a zpestřen vertikálními červenými předěly.
Budova se nachází na území někdejší zemědělské půdy, do které se po několik bývalých dekád město rozrůstalo. Materiály, ze kterých je stavba vybudována, byly speciálně vybírány tak, aby seděly k okolnímu vekonvskému prostředí a zároveň odpovídaly charakteru rozšiřujícího se města.
Využití vzorovaného skla a položení cihel bylo zvoleno kvůli dlouhé trvanlivosti a odolnosti. Přesná struktura budovy je obložena tmavě červenými, ručně vyrobenými cihlami na osmipatrové jednotce a východní fasádě; vzorované sklo tvoří západní stěnu a stěny kolem vchodu, zatímco vstupní cesty a podlahu v přízemí pokrývá malba v jasných barvách.
- Autoři: Anssi Lassila, Rainer Mahlamäki
- Ateliér: OOPEAA Office for Peripheral Architecture
- Země: Finsko
- Město: Seinäjoki
- Datum projektu: 2007
- Realizace: 2009
- Zastavěná plocha: 12 000.00m2
Související architekti
Související ateliéry a firmy
Mohlo by vás zajímat