JRKVC - IST Rodinný dům

Jednoduché zadanie: chcem bývať v malom dome na malom pozemku za rozumné náklady. Budget je pevne stanovený na 75.000€. V hlave mi stále rezonuje spomienka na leto a vidiek.. Dá sa recyklovať typológia, tvaroslovie či dekor slovenskej ľudovej architektúry?

V ľudovej architektúre sú zakódované vekom overené princípy, ktoré sú ešte stále aktuálne, špeciálne v kontexte potreby zmenšovania našej ekologickej stopy. Väčšie nie je vždy lepšie…

Ľudová architektúra je charakteristická svojim prispôsobením sa prostrediu. Nikdy nebojovala s prírodou, ale stala sa jej súčasťou, na čo sa pri novostavbách dnes často zabúda. Bola stavaná z miestnych materiálov, ktoré boli ľahko dostupné a nepotrebovali dlhú a náročnú prepravu. Stavalo sa s ohľadom na poveternostné podmienky a využívala takmer všetky výhody, ktoré prostredie ponúkalo. Nikdy sa nerobili náročné terénne úpravy. Drevo, hlina i slama ako základné stavebné materiály májú dobré tepelnoizolačné vlastnosti a pomáhali tak šetriť na kúrení spolu s malými oknami. Okná nemali také dobré vlastnosti ako dnes, zato boli pomerne malé (žilo sa vonku, takže z hygienického hľadiska vyhovovali). Kontakt s prostredím aj v zime zabezpečoval gánok, či podstrešná pavlač. - Ľudová architektúra na slovensku

Foto: EARCH

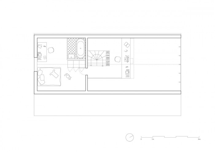
Obzreli sme sa späť a navrhli domček, ktorý je rurálny i moderný. Má sedlovú strechu, gánok, farebné bodové okná. Tradičnú trojpriestorovú schému izba—pitvor—komora sme zamenili za izba—vstup/hygiena—obývačka. Podkrovie je čiastočne obytné, nad obývacou izbou je otvorené. Pôdorysne skromný priestor dennej časti je kompenzovaný grandióznym zasklením do záhrady v celej ploche rezu domom. Gánok plní tradične funkciu nárazníkovej zóny medzi exteriérom a interiérom. Malý domček tak získava ďalší vzácny priestor použiteľný aj počas nepriazne počasia.

Technologicky je domček veľmi jednoduchý. Ľahká drevená konštrukcia je doplnená masívnou liatou betónovou podlahou s integrovaným vykurovaním. Interiér je vložený, obligátna preglejka bude opäť plniť konštrukčne estetickú funkciu vo forme stien, podláh či nábytku.

Foto: EARCH

Foto: EARCH

Generální partner
Hlavní partneři