Rodinný dům ve Smilovicích

Návrh rodinného domu vychází z principů beskydské lidové architektury, stavební pozemek totiž leží na okraji obce Smilovice v Chráněném krajinné oblasti Beskydy.

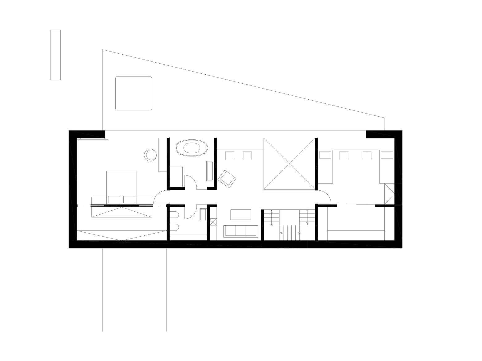
Skrz řešenou parcelu navíc prochází nadzemní vedení vysokého napětí, jehož ochranné pásmo bylo nejdůležitějším parametrem při umístění rodinného domu na pozemku. Objekt rodinného domu je navržen jako kompaktní jednopodlažní stavba s obytným podkrovím. Obdélníková hmota domu je ukončena sedlovou střechou, doplněnou o pultový vikýř na jižní straně. Dispozičně je dům členěn velmi jednoduše – v přízemí je společenská zóna s hlavním obytným prostorem s výstupem na terasu, v podkroví jsou umístěny ložnice. Přízemí i podkroví jsou prosklenými plochami orientovány k jihu a k výhledu na panorama Beskyd.

Majitelé domu, manželé Kapitanovovi, měli od počátku spolupráce vztah k moderní architektuře a zároveň cit pro detaily a současné technologie, a to se odrazilo v konečné podobě domu.
- Autoři: Kamil Mrva
- Ateliér: Kamil Mrva Architects
- Spolupráce: Veronika Bezděková, Jaroslav Holub, Tomáš Šenovský, Monika Drholecká
- Země: Česká republika
- Realizace: 2014 - 2018
- Projekt: 2014
- Město: Smilovice
- Projekt: 2014
- Realizace: 2014–2018
- Fotograf: Libor Stavjaník / Studio Toast
Související projekty
Související architekti
Související ateliéry a firmy
Mohlo by vás zajímat

















