Jedním z hlavních výrazových prostředků návrhu je přiznání „hardwaru“ stavby, tedy konstrukcí a technologického vybavení kanceláří. Původní ocelové konstrukce jsou natřené na bílo a ukázané jako pohledové, ve stropech není užito podhledů, veškeré rozvody jsou viditelné, ponechané ve své přirozené barevnosti.

Také zvolené materiály sledují nastavenou „estetiku přiznaného“, surovou fyzičnost povrchů je možné chápat i jako harmonickou protiváhu virtualitě firemních produktů. V 1. NP je podlaha z průmyslové lakované cementové stěrky, v 2. NP z olejovaných modřínových podlahových palubek „céčkové“ kvality. Vnější zeď s okny je ponechána ve štuku bez finální výmalby. Sklad kol je oddělen přepážkou z tahokovu v rámu z ocelových jeklů, vestavba v přízemí je obložena hliníkovým plechem. Vestavba recepce je provedena z lakované smrkové překližky. Kuchyně a vestavba schodiště jsou z lamina (antracit). Dělící stěny pracovišť jsou z příčkovek Ytong, stříkaných šedou barvou s přiznanou strukturou (tj. bez omítky). Ocelová konstrukce je těmito příčkami vyplněna metodou hrázdění. Příčky menších zasedaček jsou natřeny antracitovou barvou. Hmota toalet je obložena stejným typem dřeva, které je použito na podlahu.

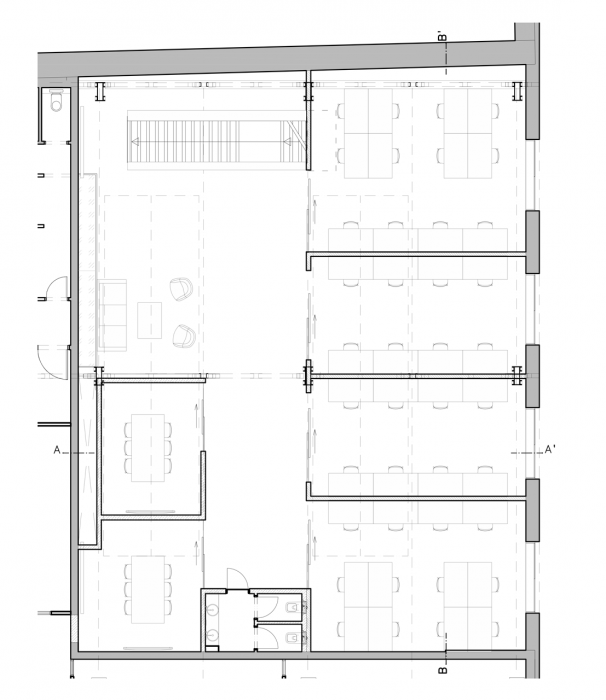
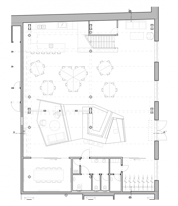
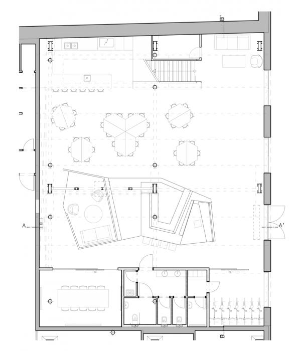
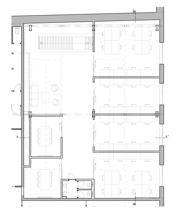
Přestože šlo o „pouhé“ zařízení interiéru, tématem bylo také hmotové uspořádání vestaveb v obou patrech a práce s přirozeným osvětlením. S výjimkou akustické ytongové příčky oddělující jednotlivá pracoviště ve 2. NP jsou jednotlivé elementy dispozice chápány jako objekty vložené do velkého prostoru haly, samostatně zastropené pod skutečným stropem (v 1. NP), nebo beze stropu, otevřené dennímu světlu (zasedačky ve 2. NP). Aby denní světlo ze stropních světlíků mohlo pronikat i do spodního podlaží, byl ve 2. NP u zadní stěny vyříznut v podlaze podlouhlý otvor.

V souladu s pravidelnou fasádou je interier přízemí dělen na 4 odlišně definované zóny:

plechová vestavba, ve které je sklad kol, šatna se sprchou, WC a větší zasedací místnost dřevěná vestavba s recepcí, odpočinkovým a barovým sezením a relaxační místností jídelna s modulárními stoly a projekčním plátnem vestavba schodiště, pod kterým je kuchyň s barem a sklad

Generální partner
Hlavní partneři