Kláštor v Zdislave
Lokalita
Bývalý statok sa nachádza priamo naproti kostolu Sv. Jána Krstiteľa v obci Zdislava. Leží v údolí Zdislavského potoka a nad ňou sa tiahne Ještědsko-kozákovský hřbet. Kostol, statok a malý park uprostred dohromady tvoria náves. Zaujímavé interiéry, klenby a drevené krovy tvoria základ premeny objektu na cisterciánsky kláštor. Po dlhom uvažovaní o prípadnej funkcii som dospel k tomuto rozhodnutiu a myslím, že to má opodstatnenie v rámci objemu hmôt, ich usporiadania a lokality. Rád by som totiž posílil vieru a náboženské cítenie obyvateľov tohto kraja. Zasial nejaké zrnko.
Zdislava je známa ako bývalé pútnické miesto. Obraz, ktorý visí v kaplnke v lese je zázračný a Panna Mária skrz neho už vyliečila niekoľko ľudí. Zároveň aj názov obce nesie meno podla Sv. Zdislavy z Lemberka (bývalý Krásny potok). Preto myslím, že práve v Zdislave by mohlo byť to pravé miesto pre duchovný priestor, a tak aj znovuzrodenie pútnického miesta. Rád by som aby sa Zdislava a tento kostol stali takýmto centrom viery v blízkej budúcnosti.
Pápež Pius XI. napísal:
Od najstarších dôb sa tento (kontemplatívny) spôsob života, najviac dokonalý a užitočný pre celé kresťanstvo, prínosnejší, než si ktokoľvek dokáže predstaviť, v cirkvi zakorenil a rozšíril do všetkých strán …Pre celé kresťanské spoločenstvo povstal z tejto inštitúcie nezmerateľný úžitok, pretože zmysel existencie mníchov žijúcich v súkromí svojich cieľ, nezaťažených výkonom žiadnej viditeľnej služby a nemajúcich s ňou čokoľvek spoločné, spočíva v jej sústredenosti na veci nebeské. Pre cirkev bolo veľmi dôležité obnoviť tento najviac svätý spôsob života v jeho pôvodnej sile, aby už nikdy nenastal nedostatok ľudí zasvätených modlitbe, ktorí neustále vyprosujú Božiu milosť, a tak z nebies priťahujú všetok možný úžitok pre ľudí, ktorí príliš nedbajú o svoju spásu…Prajeme si, aby sa tak cenná inštitúcia rozmáhala a rozrastala. Ak bola niekedy v cirkvi Božích pustovníkov tohto druhu potreba, tak je to práve dnes, kde toľko kresťanov povoľuje uzdu svojim túžbam po pozemskom bohatstve a rozkošiach tela…
Objekt
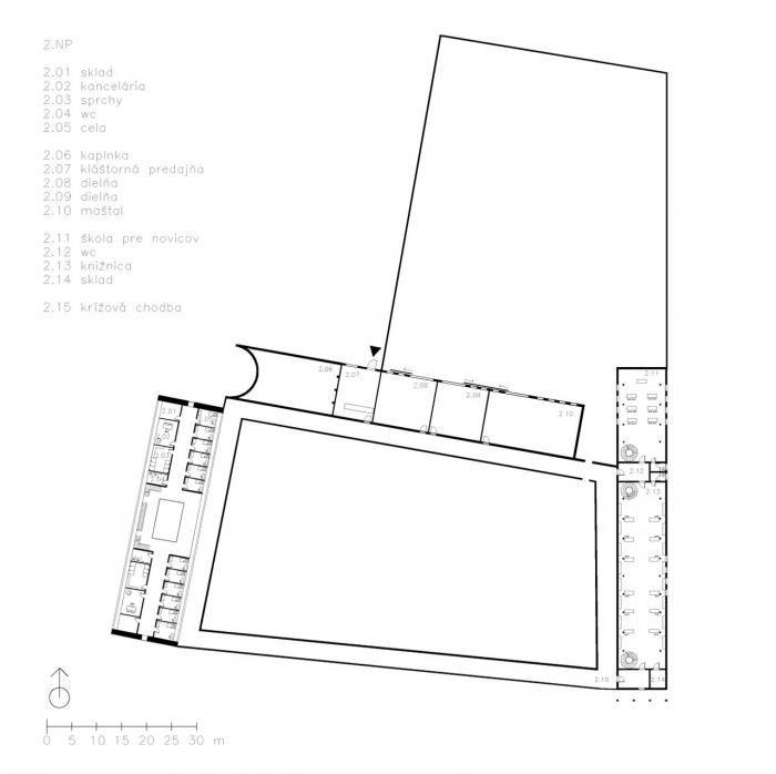
Po odstránení rozpadnutých objektov som pristúpil k rekonštrukcii. V rámci objemov som doplnil vyšší krov, kaplnku a spojovaciu chodbu, ktorá spája jednotlivé budovy do jedného celku. Kompletne zachovávam spodné podlažie so zaujímavými klenbami v objekte najbližšie pri kostole, na ktoré nadstavujem krov. Tak isto ponechávam objekt na opačnej strane, s ktorého vznikla knižnica.K rozpadnutým bývalým stodolám pristavujem kaplnku, ktorej tvar je akoby odtrhnutý od kostola sv. Jána Krstiteľa. Cisterciánsky rád sa riadi heslom „Ora et labora“, teda „Modli sa a pracuj“, čo je podporené dielňou, nachádzajúcou sa vedľa maštale, veľkou záhradou uprostred krížovej chodby a pašou za objektom. Takéto kláštory sú jednoduché, čisté a zbavené všelijakej výzdoby.
autor: Patrik Kovaľ / 4. ročníkateliér: Fránek / Raková
- Autoři: Patrik Kovaľ
- Země: Česká republika
- Škola: FUA TUL – Ateliér Fránek & Raková
- Město: Křižany
- Ulice, číslo: Zdislava
- Datum projektu: 2016
Související projekty
Související architekti
Mohlo by vás zajímat