majo architekti - Obecní knihovna ve Statenicích

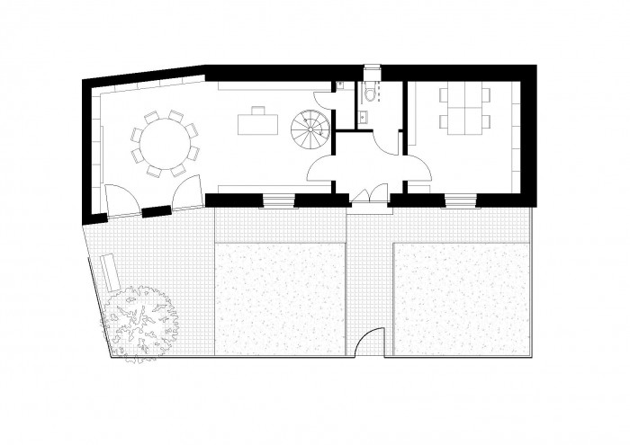
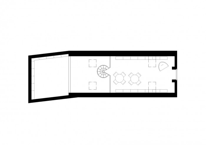
Obecní knihovna stojí ve dvoře obecního úřadu ve Statenicích. Vzniká na půdorysu staršího domečku a nové přístavby rozšiřující jeho užitnou plochu.

Lehká dřevostavba přístavby se stáčí společně s hranicí pozemku a je opláštěna falcovanou plechovou krytinou z předzvětralého titanzinku. Plech zrdcadlí oblohu a stíny vzrostlých jasanů. Stávající část byla renovována v původním duchu.

Před knihovnou, která bude sloužit i volnočasovým aktivitám, setkáváním a dětským kroužkům, jsme obnovili zahrádku s lavičkou a ovocným stromem. 

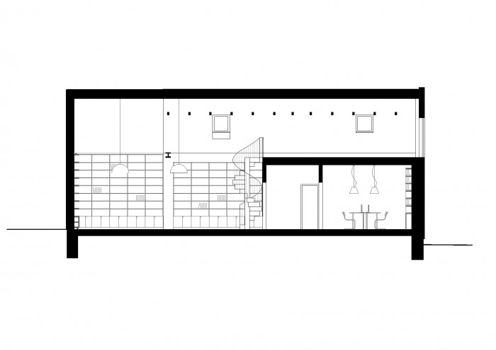
Uvnitř je nad vstupem a studovnou umístěno nízké patro pro dětské kroužky přístupné po ocelovém točitém schodišti. Hlavní část knihovny je převýšená do prostoru krovu, kam proniká denní světlo střešními okny. Prostor lemují vysoké regály knihovny ze světlé březové překližky. Starší zdivo bylo zbaveno omítky a opatřeno vápenným fasádním nátěrem.

  • Autoři: Jan Jaroš, Martin Poláček
  • Ateliér: majo architekti
  • Země: Česká republika
  • Realizace: 2020
  • Ulice, číslo: Statenická 23
  • Datum projektu: 2014
  • Realizace: 2020
Generální partner
Hlavní partneři