Majo - Dům pod třešní

Jedná se o novostavbu malého rodinného domu, který bude sloužit především k individuální rekreaci. Dům stojí na v obci Senotín, v sousedství drobné rekreační chaty, která již na pozemcích stála.
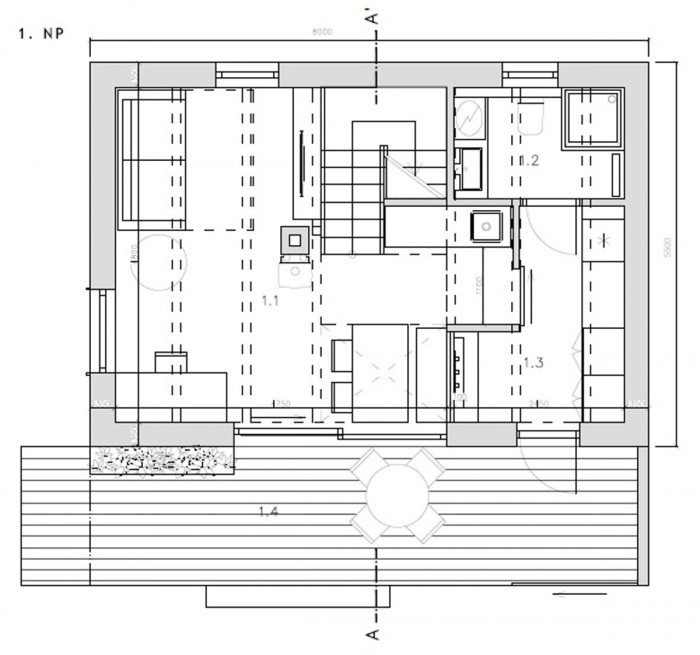
Dům je orientován podélně - rovnoběžně s vrstevnicí svahu. Je umístěn v zadní části pozemku zhruba 25 metrů od obecní komunikace. Novostavba respektuje charakter a měřítko okolní zástavby. Zastavěná plocha je pouhých 44 metrů čtverečních (včetně přesahu střechy a terasy pak 62 metrů čtverečních). Má tradiční vesnickou sedlovou střechu se skládanou cementovláknitou krytinou.
Fasáda je obložena dřevem se šedobílým a přírodním nátěrem. Jednoduchý objem vesnického domu je doplněn zapuštěným zápražím – venkovní terasou pod přesahemstřechy s výhledem na zahradu a centrum obce.
Mohlo by vás zajímat
























