Rusina Frei architekti - Revitalizace areálu Sokolovny v Rokycanech
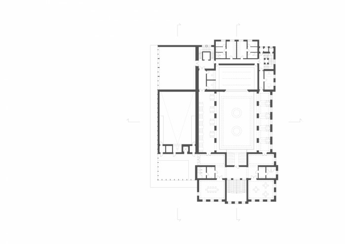
Stará sokolovna nemá v relativně úzké Jiráskově ulici dostatečný předprostor. Demolicí technicky, ekonomicky a provozně nevyhovujících dostaveb ze 20. století se na východní straně budovy otevírá prostor pro novou nástupní piazzettu, pozvolně stoupající k novostavbě kulturního centra.
Vstup do kulturního centra je umístěn v rohu novostavby, tak aby byl přístupný po piazzettě od parkoviště i po schodech přímo z ulice. Mírný sklon piazzetty zajišťuje bezbariérový přístup jak návštěvníkům, tak i účinkujícím. Schody na piazzettu za novostavbou zajišťují prostupnost územím směrem od Jižního předměstí. Piazzetta slouží také pro pořádání venkovních kulturních a společenských akcí. Předpokládá se možnost zřízení venkovního mobilního pódia a hlediště v přirozeném spádu. Pod novostavbou je umístěn podzemní parking s kapacitou 24 míst, částečně využívající prostor dnešního suterénu.
Historická budova sokolovny je očištěna od nekoncepčních stavebních zásahů a jsou obnoveny její architektonicky hodnotné prvky, zejména neorenesanční fasáda, interiér sálu a foyer. K dispozičním změnám dochází jen minimálně. Vnitřní prostory jsou pojednány architektonicky soudobě s respektem k historickému dědictví.
Architektura novostavby je klidná a jednoduchá. Výškové členení fasád navazuje na římsy historické budovy. Přes prosklené plochy vestibulu a tanečního studia se propisuje hmota malého sálu, zvenčí opláštěná mosaznými deskami. Lehkost a transparentnost přístavby podporuje solidnost historické stavby.
Stará budova je využita hlavně pro velký společenský a divadelní sál s odpovídajícím jevištěm a scénickou technikou. Do novostavby jsou kromě vestibulu umístěny pouze víceúčelový malý sál, zázemí účinkujících a taneční studio. Umístění novostavby podél východní strany staré budovy dovoluje důsledně zkrátit provozní cesty a v plné míře propojit starý a nový objekt, aniž by docházelo ke křížením provozů. Obě budovy tvoří jeden funkční celek. Sály lze propojit do jednoho velkého společenského prostoru na úrovni parketu.
Stará budova je zachována, zásahy do historických konstrukcí jsou minimální. Obnoveny jsou historické vápené štukové fasády i dřevěné výplně oken a dveří. V interiéru společenské části jsou použity omítky se štukovými prvky a leštěné vápenné omítky (stucco lustro), na podlaze je terrazzo a dřevěný parket. Krov je dřevěný, se skládanou krytinou.
Novostavba má železobetonovou monolitickou stěnovou konstrukci, částečně přiznanou v interiérech. Vnitřek malého sálu je v přízemí obložen dřevem, v horní části měkkým akustickým obkladem. Prosklené části fasád tvoří hliníkový lištový systém s venkovními vertikálními hliníkovými lamelami, které se uplatňují i v plých plochách. Venkovní obklad malého sálu je proveden z panelů z mosazného plechu. Průběžná venkovní markýza je ze svařovaného nerezového plechu. Piazzetta je vydlážděna velkoformátovou betonovou dlažbou.
Z hodnocení poroty
Porota považuje tento návrh za jedno ze dvou nejlepších řešení vzešlých ze soutěže. Návrh citlivě vstupuje do stávajícího prostředí, zachovává a renovuje celou budovu staré sokolovny, kterou prostorově v maximální míře využívá. Místo přístaveb ze 70. let minulého století vzniká přístavba nová, která citlivým způsobem navazuje na historickou budovu, působí důstojně vzhledem k místu, na kterém se nachází, kultivuje a oživuje plochu v blízkosti centra města. Z hlediska urbanismu návrh nevytváří z žádného směru bariéru. Velmi zdařilé je dispoziční řešení, vzniklé prostory jsou přehledné, jasné a nejsou předimenzované. Vítězný návrh nabízí propojení obou sálů a využití celého prostoru společně.
- Autoři: Martin Rusina, Martin Frei, Gabriela Sládečková
- Ateliér: Rusina Frei architekti
- Spolupráce: Magdaléna Fiurášková, Vojtěch Vondra
- Země: Česká republika
- Město: Rokycany
- Datum projektu: 2021
- Poznámka: Návrh získal 1. cenu v architektonické soutěži
Související projekty
Související architekti
Související ateliéry a firmy
Mohlo by vás zajímat