Mateřská škola Klecany

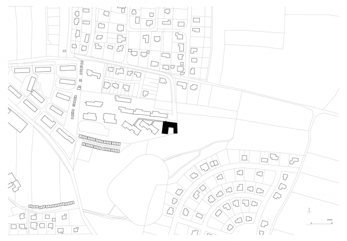
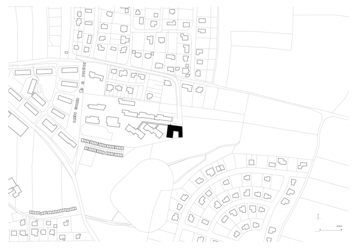
Stavba se nachází ve východní části areálu základní a mateřské školy v Klecanech.
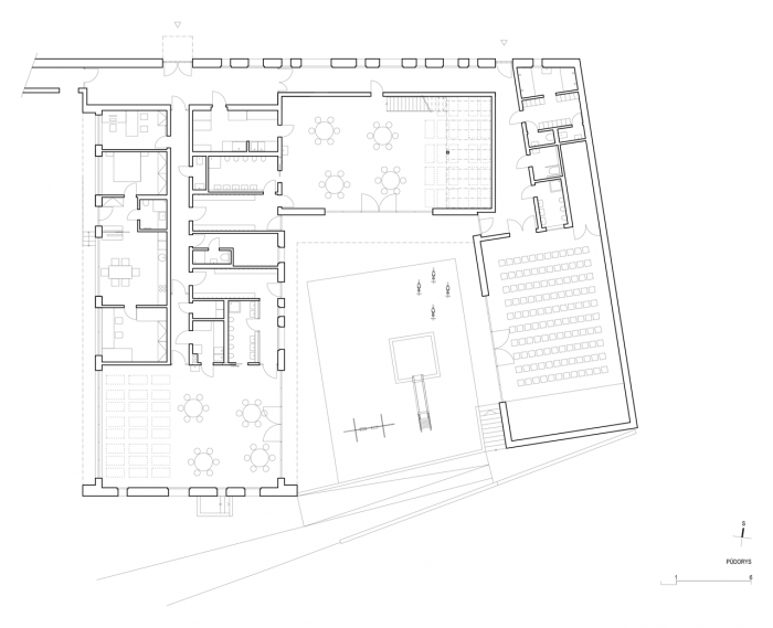
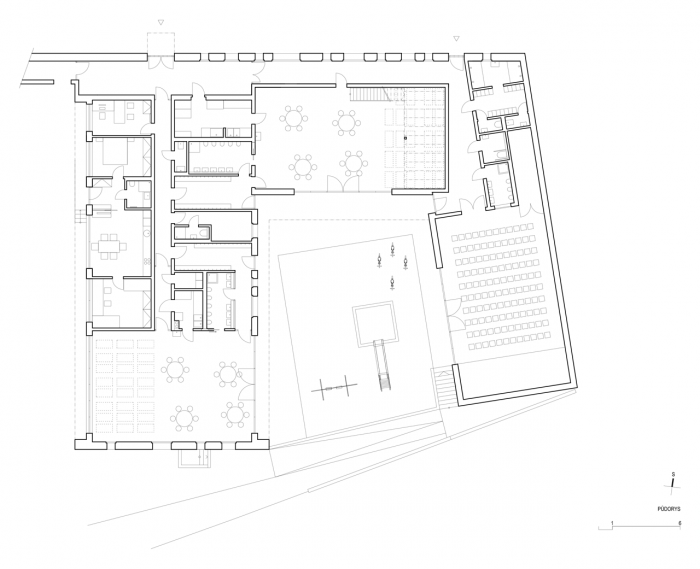
Rekonstrukce stávajícího pavilonu a navržení nového pavilonu mateřské školky, za účelem navýšení kapacity a vybudování nového víceúčelového sálu školky.
Zástavba školky z 80. let je tvořena pavilóny propojenými spojovacími krčky. Prostor pro přístavbu byl omezen z východní a jižní strany hranicí pozemku, ze západní strany stávajícím pavilonem. Ze severu jsme potvrdili hranici tvořenou stěnou spojovací chodby a vytvořili tím předprostor školky – dvůr s parkováním. Navržený shluk nových pavilónů tvoří společně uzavřený herní dvůr ve tvaru U obrácený na jih a propojený se zahradou areálu.
Krom úsporného prostorového plánu bylo hlavní ideou návrhu pracovat s proměnlivou výškou prostorů, která současně vytváří siluetu stavby. Identifikačním znakem přístavby a zároveň výtvarným prvkem interiéru jsou kruhová okna s barevnými fóliemi rozdílných velikostí. Barevnost se projevuje i v odstínech podlah a v koupelnách. Fasáda je obložena horizontálními modřínovými latěmi s různými odstupy.
Konstrukce je zděná, vnitřní omítky štukové, bílé. Z vnější strany je plášť zateplen minerální vatou, chráněnou dřevěným obkladem bez úpravy. Vytápění je napojeno na stávající plynový kotel v suterénu rekonstruovaného pavilónu.
- Autoři: Martin Kožnar, Jiří Bíza, Lukáš Ballek
- Ateliér: Atelier25, ASLB
- Spolupráce: Kateřina Margoldová
- Země: Česká republika
- Město: Klecany
- Ulice, číslo: Sídliště 375
- PSČ: 250 67
- Datum projektu: 2012
- Realizace: 2014
- Zastavěná plocha: 600.00m2
Související projekty
Související architekti
Související ateliéry a firmy
Mohlo by vás zajímat



















