Med Pavlík architekti, Přístavba ZŠ Dr. E. Beneše

Přístavba základní školy v Praze-Čakovicích doplňuje stávající budovy v Jizerské ulici a vytváří s nimi celistvý urbanistický soubor zpevňující ulici Jizerskou, která byla v rámci projektu upravena do režimu obytné zóny. Základní škola tak získala nejen další prostory pro výuku, ale řešením parteru přístavby vzniklo logické propojení celého kampusu v návaznosti na původní budovy školy. Samozřejmostí je i propojení nového křídla se stávající budovou školy v sousedství pomocí spojovacího krčku, jenž zajišťuje pohodlný pohyb žáků i vyučujících.
Hmotové řešení
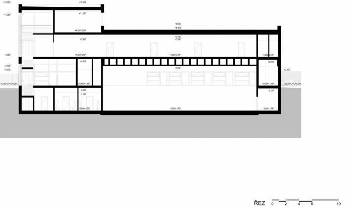
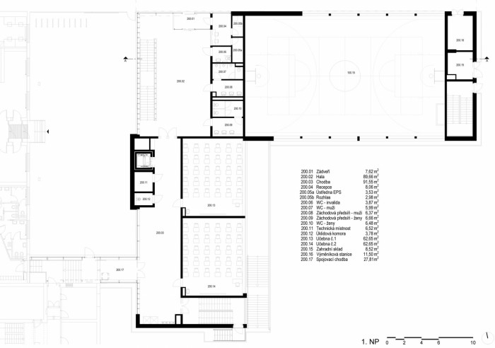
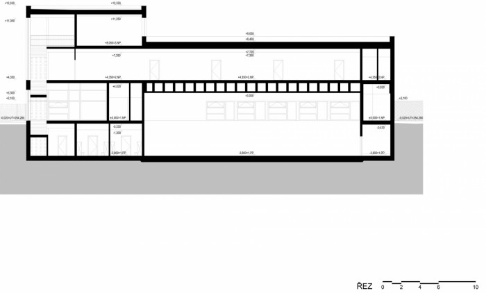
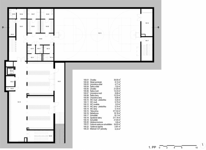
Novou budovu rozčlenili autoři na hlavní hmotu se sedmi kmenovými třídami a nižší křídlo s tělocvičnou, střešní terasou a menšími učebnami pro půlené hodiny. Toto křídlo navrhli architekti s výrazným zářezem střešní terasy směrem do zahrady sousední mateřské školy, což odlehčuje celkovou hmotu budovy východním směrem a umocňuje subtilnější vyznění celého křídla. Díky návrhu ustoupeného vstupního podlaží nepůsobí budova příliš hmotně ani při pohledu z ulice. Současně se tak vytváří krytý nástupní prostor a zároveň dochází k rozšíření parteru před hlavním vstupem do budovy.
Pozitivní atmosféra interiéru
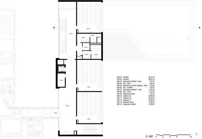
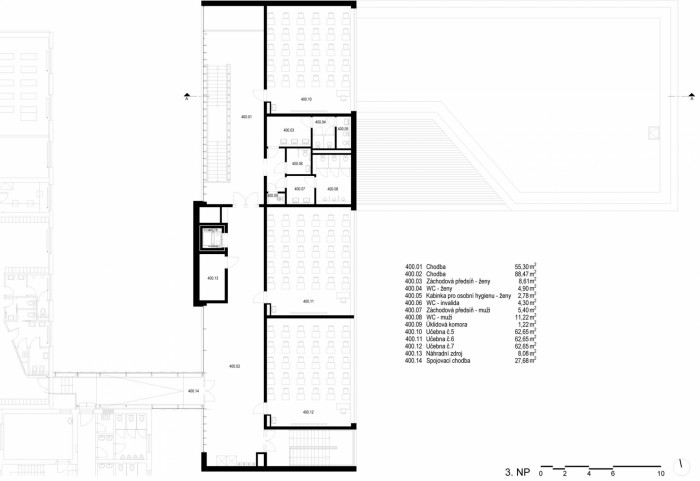
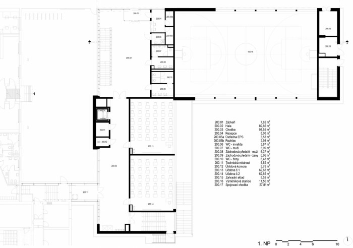
Vstupní hala nové budovy slouží jako hlavní vstup do celého areálu. Novou budovu navrhli autoři jako dvoutrakt s výrazně prosvětlenou pobytovou chodbou a učebnami orientovanými východním směrem do zeleně. Na pobytových chodbách uplatnili architekti nejen standardní transparentní zasklení, ale také difuzní mléčná a probarvená skla, která určují atmosféru těchto společných prostor. Celkový komfort v interiéru pak výrazně zvyšuje také špičkové akustické řešení nejen učeben, ale také společných prostor chodeb i tělocvičny. V učebnách navrhli akustici skládané širokopásmově pohltivé podhledy v kombinaci s tvárnicovým rezonátorem po obvodu místnosti. Na stěnách jsou pak instalovány nárazuvzdorné minerální panely, které lze využít jako nástěnky. Vhodnou akustiku sportovní haly zajišťují segmenty ze zvukově pohltivých dřevovláknitých desek umístěné pod stropem, na stěnách pak systémový dřevěný obklad s vysokou nárazuvzdorností a pružností. V ostatních prostorech napomáhají dobré akustice systémové akustické podhledy. První měsíce užívání potvrzují kladný přínos všech těchto opatření pro výuku.
Kombinace barev i materiálů
Nová přístavba školy ve své hmotě i výrazu citlivě doplňuje proluku mezi stávající mateřskou a základní školou. Nemá ambice na sebe strhávat pozornost, současně vnáší do prostoru postupně vznikajícího kampusu moderní prvek. Základní kvádrovou hmotu s bílou omítkou doplňuje decentní kombinace odstínů šedé a žluté, která prostupuje rovněž do interiéru. Na fasádě se uplatňuje šedá barva v podobě vláknocementových obkladových desek Cembrit Patina, které jsou díky své bezúdržbovosti a odolnosti pro školské budovy ideální volbou. Žlutou lze vnímat jak z exteriéru tak interiéru na ploše probarveného zasklení. Odstíny šedé i žluté jsou dále užity na prvcích mobiliáře umístěného uvnitř i v otevřeném atriu budovy. Zvolený barevný princip se v interiéru navíc opakuje v podobě obkladu a nátěru stěn.
- Autoři: Tomáš Med, Lukáš Pavlík
- Ateliér: Med Pavlík architekti s.r.o.
- Země: Česká republika
- Město: Praha 9 - Čakovice
- Ulice, číslo: Jizerská 816
- Realizace: 2019
- Materiál: Fasádní desky - CEMBRIT
Související projekty
Související architekti
Související ateliéry a firmy
Mohlo by vás zajímat

























