Michal Motyčka - Galerie Miroslava Kubíka v Litomyšli

Autorská zpráva – Michal Motyčka

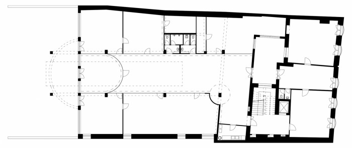
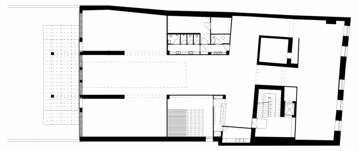
Koncept proměny, která se odehrála v prostoru Galerie Miroslava Kubíka v Litomyšli, můžeme popsat následujícímii slovy. Galerie má jednoduché schéma v podobě podélné osy vedoucí z náměstí do zahrady. Na ose jsou navěšeny jednotlivé prostorové události. Zásadní je, že daný prostor určitým způsobem dýchá, rozšiřuje se do dominantních částí a zužuje do sevření, tak se vytváří jeho přirozené dělení. Člověk má možnost se nadechnout, než vstoupí do další situace.

Z mého pohledu je zde přítomno několik základních principů: je to o prostoru a o světle, ale i o respektu k vystavovaným dílům. Velikostí ani materiálem na sebe nově vytvořené prostředí neupozorňuje. Propojení světla a přírodního prostředí umožňuje okno do zahrady. Návštěvník má možnost komunikovat se zahradou vizuálně i světelně, tím se rozšiřuje jeho vnímání horizontu a prostorových os vertikální i horizontální, prožívá jednoduchý vzdušný prostor, ve kterém má možnost se na jednotlivé vizuální události soustředit.

Text kurátorky – Jana Šindelová

Galerie se nachází v prvním patře reprezentativního měšťanského domu č. 71, situovaného v horní části Smetanova náměstí. Sourozenci Miroslava a Martin Kubíkovi oficiálně otevřeli v září 2011 v Litomyšli galerii, která nese jméno jejich otce. Dům na náměstí mnohokrát ve své historii vyhořel a jeho poslední rekonstrukce proběhla v roce 1999, kdy byla dispozice prvního patra upravena na kanceláře. Výstavy současného umění zde byly pravidelně prezentovány v rámci Smetanovy výtvarné Litomyšle od roku 2005. Zkušenosti s dlouholetou výstavní činností se staly podnětem k nové přestavbě daného místa na funkční galerii pro vizuální umění 21. století.Architekt Michal Motyčka přetvořil prostor Galerie Miroslava Kubíka na civilní, neokázalé výstavní prostředí, v němž se prezentovaná díla – sochy, fotografie, prostorové instalace, videoinstalace i obrazy – stávají součástí celku, tedy prostředky setkávání se a dialogu s návštěvníkem. Esteticky čisté a zdánlivě tradiční řešení prostoru prožíváme skrze základní požitky, vnímáme: světlo, oblohu a zeleň, vzduch a faktor, na který upozorňuje Le Corbusier a jež je pro architekturu výstavního prostředí nejdůležitější: určitý pocit svobody. Celý prostor je otevřený, plný světla a umožňuje jednoduché instalace i složité hry s prostorem. Image interiéru galerie je srovnatelná se současnými světovými institucemi a zároveň si uchovává genius loci daného místa. Z oken na jedné straně galerie můžeme pozorovat dění na náměstí z nadhledu prvního patra a na druhé straně můžeme vstoupit a usadit se do prostředí kultivované zahrady.Nový prostor – new space – soukromé Galerie Miroslava Kubíka je v České republice jedinečný svou neopakovatelnou světelnou atmosférou a velikostí výstavních ploch a jejich zázemím, ale i v konfrontaci nově vytvořeného s přírodním prostředím.

  • Autoři: Michal Motyčka
  • Země: Česká republika
  • Město: Litomyšl
  • Ulice, číslo: Smetanovo náměstí 71
  • PSČ: 57001
  • Suma: 8 000 000.00
  • Měna: CZK
  • Datum projektu: 2014
  • Realizace: 2020
  • Užitná plocha: 590.00m<sup>2</sup>
  • Zastavěná plocha: 930.00m<sup>2</sup>
Generální partner
Hlavní partneři