Michal Vacho, Jaro Krobot - Dom Marchegg

Dom pre divadelného režiséra a scénografku je scénou pre život. Ich, ich dvoch malých detí a staršej dcéry.

Stavba má nasledovné dejstvá: V prvom sú dva domy – jadro, v druhom interiér od Evy - scénografky, v treťom terasy a potom neplánovaný, ale skvelý domček na náradie. Naopak očakávame plánovanú garáž, časom snáď aj “ kulisu / oponu“ a vtáčiu búdku na zadnom štíte.

Autonómny a pre nás občas prekvapivý vznik a život jednotlivých častí tohto súboru sme postupne prijali, dokonca začali považovať za súčasť koncepcie domu. Do jeho vývoja aktívne zasahujú obyvatelia – spoluautori a pre nás sa proces stáva ešte zaujímaveším.

Celé toto predstavenie sa odohráva na pozadí veľmi výrazného fortifikačného múru z 13. storočia, ktorý dodáva obsahový rámec a pevné ukotvenie v čase.

Koncept domu je parafrázou, respektíve prevzatím „vzorca / patternu“ sídelného plánu bývalého českého kráľovského mesta Marchegg, jeho takmer pravidelného zastavania, plných a prázdnych priestorov a hradieb, ktorý celé mestečko uzatvárajú do jedného celku. Našu „hradbu“ má reprezentovať plánovaná „kulisa / opona“ okolo domu – ľahká, tyčová (kov - drevo) perforovaná „hranica“, uzatvárajúca aj otvárajúca svet domu.

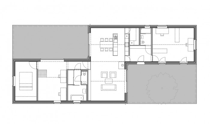
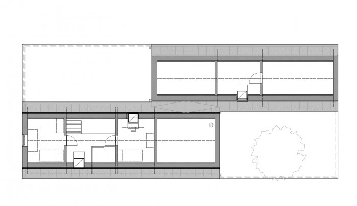
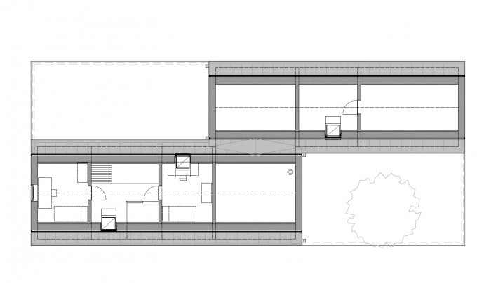
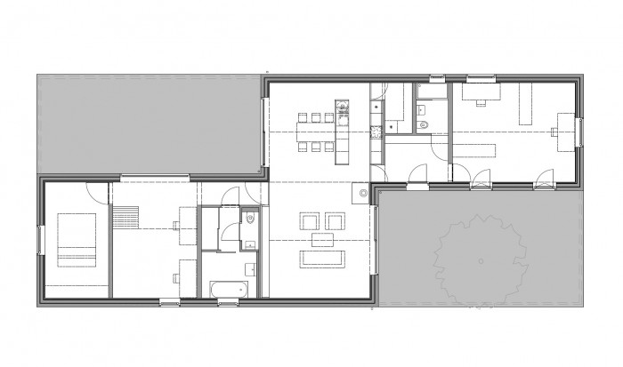
Všetky hmoty v archetypálnom tvare, zjednodušené výrazom aj farbou – od domu, cez garáž až po kôlňu. Dom, respektíve dva domy sú oproti sebe posunuté, v ich prepojení je hlavný obytný priestor, veľký, spájajúci a zároveň členený tvarom stropu na dve menšie „územia“. Dva domy sú teraz domom pre rodinu a ateliér oboch rodičov s letnou izbou pre staršiu dcéru. Pripravené sú ale aj na možné rozdelenie na dva samostatné – každý so svojím zázemím, kde pomyselným miestom stretávania „námestím“ sa stáva priestor obývacej izby. Priestory sú zámerne vyprázdnené, biele a čisté, ktoré si postupne naplnia ich obyvatelia. Detské izby sú dobrodružne v podkroví, do jednej z nich sa ide po rebríku.

Dom je drevostavba, vyrobená hneď za riekou – v rodinnej firme, v hale na Záhorí, dovezená a montovaná vo forme celých hotových stien priamo na mieste.

  • Autoři: michal vacho, Jaro Krobot
  • Země: Rakousko
  • Realizace: 2019
  • Datum projektu: 2018
  • Realizace: 2019
  • Interiér: Eva Kudláčová - Rácová
Generální partner
Hlavní partneři