Drevodom v Lučatíne
Dom pre pár drevárov musí byť samozrejme drevostavba. V tomto prípade zo švajčiarskeho systému STEKO, vyvinutého v spolupráci s ETH Zürich. Jedná sa o tehly z masívneho smrekového dreva, ktoré je možné plniť rôznou izoláciou. Drevená časť stavby vrátane zakrytého krovu bola zrealizovaná za 5 dní, čo je veľká prednosť týchto domov.
Dom je postavený v Lučatíne, malej obci pri Banskej Bystrici, kde má mama rodinné väzby. Toto krehké prostredie jasne vystavilo medze riešenia a východiská– hmota domu, mierka, urbanizmus obce, drevo ako materiál – konštrukčný aj výrazový. Na mieste novostavby stál starší, stavebne už nepoužiteľný tehlový dom. Nový objem sa chová v priestore veľmi podobne.
Odstránenie drevenej stodoly v zadnej časti pozemku nebolo jednoduché rozhodnutie ale novému bývaniu otvorilo úplne nový priehľad do prírodnej krajiny okolia bez toho aby sa narušil uličný rytmus. Jestvujúci susedný kamenný múr ako aj voľne rastúce stromy boli pevným programom, s ktorým dom komunikuje.
Vzhľadom na prostredie sa do uvažovania dostal aj ekologický dopad domu. Okrem konštrukcie z dreva sa počítalo aj s opätovným použitím materiálu zo starého domu a stodoly. Toto sa podarilo iba čiastočne – starý dom bol rozobratý a materiál rozdaný na stavby v okolí, ale výtvarne pôsobiace drevo stodoly nebolo zdravé a nedalo sa použiť ako zamýšľaný obkladový materiál. Čo sa ovplyvniť dalo – všetky dodávateľské firmy boli z blízkeho okolia.
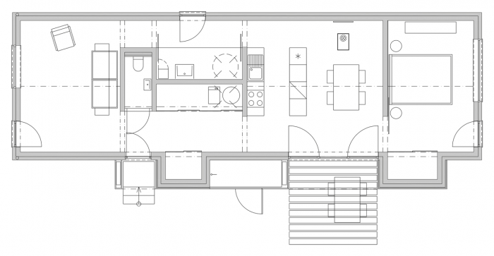
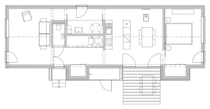
Dom s gánkom (gánok, gang) je variáciou na tému tradičného ľudového stavania. Tento priestor sa rozšíril ako komunikácia naprieč celým domom, artikulovaný otvormi od jednej fasády k druhej. Prelína sa s jednotlivými izbami, naberá funkciu zádveria či vstupnej haly, rozširuje sa v úložných priestoroch prístupných z interiéru aj exteriéru, vďaka čomu dom nemá nijaké chodby a minimum nevyužitého priestoru. Ľudové stavanie obsahuje overené riešenia v malých mierkach, dá sa interpretovať pre dnešné potreby a výraz.
Z rovnakého zdroja vychádza aj koncept trojpriestoru – predná izba ako obývací priestor, kuchyňa v strede, zadná izba – spálňa. V súčasnom dome sa do diagramu ale dostal ešte medzičlánok obsahujúci hygienické vybavenie a technológiu. Takto vytvorené jadro umožnilo minimalizovať všetky rozvody domu do troch dĺžkových metrov.
- Autoři: Jaro Krobot
- Ateliér: Jaro Krobot architekt
- Země: Slovensko
- Město: Lučatín
- Ulice, číslo: Lučatín 11
- PSČ: 976 61
- Datum projektu: 2013
- Realizace: 2014
- Užitná plocha: 77.00m2
- Zastavěná plocha: 93.60m2
- Plocha pozemku: 520.00m2
- Materiál: dřevo
- Poznámka: Foto © archiv autora
Související projekty
Související architekti
Související ateliéry a firmy
Mohlo by vás zajímat