Drevodom v Lučatíne

Dům pro pár dřevařů musí být samozřejmě dřevostavba. V tomto případě ze švýcarského systému STEKO, vyvinutého ve spolupráci s ETH Curych. Jedná se o cihly z masivního smrkového dřeva, které je možné plnit různou izolací.
Dům je postaven v Lučatíne, malé obci u Banské Bystrici. Toto křehké prostředí jasně vymezilo možnosti řešení a vstupní podmínky - hmotu domu, měřítko, reakci na urbanismus obce, dřevo jako materiál - konstrukční i výrazový. Vzhledem k prostředí se do uvažování dostal i ekologický dopad domu. Kromě konstrukce ze dřeva se počítalo i s opětovným použitím materiálu ze starého domu a stodoly. To se podařilo pouze částečně - starý dům byl rozebrán a materiál rozdán na stavby v okolí, ale výtvarně působící dřevo stodoly nebylo zdravé a nedalo se použít jako zamýšlený obkladový materiál. Co se ovlivnit dalo - všechny dodavatelské firmy byly z blízkého okolí.
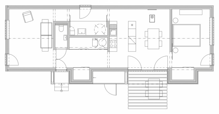
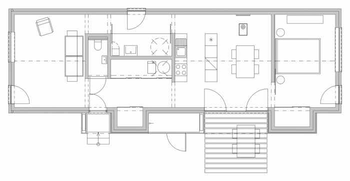
Dům s verandou je variací na téma tradičního lidového stavění. Veranda se prolíná s jednotlivými pokoji, nabírá funkci zádveří či vstupní haly, rozšiřuje se v úložných prostorech přístupných z interiéru i exteriéru, díky čemuž dům nemá žádné chodby a minimum nevyužitého prostoru.
Ze stejného zdroje vychází i koncept trojtraktu - přední pokoj jako obývací prostor, kuchyň ve středu, zadní pokoj - ložnice. V současném domě se do diagramu ale dostal ještě mezičlánek obsahující hygienické vybavení a technologii. Takto vytvořené jádro umožnilo minimalizovat všechny rozvody domu do tří délkových metrů.
- Autoři: Jaro Krobot
- Ateliér: Jaro Krobot architekt
- Země: Slovensko
- Město: Lučatín
- Ulice, číslo: Lučatín 11
- PSČ: 976 61
- Datum projektu: 2013
- Realizace: 2014
- Užitná plocha: 77.00m2
- Zastavěná plocha: 93.60m2
- Plocha pozemku: 520.00m2
- Materiál: dřevo
- Poznámka: Foto © archiv autora
Související projekty
Související architekti
Související ateliéry a firmy
Mohlo by vás zajímat



















