Mimosa architekti - Rodinný dům v Letech
Domek navrhovaný pro Markétu a Pavla, po třech letech vymýšlení a stavění využívaný jimi a synem Štěpánem jako chata, před narozením dcery Anny uznán rodinným domem hodným nastěhování. Atmosféra chaty naštěstí úplně nevyvanula a snad ani nevyvane – je dobře usazená v jednoduchých, obyčejných, samozřejmých řešeních a vzpomínce na to, kolik z domu vzniklo nikoli jako dodávka stavební firmy, ale díky úsilí Markéty a Pavla a jejich známých, rodiny a kamarádů.
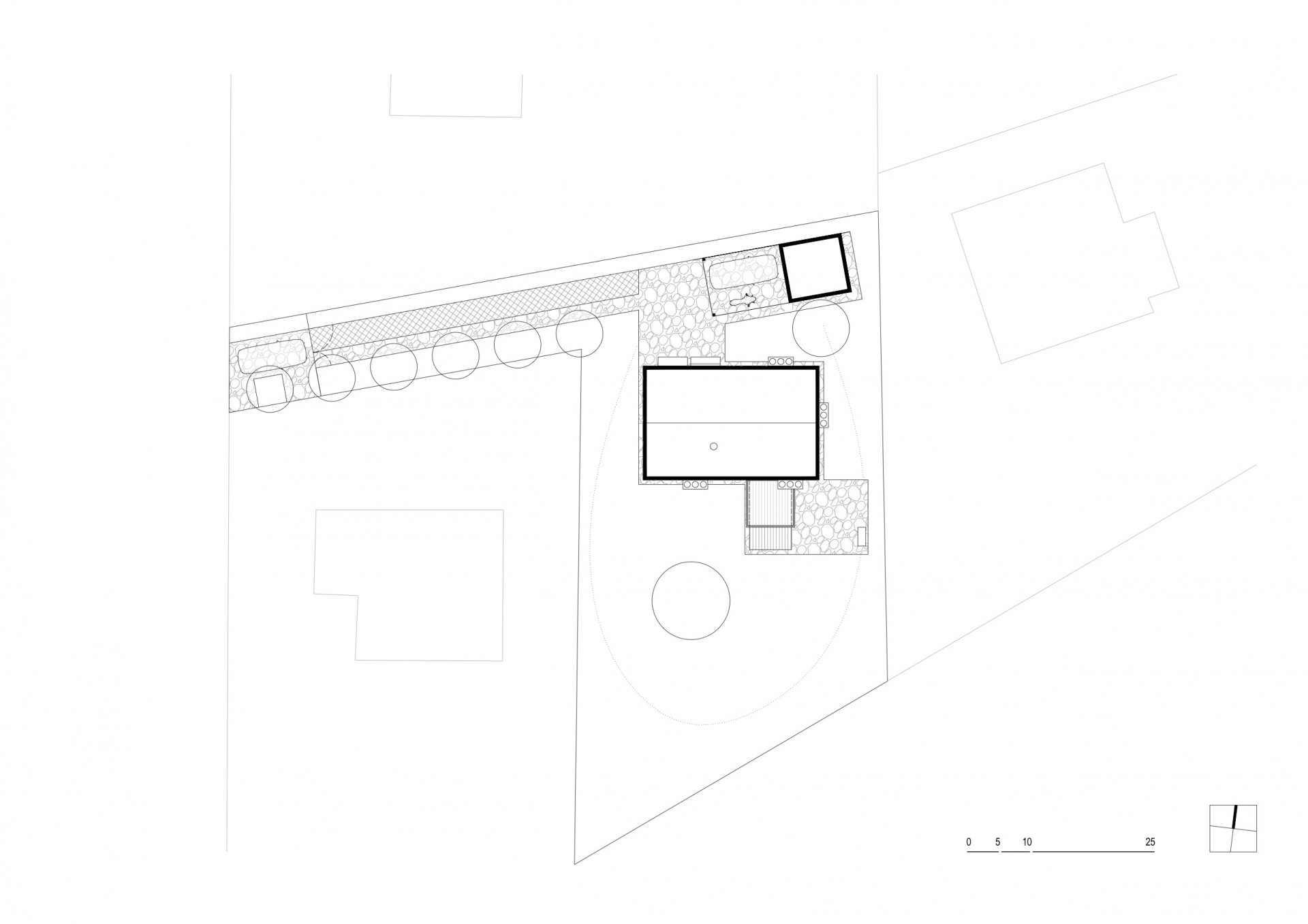
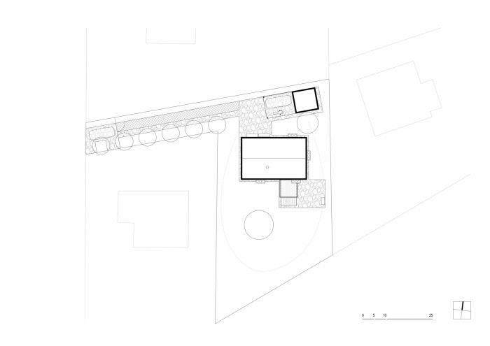
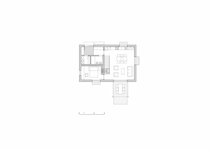
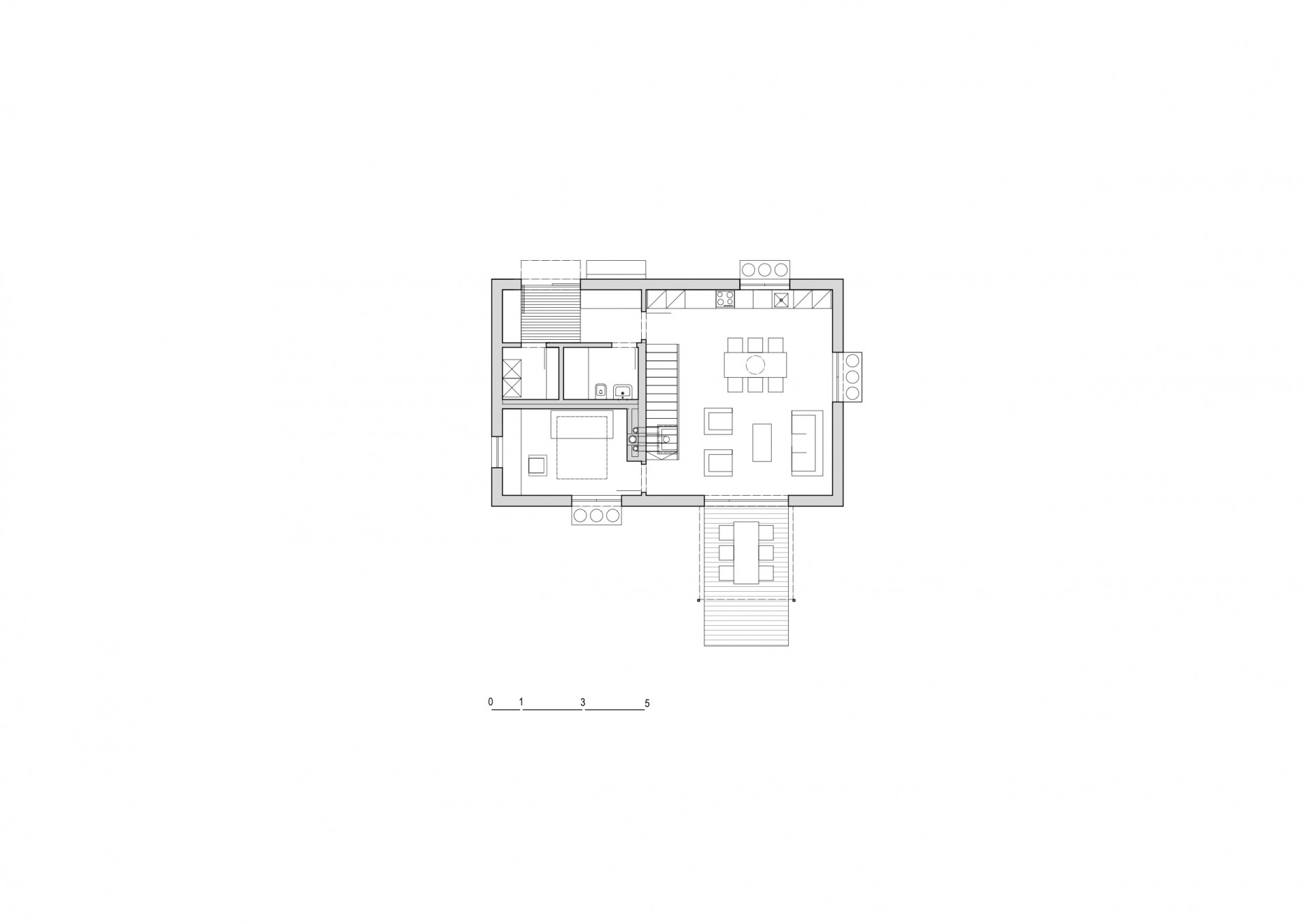
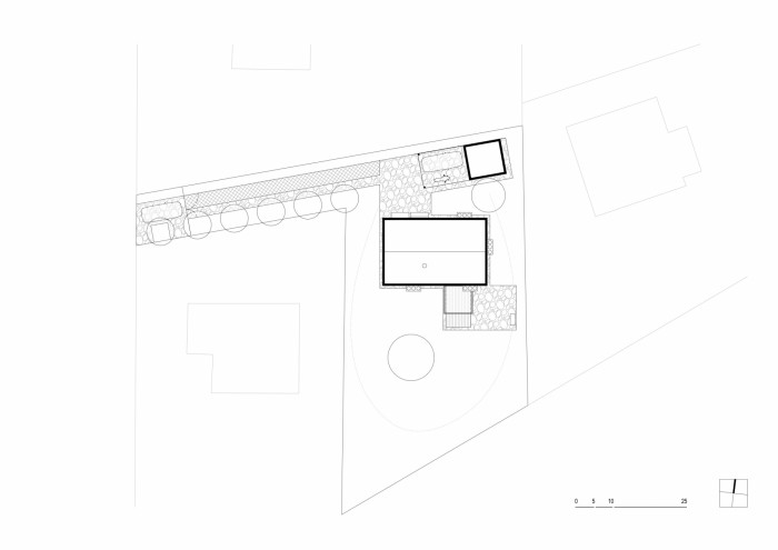
Jednoduché dispoziční řešení nabízí v přízemí vše potřebné pro společný život čtyřčlenné rodiny, v patře pak jednotlivé pokoje. K domu přináleží přístavek poskytující přístřeší autu a úkryt kolům a malé dílničce v úrovni terénu, v podzemí pak správnou teplotu bramborám i plzeňské dvanáctce nebo speciálům z místního minipivovaru.
Konstrukční princip domu – dřevostavba – se v interiéru projevuje přiznanými trámy stropu i střechy, v exteriéru obkladem z nehoblovaných modřínových prken. Lehkou dřevostavbu pocitově „ukotvuje“ stěna z betonových tvárnic ve středu domu, která má současně akumulační funkci – ta by se měla ještě znásobit po osazení krbových kamínek. Okna jsou dřevohliníková, stíněná screeny, jako zábradlí v nich slouží ocelové madlo s vypnutou textilní sítí. Stejně je provedeno i zábradlí vnitřního schodiště, jehož síť je nejlepší výstavní plochou pro malířské výtvory obou dětí.Časem se podaří zrealizovat i kamennou terasu nebo dřevěné molo před oknem obývacího pokoje kryté textilií vypnutou v ocelové konstrukci. Momentálně docela dobře postačuje plachta z Hornbachu.
- Autoři: Petr Moráček, Jana Zoubková, Pavel Matyska
- Ateliér: Mimosa Architekti
- Země: Česká republika
- Město: Lety u Dobřichovic
- Datum projektu: 2012
- Realizace: 2015
- Zastavěná plocha: 83.00m2
- Spolupráce: raz23 s.r.o., Statikon Solutions s.r.o.
Související projekty
Související architekti
Související ateliéry a firmy
Mohlo by vás zajímat