MOLO ARCHITEKTI - Mateřská školka v Nekoři

V roce 2014 jsme začali kreslit první skici naší školky v Nekoři. Na začátku jsme měli na mysli vytvořit dětem prostor, kde bude dostatek světla, z něhož děti pocítí nejenom tvůrčí svobodu, ale budou blízko přírodě, budou moci hned vyběhnout ven, hrát si a rozvíjet se na čerstvém vzduchu. Také jsme si velmi přáli zkultivovat historický střed naší obce. Architektonicky jej tvoří fara, škola, kostel, zeď hřbitova a lipová alej. Navrhli jsme stavbu tak, aby působila spíše nenápadně a nebránila výhledu na protilehlý les. 

Vstup do školky s velkým přesahem střechy je zároveň místem, kam je možné se ukrýt před deštěm při čekání na autobus. Střechu školní jídelny jsme navrhli tak, aby lákala děti čekající na autobus, aby neběhaly přímo po silnici, jak se doposud dělo. Materiály vstupní stavby školky jsme volili s ohledem na okolí. Pískovcová gabionová zeď, je zrcadlem pískovcové zdi hřbitova. Světle béžová barva obkladu odkazuje na barevné provedení kostela. Dřevěný obklad, který necháváme přírodně zestárnout je odkazem na dřevěné hospodářské části fary. Střecha, která je osázená sukulentní vegetací, se bude při pohledu ze hřbitova ztrácet oproti okolní vegetaci.

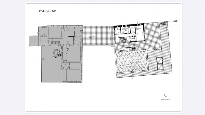
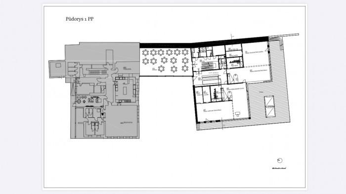
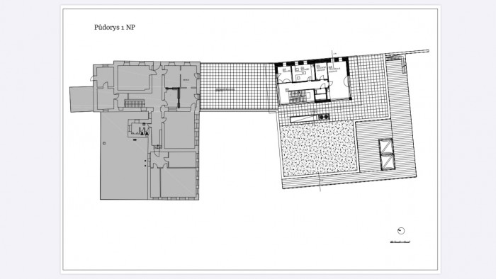
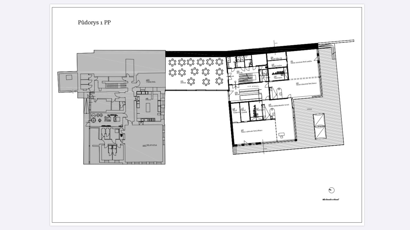
Velkých změn také doznala budova školy. V posledních sto letech byla škola po různých částech adaptována. Většinou se však veškeré zásahy prováděly cestou nejmenšího odporu. Z úprav, které jsme provedli v rámci této stavby, je vybudování nové kotelny s novým automatickým kotlem a nová kuchyně. Nová kotelna je mezi schodištěm a zázemím tělocvičny. Získali jsme tím zpět chodbu, kterou je možné projít suchou nohou ze školy do tělocvičny. Zázemí tělocvičny jsme zbavili problémové a stále protékající střechy. Novou střechou jsme potom jednotně zastřešili i kotelnu a nové sklady kuchyně. Školní kuchyně byla doposud v prostorách na hranici hygienické přijatelnosti. Nyní je umístěna místo bývalé jídelny. Navýšení velikosti kuchyně bylo nutné z důvodu dvojnásobného navýšení vařených obědů a svačin. Jídelna pak tvoří spojení mezi školkou a školou. Dispozičně je uspořádána tak, aby ji bylo možné využít i pro jiné než školní akce (přednášky, svatby, společná setkání, divadla, koncerty v amfiteátru…).

Další důležitou změnou je přesunutí kabinetu učitelů a ředitelny výměnou za bývalou školní družinu. Družina je nyní ve větším a prosluněném prostoru a má možnost vyběhnout na tartanovou herní plochu na střeše jídelny. Děti si tak mohou užít dopoledního sluníčka v jinak poměrně temné škole a zároveň má paní družinářka přehled, co tropí její žáčci, kteří čekají na autobus.

Byla to velmi dlouhá a namáhavá cesta. A nebyla by možná bez odvahy obecních zastupitelů, kteří se do tak velkého projektu pustili. Bez pana starosty Jiřího Pomikálka, pro kterého to znamenalo mnoho administrativní agendy, paní místostarostky Jany Kubíčková Berkové, která byla velmi aktivní v průběhu celého procesu navrhování a výstavby. A samozřejmě, stavebního dozoru, všech projektantů specialistů, grafičky, stavební firmy a jejich subdodavatelů, dodavatelů interiéru, místních řemeslníků, poskytovatelů dotací, úředníků, kteří povolovali a kolaudovali stavbu a vycházeli nám vstříc. Dále učitelů a kuchařek, které měly trpělivost s námi neustále konzultovat a dalších, kteří se jakkoliv podíleli. 

Konstrukční a stavební řešení

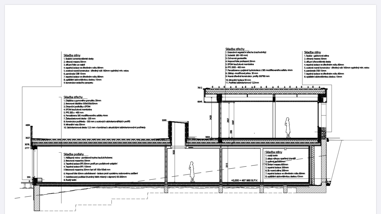
Pro nosnou konstrukci přístavby školy a jídelny jsme zvolili kombinaci ocelových nosných sloupů a železobetonové stropní desky. Toto řešení umožňuje poměrně velkou flexibilitu půdorysu při případných dalších přestavbách. Stavba je z jedné strany zapuštěna do terénu. Proto, abychom zajistili kontrolovatelnost a spolehlivost hydroizolace spodní stavby, jsme se rozhodli oddělit opěrnou zeď, která pojímá síly od svahu a vozovky, od obvodové zdi budovy školky průlezným koridorem. Obvodová zeď přilehlá ke svahu je železobetonová a pomáhá zajišťovat prostorovou tuhost nosné konstrukce. Tato stěna je opatřena z vnější strany kontaktním zateplovacím systémem. Z vnitřní strany je opatřena instalační předstěnou s tepelnou izolací a opláštěná sádrovláknitými deskami.  Ostatní obvodové stěny jsou postaveny technologií to-by-Four, umožňující maximální využití tloušťky stěny pro uložení tepelné izolace. Fasáda je většinou pokryta cementovláknitými deskami, které jsou na některých částech nahrazeny dřevěným obkladem nebo gabionovou zdí. Směrem do interiéru je větraná mezera 50 mm, UW stabilní difuzní folie, tepelná izolace z minerální vaty, vložená mezi křížený dřevěný rošt v tloušťce 240 mm. V této vrstvě jsou opláštěné nosné ocelové sloupy. Dále je umístěna parobrzdná vrstva z OSB desek. Před ní je instalační mezera 80 mm vyplněná minerální vatou. Vnitřní povrch je opláštěný sádrovláknitou deskou. Pro podlahy jsme, vzhledem k vysokému zatížení místa radonem, zvolili konstrukci oddělující podlahu od země 60mm mezerou, tvořenou nopy. Ta snižuje tlak plynů vycházejících z podloží. Tato vrstva je položena na vyrovnávací vrstvu hutněného stabilizovaného štěrku. Je zalita betonovou mazaninou a pokryta vrstvou živičné hydroizolace. Na ni je položena tepelná izolace z pěnového polystyrenu s vrchní systémovou vrstvou pro uložení potrubí podlahového topení, které je zalité betonovou mazaninou. Nášlapná vrstva se liší podle účelu místnosti. Ve většině prostor je kaučuková podlahová krytina. Na rozdíl od jiných povlakových podlahoviny se liší tím, že je zdravotně nezávadná pro pohyb bosých dětí a díky své uzavřené struktuře povrchu je snadno čistitelná a při poškrábání opakovatelně leštitelná. V herně je použit koberec a v některých prostorách zázemí je položena dlažba. Strop-střecha přístavby je pokryta z části extenzivní vegetační vrstvou a z části pochozí dlažbou. Střešní krytinu tvoří folie EPDM která je zde použita pro svojí trvalou elasticitu a dlouhou životnost. Pod ní je souvrství tepelné izolace z pěnového polystyrenu v tloušťce cca 400 mm dle spádu. Parozábranu tvoří živičná vrstva. Ta je položena na betonový strop. Pod nosnou konstrukcí stropu je zavěšený podhled, který je v pobytových místnostech z akustických děrovaných sádrokartonových desek.Přístavba Mš je vybavená větráním s rekuperací tepla. Jako zdroj tepla je instalované tepelné čerpadlo.

  • Autoři: Tereza Kučerová, Patrik Zamazal
  • Ateliér: MOLO ARCHITEKTI
  • Země: Česká republika
  • Realizace: 2018
  • Město: Nekoř
  • Suma: 45 700 000.00
  • Měna: CZK
  • Datum projektu: 2014
  • Realizace: 2018
  • Poznámka: Dodavatel stavební části - Bursík Holding, a.s.
    Dodavatel gastrovybavení kuchyně - Jindřich Schlesinger – GASTRO komplet Ústí nad Orlicí
    Dodavatel vnitřního vybavení a herních prvků - Compo Praha Interiéry, s.r.o.
    Technický dozor investora - FORENTA s.r.o.
Generální partner
Hlavní partneři