Muzeum Zeitz MOCAA

Obilné silo v Kapském Městě kdysi sloužilo ke skladování a třídění kukuřice dovezené ze všech koutů Jižní Afriky. S nástupem kontejnerové lodní dopravy došlo ovšem k vyřazení tohoto obrovského betonového kolosu z provozu a hledalo se jeho nové využití. Krátce poté, co Victoria a Alfred Waterfrontovi oslovili studio s projektem úpravy celého území, vznikla iniciativa za vybudování prvního mezinárodního muzea zasvěceného současnému africkému umění na tomto kontinentu. Oba stavební programy probíhaly ve stejnou dobu a snažily se o přeměnu obilného sila v nový domov sbírek současného umění Jochena Zeitze a Nadace Zeitz.
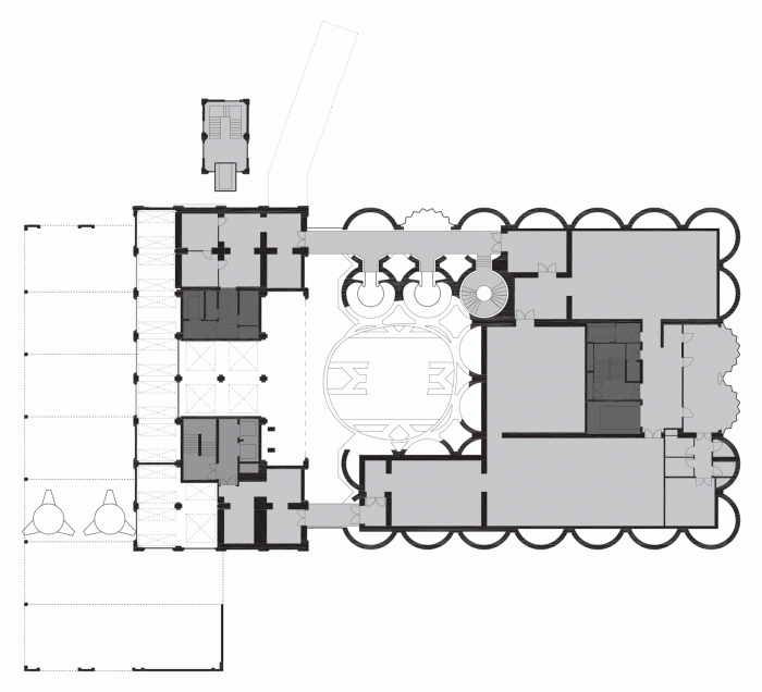
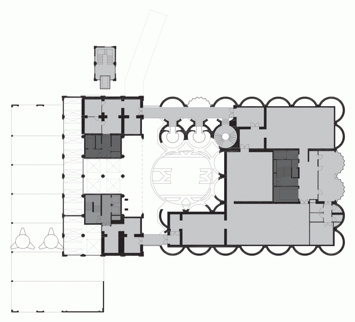
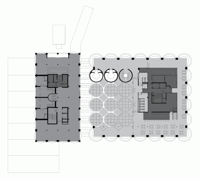
Původní budova sestávala ze dvou hlavních prvků – třídící věže a bloku dvaačtyřiceti těsně semknutých jednotlivých sil. Namísto přikročení k rozsáhlé demolici se studio rozhodlo pro konverzi bezpočtu betonových tubusů ve výstavní prostory při zachování industriálního charakteru sila. Záměrem studia bylo do betonové konstrukce vyřezat velký centrální prostor pro vytvoření hlavního společenského prostoru, který odhaluje původní spleť linií konstrukce.
Obvodové tubusy byly značně sníženy a přeměněny v galerie pro stálé i dočasné výstavy. Zaříznuté tubusy nad prostorem atria přivádějí dovnitř sluneční světlo díky silným vrstvám laminovaného skla se vzorem od západoafrického umělce El Loka. Ve třídící věži byly uřezány betonové stěny mezi konstrukčním rámem pro vytvoření nových trojrozměrně tvarovaných oken, která odrážejí kaleidoskop textur a barev měnící se po celý den. V noci záře světel uvnitř budovy transformuje věž v maják uprostřed přístavu.
- Autoři: Thomas Heatherwick
- Země: Jihoafrická republika
- Město: Kapské město
- Datum projektu: 2011
- Realizace: 2017
- Plocha pozemku: 9 500.00m2
Související architekti
Mohlo by vás zajímat























