New Work - Rodinný dům Dolní Kounice

Novostavba rodinného domu doplňuje stávající souvislou zástavbu řadových domů v Jiráskově ulici v Dolních Kounicích. Zvláštnost pozice je dána sousedstvím potoka - strouhy - voda zde teče jen část roku, který přerušuje návaznost na objekt ze západní strany. V místě stával přízemní dům s klenutým sklepem. Dům byl odstraněn, sklep zůstal zachován a nad ním byla postavena nová stavba. Novostavba respektuje uliční čáru zástavby a původního zbouraného objektu. Oproti němu je kratší o 2,5 metru (až o 3,5 metru v zahradní části).
V návrhu byl zohledněn charakter okolní zástavby, stavba na ni navazuje šikmou částí střechy i celkovým měřítkem hmoty. Střecha se výškově přizpůsobuje římsou i hřebenem střechy. V polovině stavby směrem k vodnímu toku je šikmina střechy ukončena a stavba je zakončena nárožím s plochou střechou. Tímto architektonickým prvkem je ohraničen začátek bloku staveb. Dům je dvoupodlažní, zastřešený z části plochou a z části sedlovou střechou s hřebenem podélným k ose silnice.
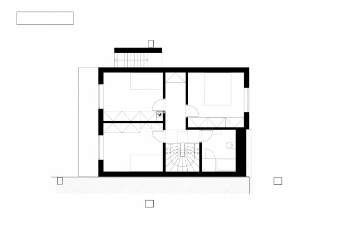
Vchod do domu je přes zádveří. Navazuje na vstupní chodbu, ze které se vchází do hlavního obytného prostoru, který je otevřený a propojuje kuchyni, jídelnu a obývací pokoj. Za zádveřím je technická místnost a wc. Z hlavního obytného prostoru v přízemí je přístup na zahradu. Do 2.NP se vystupuje po křivočarém schodišti, které je vloženo mezi kuchyňskou a pobytovou část přízemí. Z chodby se vstupuje do tří ložnic a koupelny.
Hlavní nosná konstrukce stavby je hrázděná dřevěná. Z důvodů požární bezpečnosti i z kontextuálních důvodů se dřevo pohledově neuplatňuje na opláštění stavby. Fasáda je z bílé jemnozrnné silikátové omítky. Okna a dveře jsou šedé barvy. Okolo objektu je oplocení z pozinkovaného pletiva upevněného na ocelové sloupky.
- Autoři: Svatopluk Sládeček, Jaroslav Matoušek, Petra Bitaudeau Vašková
- Ateliér: studio New Work
- Spolupráce: Františka Podzimková
- Země: Česká republika
- Generální dodavatel: GH domy s.r.o
- Město: Dolní Kounice
- Ulice, číslo: Jiráskova 75
- PSČ: 66664
- Datum projektu: 2018
- Realizace: 2019
- Zastavěná plocha: 61.41m2
Související projekty
Související architekti
Související ateliéry a firmy
Mohlo by vás zajímat






















