ov-a - Aparthotel Sv. Vavřinec
 
                                
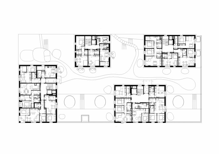
                                Apartmánové domy vznikly na místě původní prodejny z 80. let. Čtyři domy jsou umístěné na „louce“ - zelené střeše nad obchodním parterem budovy. Prostor mezi jednotlivými domy nabízí průhledy na vzdálené horizonty horských luk. Mezi domy panuje komorní sousedská atmosféra. Střešní zahrada překrývá obchodní plochy a garáže.
Horské městečko a lyžařské středisko Pec pod Sněžkou vzniklo původní zástavbou v údolí, která se rozšiřovala do okolních strání. Postupně přibyly větší turistické ubytovny a hotely. Charakter místa tvoří solitérní domy podél hlavní ulice, které jsou v těsném kontaktu s okolní přírodou. Atmosféru vystihuje cesta stoupající údolím podél potoků a průhledy mezi domy do zadních plánů obce s boudami rozesetými po loukách. Návrh se čtyřmi bytovými domy na tyto kvality navazuje a rozvíjí je.
Na parcele investora, v centru obce na pohledově exponovaném místě, stála budova prodejny Sněžka z 80. let 20. století. Dlouhá hmota prodejny působila v místě jako bariéra a bránila průhledům do zadních plánů obce. Kolem budovy zbyl nevyužitý a neudržovaný prostor, který nepatřil k domu ani k ulici. Zadáním investora bylo na místě původních budov a na přilehlých parcelách postavit 90 bytů v apartmánových domech.
Objekt bývalého nákupního střediska byl odstraněn. Na jeho místě vnikl nový obchodní parter, který překryla louka. Na střeše-louce vyrostly čtyři domy. Domy jsou různě veliké a různě orientované. Vznikají mezi nimi napínavé prostorové vztahy posílené stoupajícím terénem. Střešní louka je polosoukromý volný prostor mezi domy určený různým aktivitám a událostem. Je zde venkovní grill s posezením, dětské hřiště, prostory před byty slouží jako terasy jednotlivých apartmánů.
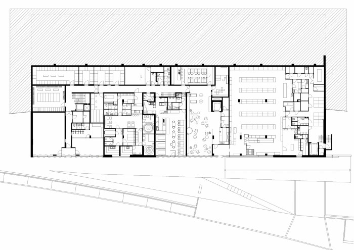
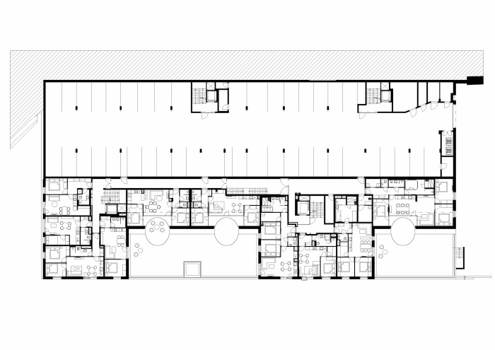
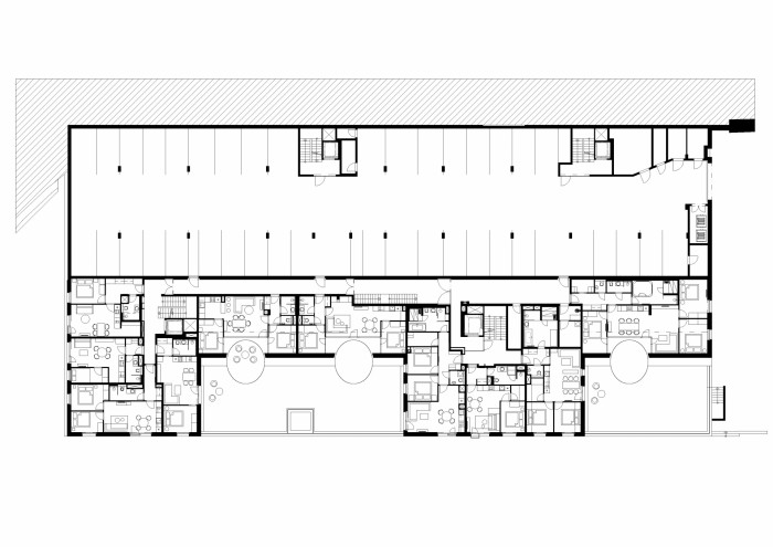
Budova má dvě podzemní garáže v různých úrovních. Společný parter je přístupný interiérem ze všech bytových jednotek. Vstup do aparthotelu vede přes recepci s lobby. Zimní vstup vede k lyžárnám, v nichž má každý vlastník apartmánu svůj skibox.
Společný parter obsahuje servis pro ubytované: dospělou hernu s golfovým 3D simulátorem, teenage hernu, dětskou hernu, vinárnu s chlazenou vinotékou, v které mají vlastníci své soukromé vinné boxy, lobby s krbem a restauraci orientovanou na grilovaná masa. Obchodní plochy zahrnují supermarket se zázemím, lékárnu v režimu shop in shop spojenou se supermarketem, obchod se sportovním zbožím, ski a bike servis.
Bytové věže jsou organizované kolem čtyř výtahů se schodišti. Do bytů se vstupuje ze společného náměstí před výtahem. Organizace bytů ve čtyřech věžích vyloučila dlouhé bytové chodby, což podporuje sousedské vztahy na patře a v domě.
Budova je založena na pilotech na dvou výškových úrovních – lavici ve svahu. Konstrukce domu je železobetonová, v horních podlažích bytových domů přechází v cihelný systém s betonovými stropy, šikmé střechy jsou monolitické železobetonové. Nosné obvodové stěny jsou zatepleny minerální vatou a kryté obkladem z červeného cedru.
Parter budovy má kamenný obklad. Louka nad parterem je intenzivní zelená střecha systému Optigrün se zádržnými žebry na šikmých plochách. Střechy věží jsou kryty extenzivní zelenou střechou s rozchodníkovými rohožemi.
Aparthotel slouží k rekreaci vlastníkům, ale zároveň jejich bytové jednotky nabízí k pronájmu v termínech, kdy vlastník byt neužívá. Systém pronájmu má zajištěnou recepční službu, úklid a veškerý servis ubytovaných hostů. Pro vlastníka se tak koupě bytu stává investicí se zaručeným výnosem.
Interiéry bytů byly navrženy ve čtyřech variantách, z nichž mohli vlastnící volit. Autorský interiér byl podmínkou zapojení vlastníků do systému pronájmů. Každý styl zastupuje jeho grafický symbol, který se objevuje v interiéru:
Glamour – zlatá hvězdička
Interiér je založen na tmavších tónech dubu, zlatavých výšivkách a ornamentech.
Skandinávie – ševron
Přináší světlé odstíny běleného smrku v kombinaci s bílým ornamentem na tmavě modrých látkách. Koupelnu zdobí sob
Modern – trojúhelník
Navazuje na elegantní design 50-tých a 60-tých let, přináší světlou nestárnoucí eleganci.
Krkonoše – modrý křížek
Křížek na světlém podkladu odkazuje k výšivkám a lidové historii hor, obklady jsou z borové překližky, obytný prostor doplňuje tradiční krkonošská židle.
- Autoři: Jiří Opočenský, Štěpán Valouch
- Ateliér: OVA
- Spolupráce: Vojtěch Kratochvíl, Anna Schneiderová, Jan Stibral, Františka Podzimková, Tomáš Kubelka
- Země: Česká republika
- Stavebník: Kubík Sněžka s.r.o.
- Město: Pec pod Sněžkou
- Ulice, číslo: Pec pod Sněžkou 355
- PSČ: 542 21
- Datum projektu: 2012
- Realizace: 2018
- Užitná plocha: 7 176.00m2
- Zastavěná plocha: 2 367.00m2
- Poznámka: Na interiérech bytů Krkonoše a Modern; Wellness, herny, chodby, garáže spolupracovalo studio EDIT! (Ivan Boroš, Juraj Calaj, Vítězslav Danda, Šimon Dočekal, Kateřina Blahutová)
Související projekty
Související architekti
Související ateliéry a firmy
Mohlo by vás zajímat
 
				 
				 
				 
				 
				 
				 
				 
				 
				 
				 
				 
				 
				 
				 
				 
				 
				 
				 
				 
				 
				 
				 
				 
				 
				 
				 
				 
				 
				 
				 
				 
				 
				 
				 
				 
				 
				 
				 
				 
                             
                             
                             
                             
                             
                                 
                             
                             
                             
                             
                             
                             
                             
                             
                             
                             
                             
                             
                             
                             
                             
                             
                             
                             
                             
                             
                             
                             
                             
                             
                             
                             
                             
                             
                             
                             
                             
                             
                     
                     
                     
                     
             
             
             
             
             
            		 
            		 
            		 
            		 
            		 
                                                                                                             
                                                         
                                                         
                                                                                                             
                                                         
                                                         
                    