Nízkoenergetická dřevostavba u golfového hřiště

Jednoduchá dispozice s nápaditým výškovým členěním

Dům je osazený v souladu s danostmi parcely a možností dopravního napojení. Ačkoliv se na první pohled odlišuje od ostatních domů v okolí, současně své okolí i charakter rozvolněné zástavby respektuje. Architektonické řešení je determinované tvarem a orientací pozemku s důrazem na vytvoření soukromého prostoru zahrady. Kompozice pracuje s jednoduchými formami. Celek autoři z důvodu rozčlenění velkého objemu rozdělili na dvě navzájem se doplňující hmoty, které jsou diferencované objemově i polohově.

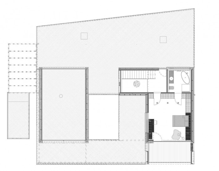
Je to denní část s převýšeným obývacím pokojem a dvojpodlažní ložnicová část. Obě hmoty jsou do jednoho kompozičního celku propojené překrytím terasy podélné fasády. Obslužnou část domu pak tvoří garáž a technické zázemí domu. Denní část představuje obývací pokoj s jídelnou se zvýšenou světlou výškou, na kterou navazuje kuchyň. Dvojpodlažní ložnicová část je dispozičně od denní části oddělená vstupní halou, na kterou v exteriéru navazuje patio. Ložnice rodičů je umístěna v přízemí, v patře se pak nachází pouze dětský pokoj s lodžií orientovanou do zahrady. Estetickým a zároveň funkčním prvkem je překrytí terasy a lodžie, které má především v letních měsících zároveň i stínící funkci. Terasa je přirozeným propojením interiéru s navazující zahradou, která je opticky ještě rozšířena výhledem na sousední travnaté golfové hřiště.

Otevřený prostor obývacího pokoje je opticky rozdělený pouze stěnou krbu, který je netypicky umístěný uprostřed místnosti. Ložnice rodičů a dětský pokoj disponují vlastními koupelnami a šatnami. Celou dispozici doplňuje pracovna v přízemí, přístupná ze vstupní haly.

Konstrukční řešení

Dům je konstrukčně řešený jako dřevostavba z CLT panelů. Svislé nosné konstrukce jsou tvořené z lepených dřevěných panelů z masivního dřeva. Dřevěné stěny doplňuje soustava ocelových sloupů. Nenosné dělící konstrukce se též podílejí na statickém spolupůsobení s nosnou konstrukcí. Rodinný dům je zastřešený kombinací odvětrávaných plochých střech s klasickými jednoplášťovými.

Nadčasové nízkoenergetické řešení

Vytápění a chlazení zabezpečuje tepelné čerpadlo typu vzduch-voda, které je napojené na podlahové topení a stropní sálavé chlazení. Větrání je řešené lokálními rekuperačními jednotkami. Tepelná zátěž v létě je minimalizována použitím přírodních izolací v dostatečné tloušťce, jakož i předsazeným vnějším stíněním.

Harmonie kontrastů

Jednoduché kvádrové hmoty jsou dále členěné dřevěným obkladem kontrastujícím s fasádními obkladovými deskami Cembrit Solid, které autoři použili ve dvou odstínech, a sice kombinují zde fasádní desky bílé a břidlicově šedé. S touto barevností ladí i zatemňovací prvky velkoformátového zasklení směrem do zahrady. Tmavě šedé rolety zde opět kontrastují s bílým obkladem.

Lesk a mat, střídaní světlých a tmavých ploch i kontrastních materiálů, stejně jako jednoduché linie jsou společnými jmenovateli, které charakterizují dům jak z exteriéru, tak interiéru.

Nenápadná hra s osvětlením, působivě se „vznášející“ podsvětlený kuchyňský ostrůvek spolu s odlesky skříněk s povrchem provedeným ve vysokém lesku, osvětlení schodiště do dětského pokoje či krb uprostřed obývacího pokoje s výrazným komínovým tělesem, to vše jsou detaily, které dodávají domu osobitost a jedinečný styl.

Generální partner
Hlavní partneři