OFFICE110 architekti - Loděnice Karloveské rameno

Trojpodlažný objekt lodenice pri Karloveskom ramene v Bratislave sme projektovali pre Mestskú časť Karlova Ves. Základy a suterén sú navrhnuté ako železobetónová konštrukcia z pohľadového betónu, 1. a 2. nadzemné podlažie je riešené ako drevená konštrukcia, kombinovaná s oceľovými stužujúcimi prvkami. Suterénne podlažie objektu je vyhradené hangáru pre lode. Ide o nevykurovaný priestor pri ktorom sa počíta s občasným zaplavením, s minimálnym technickým vybavením a s prístupom z exteriéru (z čelnej fasády).

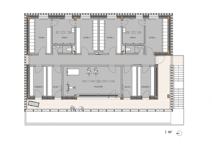
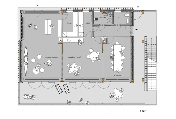
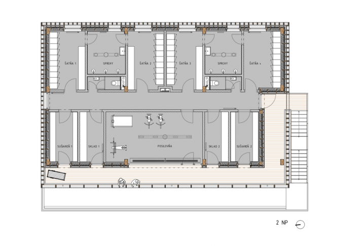
Vstupné podlažie (1. NP) sa už nachádza nad hladinou storočnej vody a okrem vstupu v ňom je umiestnené vodácke centrum, spoločná denná miestnosť pre usporadúvanie akcií a vodácka klubovňa. Technicko-prevádzkové zázemie je tvorené skladom, kuchynkou, wc a kotolňou. Súčasťou podlažia je aj čiastočne prekrytá letná terasa so schodiskom na poschodie/ terénnym schodiskom do spodného hangáru. Horné podlažie (2. NP) je sprístupnené exteriérovým schodiskom a je vyhradené šatniam pre vodákov a verejosť, ku ktorým sú navrhnuté sklady, sušiarne a fitness s prechodom na hornú terasu.

  • Autoři: Martin Hörmann, Richard Kastel, Peter Kopecký
  • Ateliér: OFFICE110 architekti
  • Země: Slovensko
  • Realizace: 2019
  • Město: Bratislava - Karlova Ves
  • Ulice, číslo: Botanická 20/51
  • PSČ: 841 04
  • Suma: 600 000.00
  • Měna: EUR
  • Datum projektu: 2010
  • Realizace: 2019
  • Užitná plocha: 500.00m2
  • Zastavěná plocha: 190.00m2
  • Plocha pozemku: 2 656.00m2
Generální partner
Hlavní partneři