OK PLAN ARCHITECTS - Rodinný dům „ŽLUŤÁK“

Chceme vám představit projekt rekonstrukce rodinného domu. Ne vždy jsou podmínky pro stavbu domu snů na zelené louce, a proto přicházíme s ukázkou, jak je možné se vypořádat s pozemkem a stavbou, která právě ideál snového domu vaším pohledem nesplňuje. 

S požadavkem rekonstrukce nás oslovila klientka, která koupila 13 let starý rodinný dům pro sebe a svého syna. Po určité době užívání vyplynula na povrch řada nedostatků nemovitosti a klientka se na naše studio obrací s dotazem, zda můžeme svízelnou situaci vyřešit. Ačkoliv cena domu v té době nebyla nikterak výhodná, příležitost koupit dům si, po osmi letech hledání na trhu s realitami, nenechala ujít.

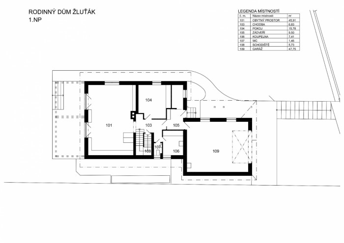
Koupený dům a zahrada jsou tvarově a dispozičně neuspořádané. Vykazují veškeré atributy své doby, výstavba v roce 2006. Hned je jasné, že původní majitel byl náruživý kutil a dům stavěl svépomocí. V tomto menším rodinném domě (hodnoceno půdorysně zastavěnou plochou 120 metrů čtverečních bez garáže) a jeho zahradě najdete zastoupeno takřka vše, co se dá do domu a na zahradu pořídit. Avšak i zde platí zřejmé  pořekadlo, že kvantita nemusí odrážet s ní spojenou kvalitu a užitnou přidanou hodnotu.

Uvnitř domu vládne chaos. Jednotlivé místnosti jsou vymalované všemi barvami duhy v křiklavých tónech, na podlaze se střídá mozaika různých povrchů. Obytnému prostoru dominuje nefunkční barový pult a krbová vložka opláštěná historizující obezdívkou. Dvě velká akvária zabírají exponovanou pozici a dávají tušit, že původní majitel byl mimo jiné i vášnivým milovníkem ryb.

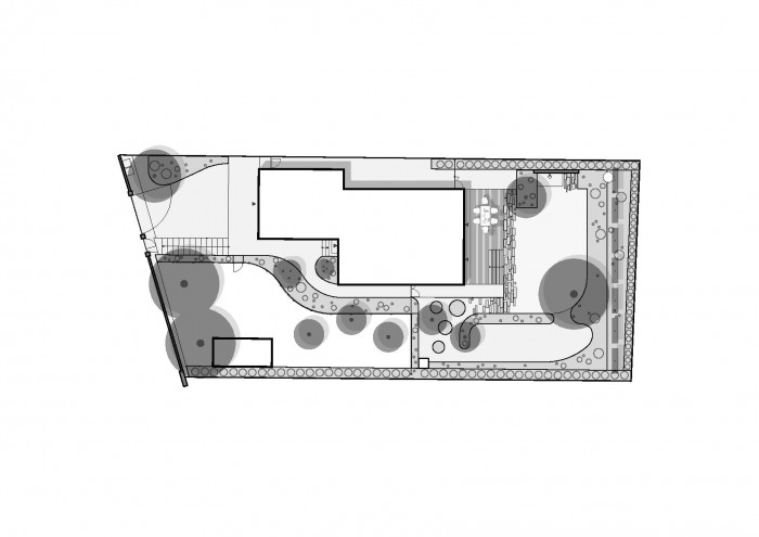
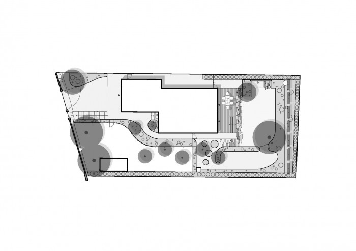
Venkovní prostor se nese v podobném duchu zmatku a neutěšenosti. Na vcelku komorní ploše zahrady je větší bahnité jezírko bez odpovídající filtrace a funkčního řešení nechtěného vtékání dešťové vody do jezírka. Dále se na zahradě nachází velký plastový bazén a několik přístřešků, které stíní zahradu. Masivní zpevněné plochy kolem bazénu a domu v šedé zámkové dlažbě dělí početné terénní stupně na několika výškových úrovních. Vstupním partiím na pozemek opět dominuje rozsáhlá dlážděná plocha se schodištěm v lemu z tvárnic ze štípaného betonu. Toto schodiště, na kterém nevychází krok při jeho scházení, směřuje pohledově do zdi garáže, nikoliv k hlavnímu vstupu domu.

Na začátku naší práce reálně zvažujeme demolici objektu, ale v rámci finanční rozvahy se ukazuje, že to nebude cesta pro naši klientku. V dalším kroku stanovujeme náklady, které je možno do domu investovat, aby přestavba stále dávala ekonomický smysl. Samotnou rekonstrukci dělíme na čtyři zásadní okruhy:

Prvním okruhem je důraz na technologie. Původní dům konzumuje spoustu elektrické energie. Je to způsobeno tím, že celé topení domu zajišťuje elektrický přímotopný kotel, ohřev vody elektrický bojler. Vše navrhujeme nahradit tepelným vzduchovým čerpadlem. Dále redukujeme veškeré energeticky náročné technologie, a to především bazén s jeho silně nehospodárným provozem. Bazén odstraňujeme i z důvodu extrémní spotřeby pitné vody.

Druhým je hmota a venkovní tvarosloví domu. Zde zvažujeme několik přístupů a nakonec dospějeme k závěru, že celý objekt domu sjednotíme do jednoho odstínu. Do bílého pláště zahalíme vše, včetně střechy, fasády a soklového zdiva. Světlou barvu volíme i proto, že se podkroví domu v letních měsících přehřívá a bílá barva i doplnění tepelné izolace do mezistropu by mělo pomoci tento jev eliminovat. Rozhodně se chceme vyhnout použití splitové klimatizace, a to z energetických důvodů. Barevná jednotnost přispívá k celistvosti a zklidnění celkového působení a pomáhá spojit „rozhádané“ proporce domu. 

Třetím okruhem je interiér. Vlastní dispozici domu sjednocujeme a prostorově zjednodušujeme. Bouráme nefunkční zákoutí, šikmé rohy příček, imitace klenutých nadpraží a pomocí několika průrazů vylepšujeme komunikaci uvnitř domu. Veškeré povrchy v obytných místnostech sjednocujeme pomocí dřevěné podlahy. Na povrchy zázemí domu (zádveří, koupelny) použijeme epoxidovou stěrku. Vše navrhujeme aplikovat na stávající odstínově nejednotné keramické dlažby. Stěny a stropy vymalujeme bílou barvou, která společně s novými interiérovými dveřmi v krémově bílém odstínu pomůže prosvětlit místnosti. Dům se opticky „nadechne“. Maximální péči věnujeme také nábytku. Ten řešíme především formou vestavěných stěn tak, abychom navodili pocit volné dispozice interiéru. 

Čtvrtým, a asi i tím nejdůležitějším okruhem, je zahrada. Do původní zahrady v zadní části vedou čtyři schody za francouzským oknem v obývacím prostoru. Nově v obytné části prolamujeme dvě velké prosklené plochy s posuvnými dveřmi. Terasa je vyzdvižena na úroveň podlahy v domě a tím ji přičleňujeme k obytnému prostoru. Toto řešení okamžitě opticky zvětšuje plochu obytného prostoru a přibližuje k vám zahradu jako takovou. Nad terasu je v budoucnu plánována tzv. bioklimatická stínící pergola. Zahradu dělíme do několika funkčních zón. Zóny se potkávají jedna vedle druhé na stejné platformě pod úrovní terasy. Doplňujeme stromy, které v budoucnu zajistí stín v letních měsících a vizuálně oddělí sousední halový objekt, s nímž rodinný dům bohužel sousedí. Místo nelogicky navržených funkcí, které si v původní zahradě navzájem překážely, se nyní v zahradě vše točí kolem středobodu venkovního bydlení – terasy a pobytového trávníku. Ač plochou nevelká zahrada, při chytrém rozmístění funkčních zón pojme spoustu dílčích aktivit a příležitostí – dětský koutek, drobné pěstování bylinek a zeleniny, prostorovou rezervu pro skleník, výběh pro psy, parkovací stání, i příjemný vstup na pozemek po mírném schodišti. Schodiště teď již logicky směřuje od branky ke vstupním dveřím domu a není na něm třeba nepřirozeně střídat délku kroku. Kromě praktických funkcí a vytvoření soukromí, zahrada nabízí i pohledy do krásných trvalkovo-travinných záhonů, keřů a korun stromů v předzahrádce, u vstupu i kolem terasy. 

Závěr

Původní řešení domu, pojetí celého pozemku, i sama lokalita je často pro bydlení obrovskou zátěží. V současnosti je mnoho lidí s nevyhovující nemovitostí, kteří jsou postaveni před stejný problém a řeší otázku jako naše klientka: „Co s tím?“ Nebojte se, řešení zde vždycky je. Níže jsme pro vás vypracovali stručný návod, jak situaci rekonstrukce domu uchopit.

Návod pro domy z porevoluční éry na základě rekonstrukce domu „ŽLUŤÁKU“:

TECHNOLOGIE – ENERGIE

Prověřit obálku (střecha, obvodové stěny, okna) domu po stránce tepelně – technické a zajistit její dimenzi v odpovídajícím standardu dnešní doby 

Přepočítat energetickou náročnost objektu (na základě bodu 1.1), nahrazení energeticky nešetrných zdrojů topení a ohřevu teplé užitkové vody ideálně energií z obnovitelných zdrojů – tepelné čerpadlo, fotovoltaika, solární panely

Vyřešit likvidaci a nakládání s dešťovou vodou – retenční a akumulační nádrže, zasakování, závlahový systém

Využití šedé vody (voda z umyvadel a sprch – za předpokladu, že je stávající systém umožňuje oddělit) – odebírání tepelné energie z této vody

Omezit provozování venkovních a vnitřních bazénů, které konzumují energii a pitnou vodu a produkují znečištěnou vodu do kanalizačního systému

Eliminace chlazení za použití exteriérového stínění a využití vzrostlé zeleně

EXTERIÉR DOMU

       1. Snahou by měla být korekce největších disproporcí objektu

       2. Propojení exteriéru a interiéru směrem do klidové zahrady

       3. Funkční terasa by měla vždy být navázaná výškově na kuchyni v domě. Měla by být částečně nebo plně krytá proti nepřízni počasí

       4. Listnaté stromy, především jakmile dorostou do určité proporce, mohou „milosrdně“ skrýt tvarové nedostatky domu a zároveň zajistit požadovaný stín v    létě a prostup slunce v zimním období

INTERIÉR DOMU

Zpřehlednění dispozic - ve většině případů se jedná o menší domy, které zápasí s velikostí místností

Použití vestavěného nábytku - opticky méně náročný na plochu

ZAHRADA

Minimální procento skutečné zeleně by mělo zaujímat 7 0% plochy z celkové výměry pozemku

Na každou zahradu patří stromy

Závlaha – využívající dešťovou vodu, vodu ze zemního zdroje

Soukromí – po obvodu pozemku je vhodné vyřešit nežádoucí pohledy na sousední pozemky a objekty, a to nejen z terasy či trávníku, ale i pohledy okny zevnitř obytných místností domu.

Život – to nejdůležitější v zahradě není trávník, stromy, či rostliny. Není to paradoxně nic zeleného. Je to cosi nehmotného - soubor všeho, co chce uživatel na zahradě dělat, jak chce zažít svůj prostor a jak zde chce trávit čas. Když si člověk vytvoří prostředí podle svých představ i venku, pak není omezen interiérem, ale může se těšit i ze zahrady a vychutnat si ji, kdykoliv je to možné.
 

Projekt vznikl s využitím ARCHICADu.

  • Ateliér: OK PLAN ARCHITECTS
  • Země: Česká republika
  • Realizace: 2020
  • Město: Humpolec
  • Datum projektu: 2019
  • Realizace: 2020
  • Dodavatel stavební části: Humpolecká stavební s.r.o., Humpolec
Generální partner
Hlavní partneři