OK PLAN ARCHITECTS - Zóna pro umění 8smička
 
                                
                                Humpolečtí pro Humpolec
Zóna pro umění 8smička v Humpolci vznikla přestavbou bývalé továrny na vlněné látky Karla Trnky, která se následně po roce 1948 stala součástí národního podniku Sukno. Objekt prošel low-cost rekonstrukcí už v roce 2010, kdy se jejím hlavním poznávacím znakem stala antracitová fasáda. Zásadnější proměna ale přišla až v letech 2016-2018, kdy architekti z místního studia OK PLAN ARCHITECTS dokončili transformaci průmyslového objektu na galerii, přičemž zachovali jeho charakteristickou antracitovou barvu. Celý projekt navíc iniciovali sami obyvatelé Humpolce v čele s Bárou a Zdeňkem Rýznerovými.
Jedním z požadavků bylo ponechání otvorů oken a zajištění architektonického výrazu budovy, který by objektu navrátil původní charakter fabriky. Architekti navrhli speciální okna s kovovou mříží továrního charakteru s izolačním dvojsklem. Většinu oken v přízemí budovy směrem do ulice tvoří velkoplošné výkladce. Hlavní vstup akcentuje předsazený portál, který nenechává návštěvníky na pochybách, kudy do galerie vstoupit. Čelní část portálu je prosklená a boky tvoří plechové kazety. Velkoplošné zasklení ve vstupní části galerie zároveň propojuje interiér s exteriérem a nabízí tak nahlédnutí do kavárny a bookshopu, které jsou umístěné v přízemí. Okenní rámy vitrín směrem do ulice jsou záměrně potlačeny. Horní a dolní příčky kryje přesah fasádního obkladu, boční sloupky pak zakrývá sklo tónované do černého odstínu. Z exteriéru tak okenní výplň působí jako samostatné sklo.
Subtilní rámy velkoplošných hliníkových oken Schüco dávají skvěle vyniknout architektuře domu jako takové a současně splňují všechny technické parametry moderních okenních výplní. S ohledem na charakter veřejné budovy jsou vstupní prosklené dveře navíc osazeny antipanikovým kováním pro možný únik návštěvníků. Specialitu představuje přídržný magnet zabudovaný přímo do rámu dveří, který v případě krádeže v galerii umožní jejich zablokování.
Na míru galerii
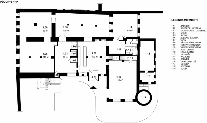
Třípodlažní objekt autoři funkčně rozdělili tak, že v prvním nadzemím podlaží se nachází hlavní výstavní prostor se zaměřením na české moderní a současné umění, kavárna, knihkupectví a multifunkční přednášková místnost. Další výstavní prostory určené pro sbírkovou expozici vznikly o patro výše, kde se nachází také prostor pro potřebné zázemí. Do nejvyššího podlaží umístili architekti depozitář.
Specifická náplň objektu vyžadovala zvláštní přístup k návrhu akustického řešení, speciálních světelných podmínek i technologií zajišťujících optimální kvalitu vnitřního prostředí. Požadavkem provozovatelů byla dostatečná světlá výška umožňující vystavování rozměrnějších exponátů, takže se architekti při návrhu všech potřebných technologií museli vyrovnat s omezenou možností instalace podhledů. Systémem snížených sádrokartonových lemů na výšku 2,6 metru kolem obvodu každé výstavní místnosti bylo dosaženo kompromisu, aby hlavní plocha zůstala ve světlé výšce cca 3 metrů a současně vznikl dostatečný prostor pro umístění všech potřebných technologií. Hranu lemu využili architekti také pro instalaci zapuštěného osvětlovacího systému. Optimální akustiku výstavních prostor zajišťuje perforovaný akustický sádrokartonový podhled.
Jedním ze zásadních parametrů kvality vnitřního prostředí výstavních prostorů je světlo. Přirozené světlo je v principu hůře regulovatelné a může také znehodnocovat umělecká díla a urychlovat jejich stárnutí. Přístup slunce do interiéru proto korigují rolety s minimální propustností světla. Architekti navíc zvolili sofistikovaný systém galerijního umělého osvětlení umožňující cílené osvětlování exponátů v požadované míře intenzity a díky lištovému systému vytvořit pro každou výstavní kompozici originální světelnou scénu.
Další zásadní parametry pro prostředí galerie představují teplota, vlhkost a výměna vzduchu. Čerstvý vzduch předepsaných vlastností se do velkých výstavních prostor dostává prostřednictvím jednotky přesné klimatizace umístěné skrytě v nikách nosných stěn.
Hravý industriál
Původně průmyslový charakter budovy se propisuje také do řešení interiéru. Strohému pojetí výstavních prostor v přízemí včetně auditoria a knihkupectví napomáhá sjednocující epoxidová stěrka v bílé barvě. Industriální strohost pak umocňuje ještě přiznané zdivo v šedém odstínu, jako jeden z mála prvků ponechaný z předchozí rekonstrukce v roce 2010.
Kavárna s dubovou podlahou a nábytkem firmy TON vyloženě láká všechny návštěvníky k posezení. První patro s místností pro porady týmu naopak působí téměř domácky. S kancelářemi týmu je pojí tajné dveře. Společenskou místnost a kavárnu navíc zdobí osm repasovaných křesel Jindřicha Halabaly. Kavárně vévodí nevšedně pojatý bar, jenž tvoří na míru vyrobená kompozice rámů obrazů.
- Autoři: Luděk Rýzner, František Čekal
- Ateliér: OK PLAN ARCHITECTS
- Země: Česká republika
- Město: Humpolec
- Datum projektu: 2016
- Realizace: 2018
- Užitná plocha: 3 000.00m2
- Zastavěná plocha: 1 073.00m2
- Poznámka: Foto © Lukáš Žentel, Anna Pleslová
Související projekty
Související architekti
Související ateliéry a firmy
Mohlo by vás zajímat
 
				 
				 
				 
				 
				 
				 
				 
				 
				 
				 
				 
				 
				 
				 
				 
				 
				 
				 
				 
				 
				 
				 
                             
                             
                             
                             
                             
                                 
                             
                             
                             
                             
                             
                             
                             
                             
                             
                             
                             
                             
                             
                             
                             
                     
                     
                     
                     
             
             
             
            		 
            		 
            		 
            		 
            		 
                                                                                                             
                                                         
                                                         
                                                                                                             
                                                         
                                                         
                    