Pavlíček Hulín - Okál

Původní dům katalogového typu okál byl postaven v sedmdesátých letech minulého století. Produkce tohoto typu domu probíhala masově – jednalo se totiž o jeden z mála typových domů dostupných v socialistickém Československu.

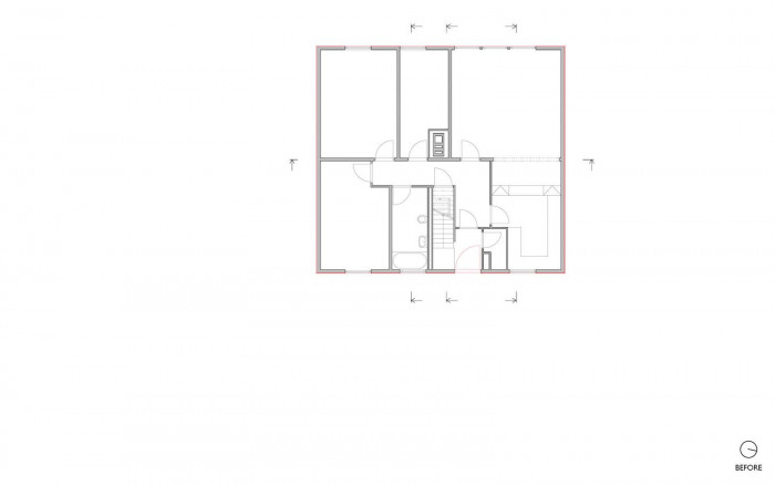
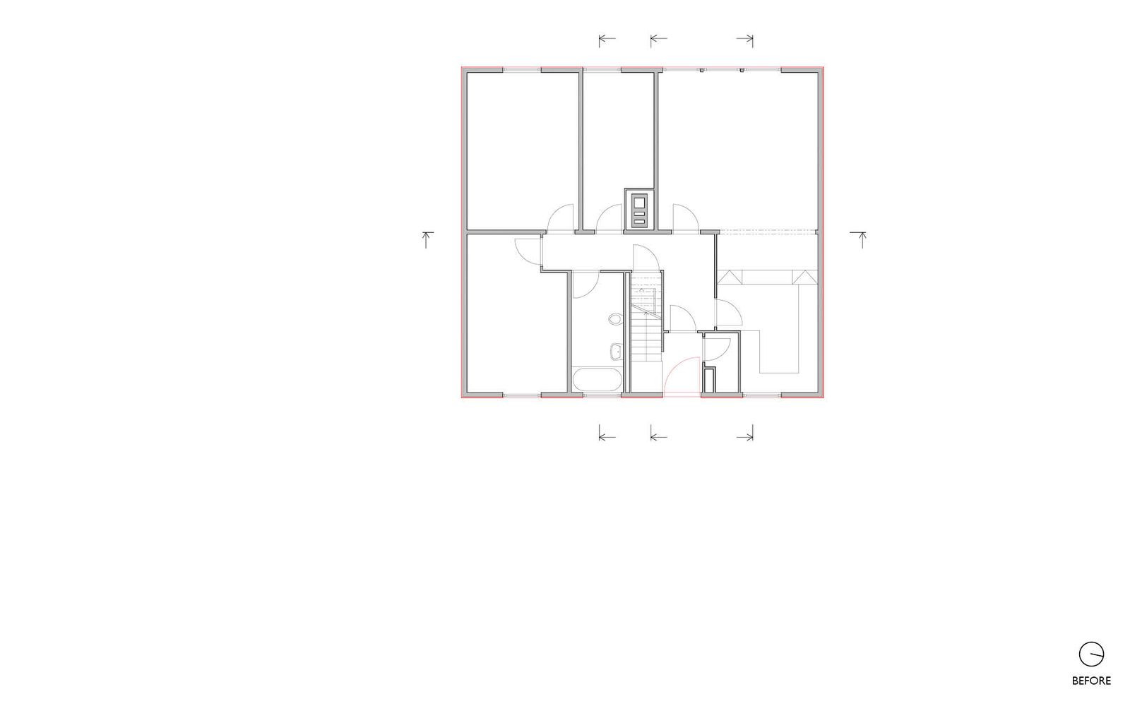
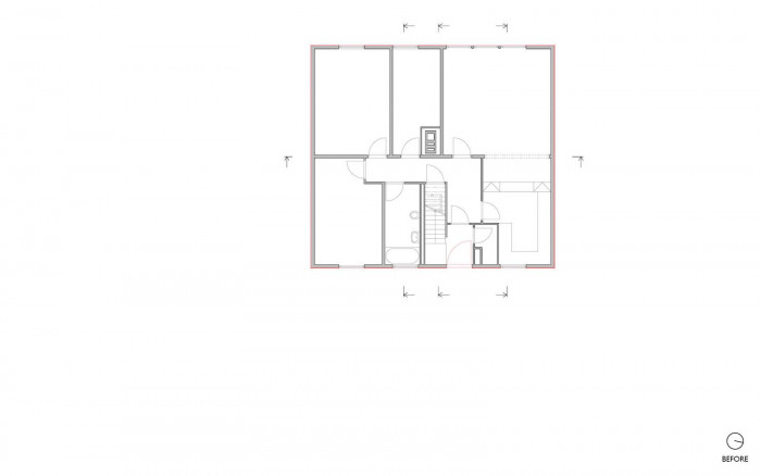
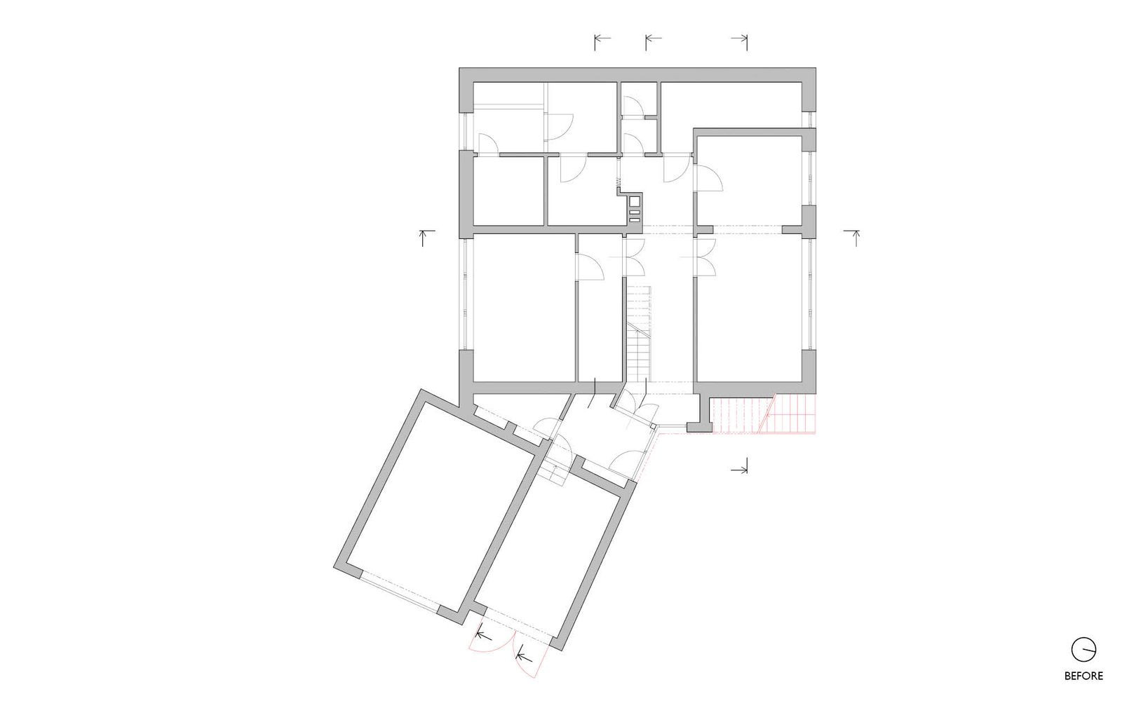
Vzhledem k omezenému rozpočtu nedošlo při rekonstrukci k žádným podstatným stavebním změnám. Hlavním motem návrhu se proto stalo sjednocení výrazu jednotlivých nesourodých prvků. Tento koncept byl aplikován jak na interiér, tak i na exteriér budovy.

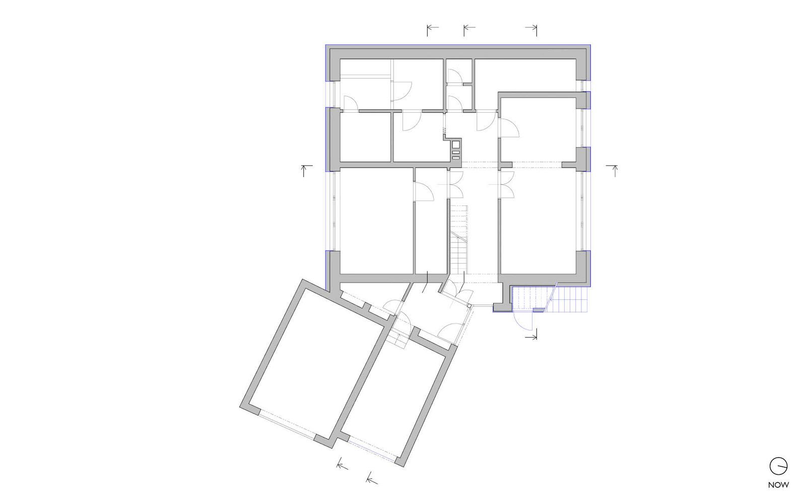
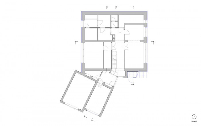
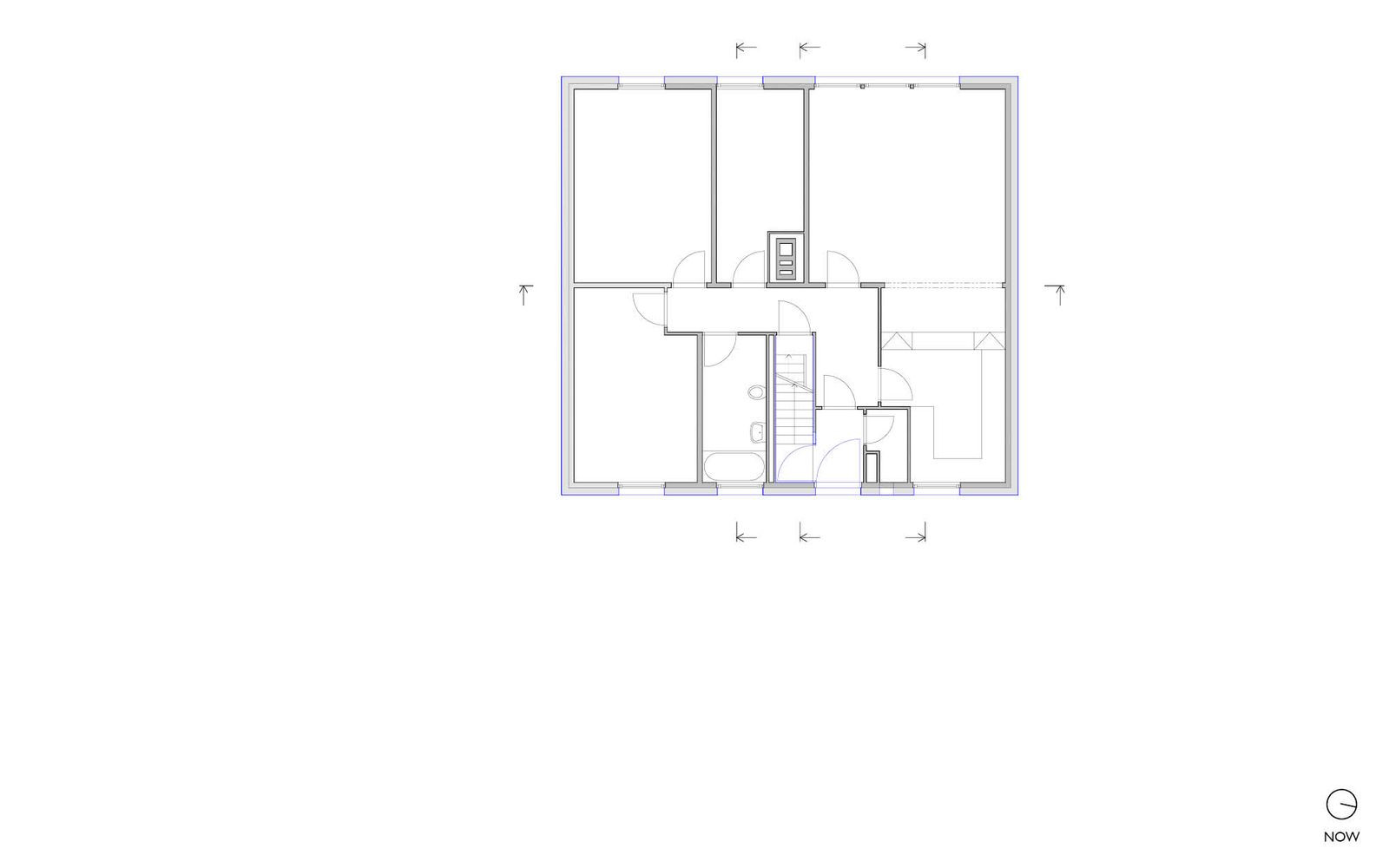
Návrh se zaměřil zejména na přeměnu podkroví. Přidané světlíky a stropy otevřené do štítu zajistily v interiéru více světla a prostoru. Prostor byl dále rozdělen na denní a noční část. Hlavní otevřený obývací prostor se rozprostírá mezi kuchyní na jedné straně a domácím kinem na druhé – vzájemně propojené velkou jídelnou. Noční část sestává z ložnice a šatny. Noční a denní část propojuje chodba, která vede rovněž do koupelny. Přízemí a suterén zůstaly bez zásahů.

Zdi a stropy interiéru jsou obloženy borovicovou překližkou pro zdůraznění dřevěné konstrukce domu. Podlaha je vyrobena z borovicových prken, tak aby ladila s materiálem stěn. Prostory s většími požadavky na údržbu, jako je kuchyň a koupelna, jsou navrženy v bezúdržbových materiálech s monochromatickou barevností.

Exteriér je sjednocen do elegantní bílé barvy s omítnutými zdmi a plechovou střechou, která sbližuje původně rurální charakter domu s jeho městským okolím. Dům je izolován minerální vlnou pro zajištění současných tepelných požadavků.

Generální partner
Hlavní partneři