Pelčák a partner architekti - Universita J.E.Purkyně
Z torza kampusu vytváří návrh celek, který zapojuje do urbánní textury města. Používá přitom jasnou urbanistickou typologii, vytváří prostory a vazby s jednoznačným charakterem: náměstí, louka, park, promenáda, brána, městské schodiště, městská terasa.
Náměstí v těžišti kampusu je jeho jediným městsky artikulovaným veřejným prostorem. Vstupuje se z něj rovněž do budovy CPTO, která ho vymezuje z východu a jihu. Výhled na protější lesnaté svahy však její objem neuzavírá, neboť je v úrovni parteru průhledný skrze bránu se schody do parku i otevřený prostor menzy.
Do náměstí se rovněž otevírá foyer před přednáškovými sály ve východním křídle. V úrovni parteru je tak prostor náměstí vizuálně propojen s „veřejnými“ prostory budovy. Promenáda podél její jižní fasády přímo propojuje trasování ulic na obou protějších hranách města.
Půdorysný tvar i umístění stavby vychází z geometrie existující části kampusu i původního nemocničního areálu a její objem vytváří figuru jasně rozeznatelnou v obraze města. Architektura návrhu je konkrétní ve své formě, materialitě, prostorové struktuře, a to uvnitř i vně. Je utvářena tradičními tématy tíže, tektoniky, plasticity. Také jasným ustavením objemů a povrchů i hranice mezi vnitřním a vnějším. Tato jednoznačnost neomezuje, nýbrž průhledy, obrazy a perspektivou naopak generuje bohatost prostorových vjemů.
Současně však je architektura návrhu tvořena abstrakcí. Základní prvek fasády – okno – je měřítkem antropometrickým, jeho abstrahující multiplikací v geometrickém řádu však vzniká celek měřítka velkého města či krajiny.
Zvolená plasticita pláště – šikmé plochy meziokenních pilířů – není pouze odkazem k Lehmannově ústeckému paláci Riunione (vč. keramického povrchu), nýbrž především formálně řeší vhodný poměr plného a proskleného povrchu a jeho zastínění vůči horkému západnímu slunci.
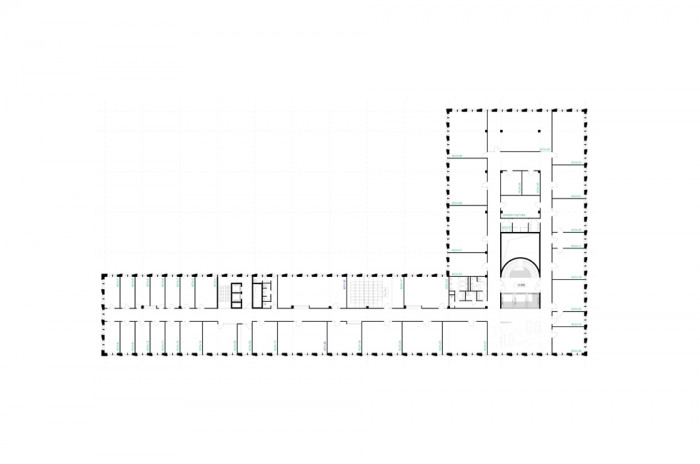
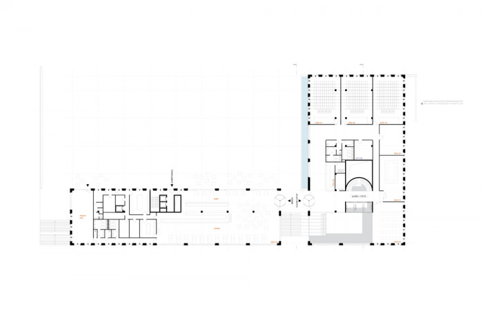
Objekt CPTO má půdorysný tvar písmene L s delším podélným křídlem umístěným východozápadní osou po vrstevnici. V tomto křídle jsou umístěny pracovny pedagogů, kdežto v kratším, příčném pak provozy používané studenty – tzn. učebny a laboratoře. V místě průniku obou je umístěno hlavní vertikální jádro tvořící jejich spojující článek, rozšířený v každém podlaží o prostor respiria otevřený k jižní fasádě s výhledem na město a do údolí Labe.
Přednáškové místnosti jsou situovány ve vstupním podlaží, další velké učebny o patro níže, v přízemí, které však ve vztahu ke vstupnímu podlaží umístěnému v úrovni náměstí je suterénem. Obě přízemní podlaží – ze strany náměstí a parku – jsou proto v návaznosti na hlavní vstup propojeny patrovou vstupní halou.
Projekt vznikl s využitím ARCHICADu.
- Autoři: Rastislav Balog, Barbara Bartoňková, Pavel Dvořák, Kateřina Eiermannová, Jan Foltýnek, Jakub Hanžl, Martina Holá, Martin Jireš, Nikola Korábová, Jan Kubát, Lenka Ľuptáková, David Menšík, Petr Pelčák, Petr Uhrín, David Vahala, Miroslava Zadražilová
- Ateliér: Pelčák a partner architekti
- Země: Česká republika
- Město: Ústí nad Labem
- Datum projektu: 2015
- Realizace: 2020
- Poznámka: Foto © Filip Šlapal
Související projekty
Související architekti
Související ateliéry a firmy
Mohlo by vás zajímat