Pelčák a partner architekti - Penzion Hrušky
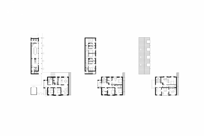
V nadějeplné době po skončení druhé světové války se místní mlynářská rodina rozhodla vybudovat vedle svého strojního mlýna velký rodinný dům. Než ho však stihla dostavět, přišel mrazivý únor roku 1948 a mlynáři o mlýn přišli. Aby podobný osud nepostihl také rozestavěný dům, raději ho nedokončili. A protože diktatura proletariátu trvala déle, než si kdo myslel, dokončil ho až nyní vnuk původních stavebníků.
Protože se však doba změnila, změnil se i účel stavby. Z chlévů ve dvoře se stala společenská část penzionu se čtyřmi pokoji v podkroví. Původní hospodářskou stavbu připomíná svojí kolonádou s ocelovými sloupy i užitím dřeva. V rodinném domě jsou nyní hostinské pokoje. Jelikož tento dům v uliční frontě patří z těch „starých“ k největším ve vsi, snažili jsme se ho do ní usadit korekcí měřítka horizontálním členěním plochy fasády. A také užitím tradičních materiálů, omítky a dřeva – a obvyklé barevnosti.
Materialitě, detailům a interiéru staveb jsme věnovali mnoho pozornosti s cílem vytvořit prostředí, které je venkovské a tradiční, a přesto odpovídá dnešním nárokům provozním i estetickým. Chtěli jsme dát vzniknout atmosféře, v níž si nejsme jisti, zda je dílem minulých generací stavebníků nebo jejich dnešních potomků.
Problém vesnického prostředí zničeného dlouhými čtyřiceti lety komunistické diktatury nám tu naštěstí pomohl vyřešit rozsáhlý pozemek. Zahrada pro nás tedy byla stejně důležitá jako obě stavby. Ty mají v zahradě svůj svět. Do něho jsme je obrátili a otevřeli. Chtěli jsme založit místo, kde vše má svůj charakter, a současně vše tvoří celek.
Projekt vznikl s využitím ARCHICADu.
- Autoři: Petr Pelčák, Petr Uhrín, Lenka Vořechovská
- Ateliér: Pelčák a partner architekti
- Země: Česká republika
- Město: Hrušky
- Ulice, číslo: U zbrojnice 442
- PSČ: 691 56
- Datum projektu: 2012
- Realizace: 2017
- Ferotypie: Vladimír Židlický
Související projekty
Související architekti
Související ateliéry a firmy
Mohlo by vás zajímat