Petr Janda/Brainwork - Lazy House

Idea

Idea domu leží mimo jeho fyzickou podobu a je postavena zevnitř ven na principech prostorového propojení s prostředím, z něhož dům vyrůstá a do nějž se dívá. Logika konceptu stojí na vazbách mezi domem a městem, domem a jeho zahradou a zahradou a městem. Vztahové schéma pak navazuje uvnitř domu, kde plynutí interiéru společenské části protékající celým domem pocitově pokračuje do všech exteriérových a výhledových vazeb a vnitřním členěním odděluje soukromí jednotlivých privátních součástí s vlastními extrovertními vztahy.

Vizualitu domu tak vytváří jeho vnitřní podstata a propustnost fyzické schránky (ne)dělící interiér domu od vnějšího prostředí. Vzhled domu je filtrem této materializace, kde rozhraní udržující soukromí je řešeno membránami fasád s maximální propustností zevnitř ven a několika principy modulujícími naopak prostupnost zvenku dovnitř. Takto definovaná figura pak používá materiálové mimikry pro vsazení do kontextu zahrady a města a definuje vizualitu domu.

Lazy House, 
petrjanda/brainwork © BoysPlayNice

Situace

Dům je situovaný zdánlivě mimo kontext baťovského urbanismu a jeho konstrukční a vizuální kánon. Vnímání Zlína je však v jeho řešení všudypřítomné, definující vzájemným pohledovým a průhledovým kontaktem horizont událostí celého architektonického konceptu. Pozemek je součástí nového urbanistického celku vzniklého adaptací bývalé zahrádkářské kolonie, která byla rozdělena na šest poměrně velkorysých stavebních parcel a napojena na okolní urbanistickou strukturu vlastní komunikací. Lokalita navazuje na zlínskou čtvrt Lazy v její terminální partii v nejvyšší pozici na svahu pod lesem a nad údolím Zlína.

Specifickým rysem pozemku je jeho inverzní orientace ke světovým stranám, kdy výhled do údolí je severním směrem, a jižní část pozemku je ovlivněna svahem a lesem stoupajícím nad domem. To je ovšem „vykoupeno“ vynikajícím výhledem do celoročně osluněného údolí. V záběru výhledu je široký úsek Zlína s charakteristickými čtvrtěmi domků v zeleni (Lazy, Lesní čtvrt, Podvesná, Zálešná) v panoramatickém rozsahu od areálu Baťovy továrny až po Příluky a hlubokým průhledem údolím v pozadí s Lukovem a Hostýnskými vrchy.

Typologicky referenčními stavbami, ze kterých projekt čerpá své pocitové zakotvení, jsou výrazné architektonicky solitérní vily situované v prostředí s nevšedním výhledem typu „vila na útesu“ či „rezidence nad městem“. Jde o esenciální archetyp domu těžícího architektonickými prostředky z výjimečnosti svého umístění. V topografických podmínkách Zlína je výhled z domu analogií výhledu středomořských vil nebo losangeleských rezidencí.

Lazy House, 
petrjanda/brainwork © BoysPlayNice

Architektonické řešení

Dům je navržen jako kompaktní solitérní objem na čtvercovém půdorysu s pootočením dispozice uvnitř pláště, kdy vnějšek osově respektuje vrstevnicovou logiku okolních domů, zatímco vnitřek se přitáčí k městu ve směru hranic pozemku. Kompozice domu je tvořena do svahu zapuštěným soklem spodního podlaží a na něm nasazeným hranolem hlavního obytného podlaží. Výsledná figura domu tak z jižní strany působí jako jednopodlažní. Soklové podlaží je zapuštěno v terénu a vymezeno vjezdovou stěnou garáží skosenou ve směru kolmo k podélné ose interiéru. Objekt hranolu horního podlaží tak vytváří dynamický vykonzolovaný prvek chránící příjezd do garáží. Motiv skosení dispozice je v patře zopakován. Zatravněná zelená střecha vrací pozemku chybějící plochu zahrady odebranou půdorysem domu a je doplněna celoproskleným střešním ateliérem.

Hlavní obytný prostor domu je koncentrován na ploše horního podlaží a je možné jej prohlédnout napříč ze zahrady k městu skrze centrální společenskou zónu. Rotace dispozice umožňuje rozmístění obytných místností po obvodě tak, že si udržují svou vlastní intimitu a výhledovou logiku. Koncept domu umožňuje proměňovat dramaturgii užívání s plynulou reakcí na měnící se požadavky během životních etap stavby. Kompozice strukturuje dům na jednotlivé partie tak, že si udržují svou vlastní intimitu se vztahem k zahradě a výhledu a umožňuje dosáhnout vícegeneračního uspořádání pomocí dvou oddělitelných hostinských sekcí na vstupním podlaží s možností samostatného přístupu.

Výrazové řešení využívá mimikry maskování letadel. Hlavní obytné podlaží se pohledově propojuje s nebem odhmotněním skrze zrcadlení a moaré fasád a „levituje“ na cortenové podnoži vnořené do svahu. Zelená střecha s proskleným ateliérem srůstá v pohledu shora s kobercem zahradního města posetého domečky. Strategie vrůstání do svahu a splynutí s charakterem zahrady je použita u řešení sklípku, bazénu s grottou i příjezdové plochy a oplocení s vjezdovou bránou a popelnicovým boxem. Zahrada plynule obtéká dům a vytváří skryté pobytové zálivy chráněné před pohledy zvnějšku a umožňující panoramatické výhledy na město. Otevřený koncept zároveň přirozeně dosahuje pobytovou intimitu vegetačním řešením chránícím boční hranice pozemku.

Lazy House, 
petrjanda/brainwork © BoysPlayNice

Dispoziční řešení

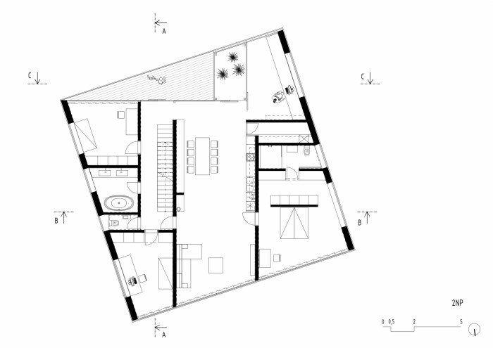
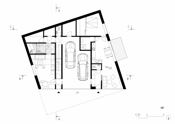
Přístup do domu je veden z ulice skrze bránu a vstupní podlaží s garáží, které umožňuje oddělený vstup do hlavního obytného podlaží a hostinského bytu. Hlavní obytné podlaží je umístěno v patře a je přístupné jednoramenným vstupním schodištěm otvírajícím průhled do zahrady. Dispoziční uspořádání minimalizuje použití komunikačních koridorů ve prospěch plynulého obytného prostoru. Zónování na klidové a společenské části je vedeno od středu dispozice k okraji. Principem uspořádání je maximální dosažitelnost všech klidových partií z centrální společenské zóny za současného oddělení částí určených dětem a rodičům. Společenská zóna je tvořená prostorem sdružené kuchyně, jídelny a obývacího pokoje, který prochází napříč celou dispozicí a zůstává chráněn umístěním uvnitř dispozice. Kolem této centrální části jsou pak rozmístěny ostatní obytné místnosti situované do rohových pozic po obvodu dispozice tak, aby těžily buďto z výhledu na město nebo z kontaktu se zahradou.

Lazy House, 
petrjanda/brainwork © BoysPlayNice

Dům je vizuálně prostupný (zevnitř ven) skrze svou severní a jižní fasádu zatímco východní a západní fasáda chrání soukromí domu v kontaktu se sousedy a propouští pohled ven a slunce dovnitř skrze pásová okna krytá nerezovou membránou a žaluziemi. Rodičovskou zónu tvoří ložnice navázaná „tajnými“ dveřmi skrze šatnu na vlastní koupelnu, dětskou zónu pak dva dětské pokoje, které mezi sebou svírají koupelnu a WC. Dispozici podlaží doplňuje prosklená pracovna propojená s obývací zónou a terasou skrze prosklenou zimní zahradu a spíž navázaná na vestavěné skříně kuchyně. Spodní podlaží je koncentrováno kolem garáže pro dva vozy umístěné uprostřed půdorysu, po stranách garáže jsou oba vstupy do domu. Západní partie podlaží obsahuje hostinský byt se samostatným vstupem navržený pro prarodiče, návštěvy nebo dospívající děti. Byt je řešen volnou dispozicí soustředěnou kolem společenské části tvořené spojením kuchyně, jídelny a obývacího pokoje s oddělenou intimní partii ložnice s vlastní šatnou, koupelnou a samostatným WC. Byt je skrze terasu navázán na západní a severní část zahrady oddělující jeho soukromí od jižní pobytové zahrady hlavního podlaží. Hlavní vstup do domu je napojen na šatnu, kterou je možno změnit na další hostinský pokoj napojený skrze koupelnu se saunou a prádelnou do zadní technické části půdorysu spojené s garáží.

Lazy House, 
petrjanda/brainwork © BoysPlayNice

Konstrukční a materiálové řešení

Dům používá svou nosnou konstrukci jako kostru, izolaci jako svalstvo, vytápění jako krevní oběh, vzduchotechniku jako plíce a průdušnice, rozvody vody a kanalizaci jako trávící ústrojí, elektroinstalace jako nervový systém a povrchové vrstvy jako kůži, chránící celé tělo a umožňující jeho povrchu dýchat. Konstrukci domu tvoří železobetonový monolit, kontaktně izolovaný výkonnou tepelnou izolací ve vrstvě odpovídající nízkoenergetickým až pasívním stavbám, pohledově obložený v exteriéru i interiéru materiály tak, aby přirozeně podporovaly kompoziční skladbu domu.

Hmota hlavního obytného podlaží má plně strukturálně prosklenou severní a jižní fasádu s velkoplošným pokoveným trojsklem, zatímco fasády orientované k sousedům pohledově tvoří nerezová tkanina překrývající okna. Její hedvábně lesklý povrch doplňuje odraz skel a vytváří těkavé moaré, které splývá v pohledu od příjezdu s oblohou. Spodní podlaží je včetně vrat garáže obloženo předkorodovaným ocelovým plechem corten s výraznou rezavou barevností, který pocitově propojuje dům se zahradou a materiálově s vjezdovou bránou a zahradními prvky. Barevné a materiálové řešení domu zároveň pracuje se sémantickým vymezením vně a uvnitř. Kovový exteriér kontrastuje s dřevěným interiérem tvořeným velkoplošnými dýhovanými obklady, vestavěným nábytkem a masívními podlahami. Dominantním materiálem stěn, dveří a vestavěného nábytku jsou dýhované jilmové obklady v kombinaci s masivní irokovou podlahou. Výsledným dojmem je kontinuální volné plynutí prostoru celým interiérem domu. Toto plynutí je v jednotlivých epicentrech dispozice pointováno pomocí prvků obkládaných sklem rytmizujícími povrch stěn odrazem světla vtahujícími výhledy z velkoplošných oken do hlubších partií interiéru.

Lazy House, 
petrjanda/brainwork © BoysPlayNice

Práce s detailem je podřízena měřítku domu jako celku a jeho pocitové „bezdetailovosti“ a potlačuje přiznanou tektoniku jednotlivých prvků ve prospěch samozřejmého pocitu plynutí interiérové kůže celým domem. Logika dýhování sleduje celistvost a plošnou podstatu povrchů stěn, listy dýh jsou kladeny tak aby nedocházelo k čitelnému opakování a navazují mezi prvky a plochami zlomů. Směr podlahových a terasových prken sleduje plášť domu a jemně podprahově upozorňuje na napětí mezi oběma pravoúhlými systémy – exteriérovým a interiérovým. Atmosféra interiéru pracuje s dramaturgií své proměnlivosti tvořené napětím mezi světelností přirozenou a modulovanou a její intenzivní proměnlivostí v čase. Umělé osvětlení je řešeno jako integrální (a přitom stále autonomní) vrstva interiéru postavená na kombinaci přímého a nepřímého světla spojeného v souhře s výraznou materiálovostí celého interiéru. Světla pracují s kombinací odraženého „iridescentního“ světla rozptýleného čočkami s dvoubarevnými rozptylovými filtry skrze plochu stropu a přímého svícení nebarevným světlem do prostoru interiéru. Řešení stropů využívá jemný retroreflexivní vliv perleťového nástřiku v odstínech přecházejících gradientem od středu k okraji dispozice do jednotlivých zálivů interiéru.

Možností domu je několikavrstvé postupné oddělení „scény“ interiéru od vnějšího vlivu pomocí membrán záclon, závěsů a screenů, materiálově vycházejících z navazujících charakterů stěn s různou světelnou propustností od jemné translucence až k úplnému zatemnění.

Lazy House,
petrjanda/brainwork © BoysPlayNice

Zahrada a vnější součásti domu

První vrstvou vsazující dům do jeho kontextu je zahrada navržená jako plynulý koberec rozvíjející původní spádování pozemku několika pobytovými epicentry. Přirozenou dominantou nejvyšší části pozemku je kompozice grotty s bazénem vytvářející pobytové zázemí krytého exteriéru s výhledem do údolí města. Výškové umístění bazénu je posazeno tak, že hladina bazénu leží nad „hladinou“ střechy domu, kterou tak je možné při plavání přehlédnout a vnímat ji jako propojenou se zahradním městem v údolí. Křivková forma grotty je skládaná z postupně natočených masivních modřínových fošen spřažených jako přiznané bednění pro skrytou železobetonovou skořepinou zapuštěnou v terénní modelaci navazující nad grottou a vytváří tak „jeskyni“ vyříznutou z kopce zahrady. Nerezový bazén používá hranový přepad se žlabem kopírujícím svah navazujícího terénu a vytvářející nekonečný efekt hladiny. Roleta chránící teplotu vody v době kdy bazén není využíván je skrytá pod lavicí z nerezových tyčí ponořené v bazénu. Sklípek je adaptací původního cihelného klenutého sklípku, reliktu původní zahrádkářské kolonie. Ten byl doplněn a vybaven vnitřní ocelovou voskovanou vestavbou tvořící regály na láhve. Střecha sklípku je tvořena irským mechem prorůstajícím zpevňující břidlicové štěty kopírující plynulou modelaci jejího tvaru.

Lazy House, 
petrjanda/brainwork © BoysPlayNice

Zahrada je definována volně plynoucím propojením trávníku a louky oddělující dům od ulice a předprostor hostinského bytu od její hlavní pobytové části. Intimitu vůči sousedům udržují vysoké výsadby bambusů a travin organicky navazující na zvlněný terén, které kompozičně doplňuje několik solitérních dřevin vybraným s důrazem na jejich pestrý projev během ročního cyklu. Samostatnou tematickou vrstvou, propojující kompozičně dům se zahradou, je střecha domu s proskleným ateliérem zapuštěným mírně do jejího povrchu. To v pohledu z něj umožňuje vnímání zelené střechy jako vlastní „nekonečné“ louky a její prolnutí do zahradního města.

Lazy House, 
petrjanda/brainwork © BoysPlayNice

Technologické řešení

Dům je navržen s důrazem na propojení jeho architektonicko-prostorových kvalit s aktuálně dostupnými technologickými principy a dosahuje parametrů přibližující se pasivnímu standardu. To se spolu s odkazem k místopisnému názvu lokality stalo zdrojem jeho pojmenování Lazyhouse. Celý dům má řízenou ventilaci s rekuperací kombinovanou s podlahovým vytápěním napojeným na tepelné čerpadlo se dvěma zemními vrty umístěnými pod základovou deskou domu a letním reverzním chodem použitým k chlazení. Vytápění a chlazení je nízkoteplotní a neznatelné při doteku na povrchu podlah, kombinované rozvedení s vlastní regulací vytápí stěny v koupelnách před ručníkovými madly a ocelové sloupky v zimní zahradě. Vnější nádech vzduchotechniky je vyveden pomocí zemního registru do prostoru v sousedství sklípku, což díky vedení v nezámrzné hloubce umožňuje teplotní úpravu vzduchu již před vlastní rekuperací.

Rozvody ventilace jsou ze strojovny vedeny pod stropem garáže a v konstrukcích podlah k vyústění výdechů do plenumboxů s distribucí neznatelnými štěrbinami v linii doběhu podlah k velkoplošnému zasklení. Zpětná cirkulace probíhá skrze nasávání ve stropech koupelen a štěrbinami mezi stropem a obkladem. Střešní ateliér je možno vzhledem k jeho maximálnímu prosklení stínit pomocí screenových rolet a lokálně dochladit jednotkou skrytou ve schodu na terasu. Bazénová technologie s filtrací je umístěna uvnitř domu a využívá samospádný sběr vody z bazénových žlabů a její následné zpětné přečerpání. Zahrada je zavlažována rozvedením spádové podpovrchové vody a z vrtané studny a rezervoáru skrytého v prostoru nad grottou. Aktivní bleskosvod je umístěn mimo dům v horním cípu zahrady za grottou odkud pokrývá celou jeho plochu pozemku.

Lazy House, 
petrjanda/brainwork © BoysPlayNice

  • Země: Česká republika
  • Město: Zlín
  • Realizace: 2020
  • Užitná plocha: 345.00m2
  • Zastavěná plocha: 225.00m2
  • Plocha pozemku: 1 400.00m2
  • Poznámka: Grotta — Truhlářství Obdržálek
Generální partner
Hlavní partneři