Rekonstrukce experimentálního domu v Rožnově pod Radhoštěm

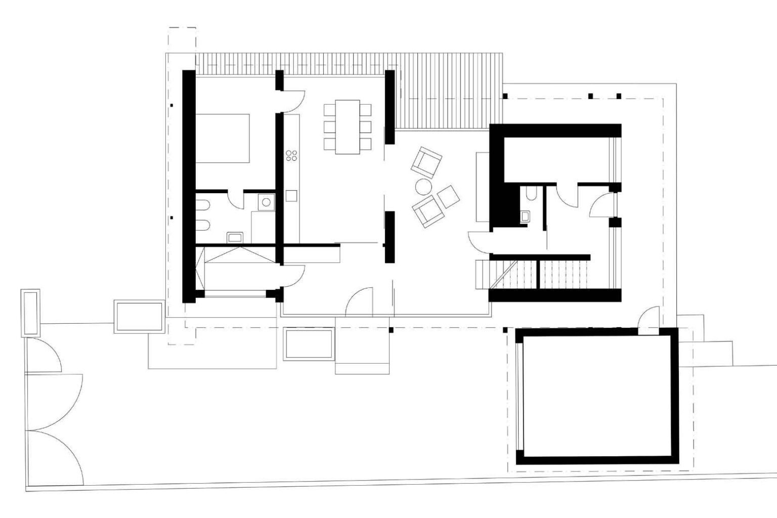
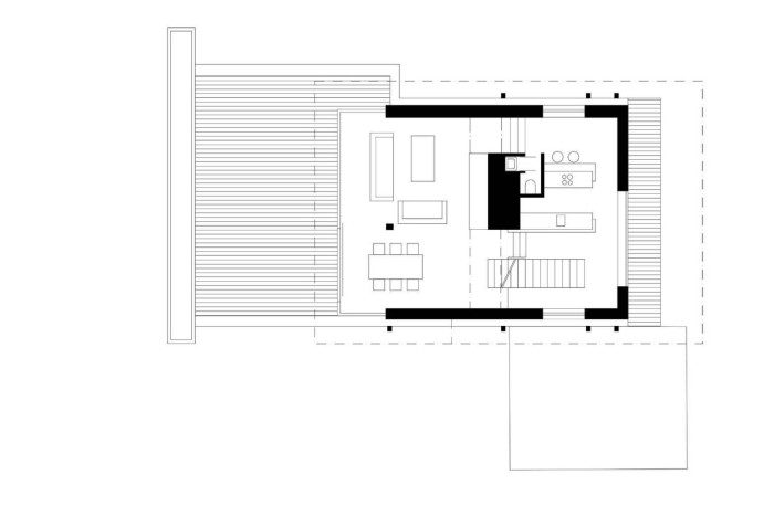
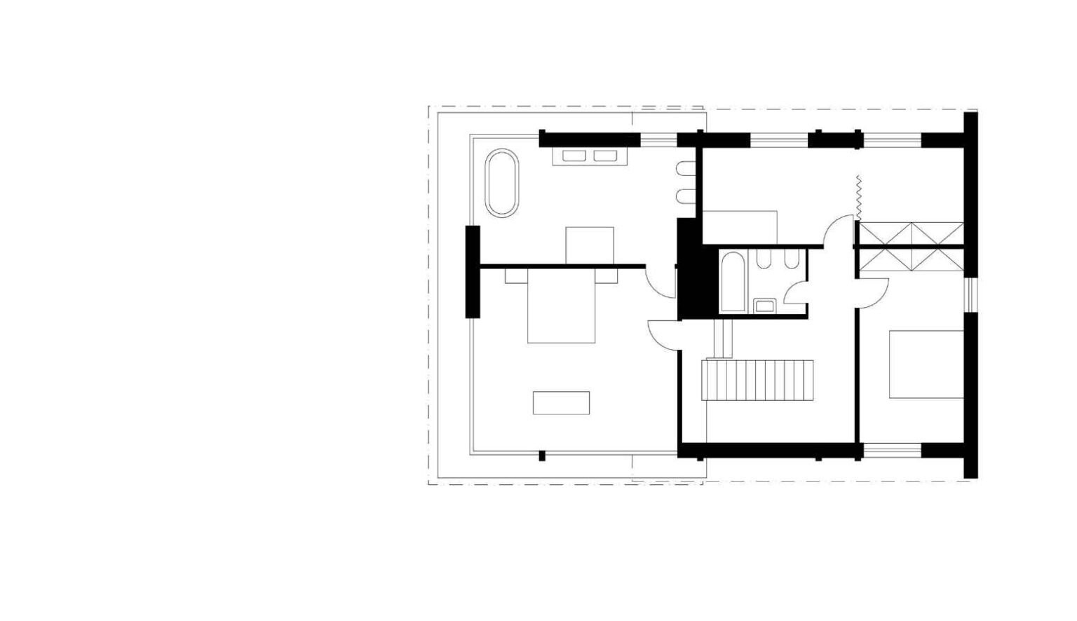
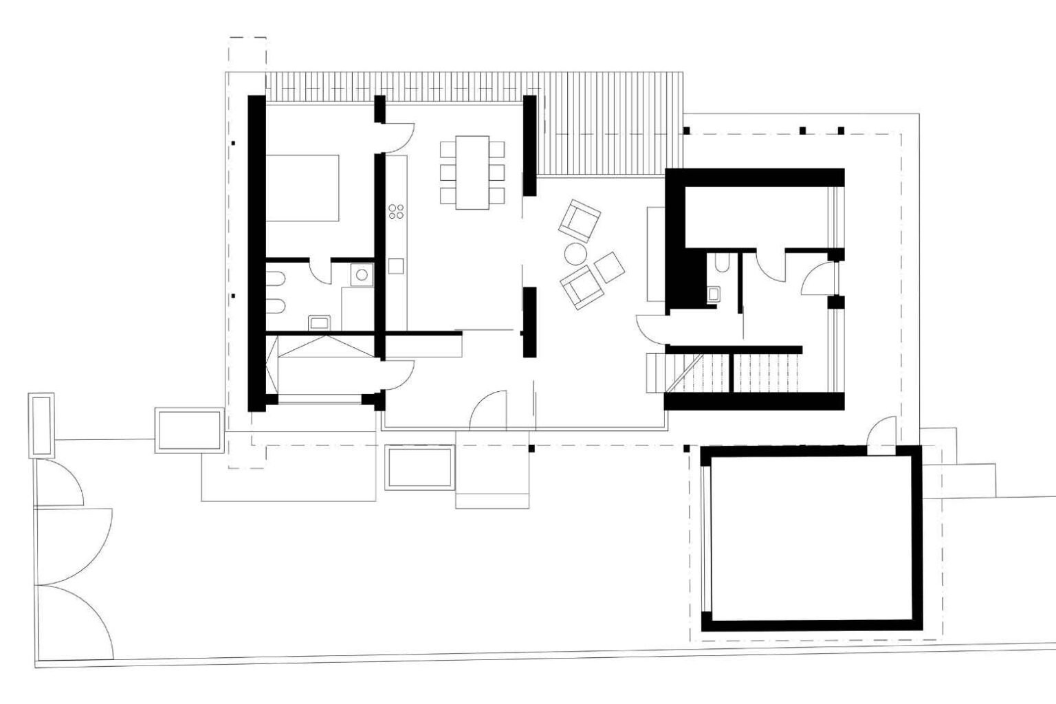
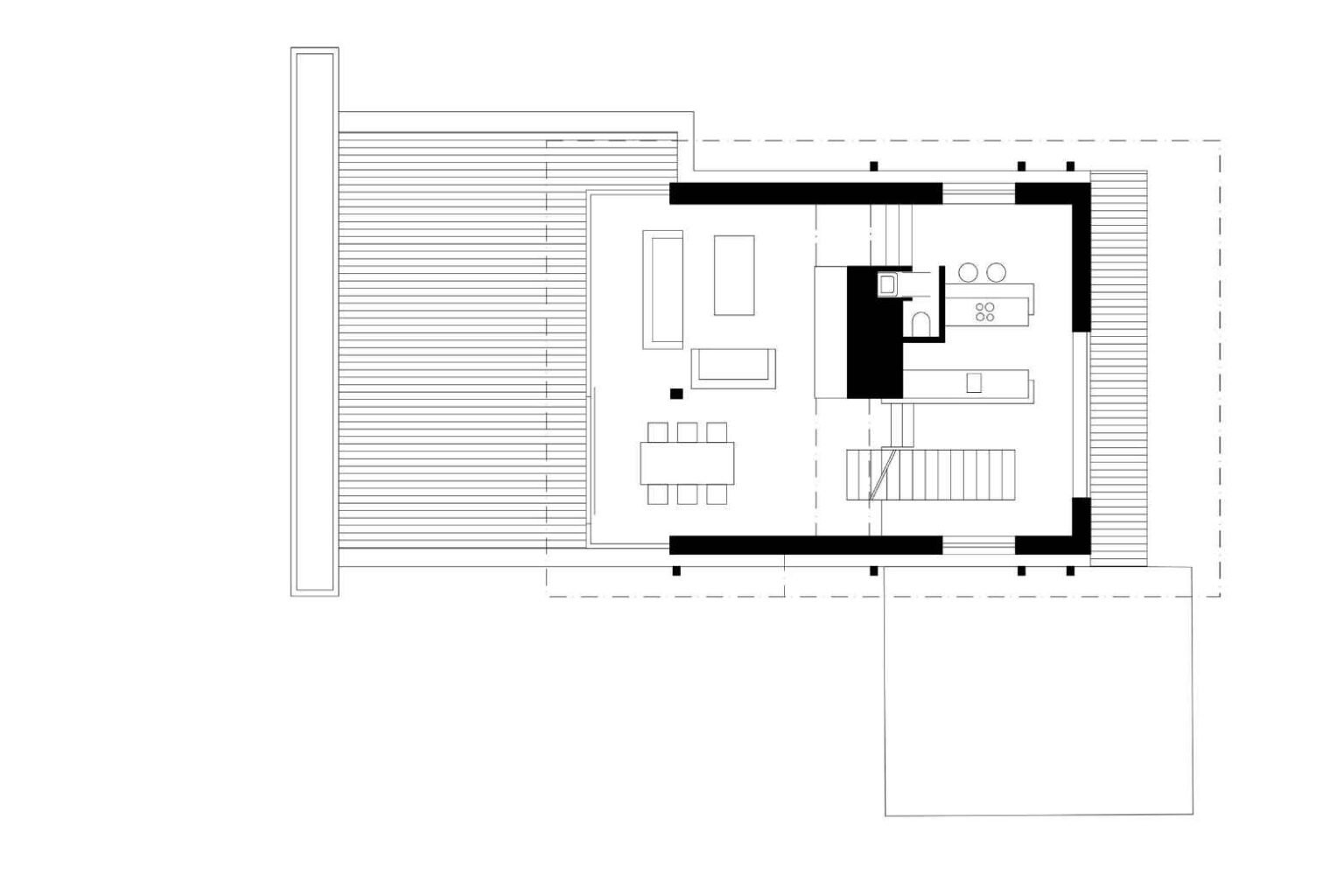
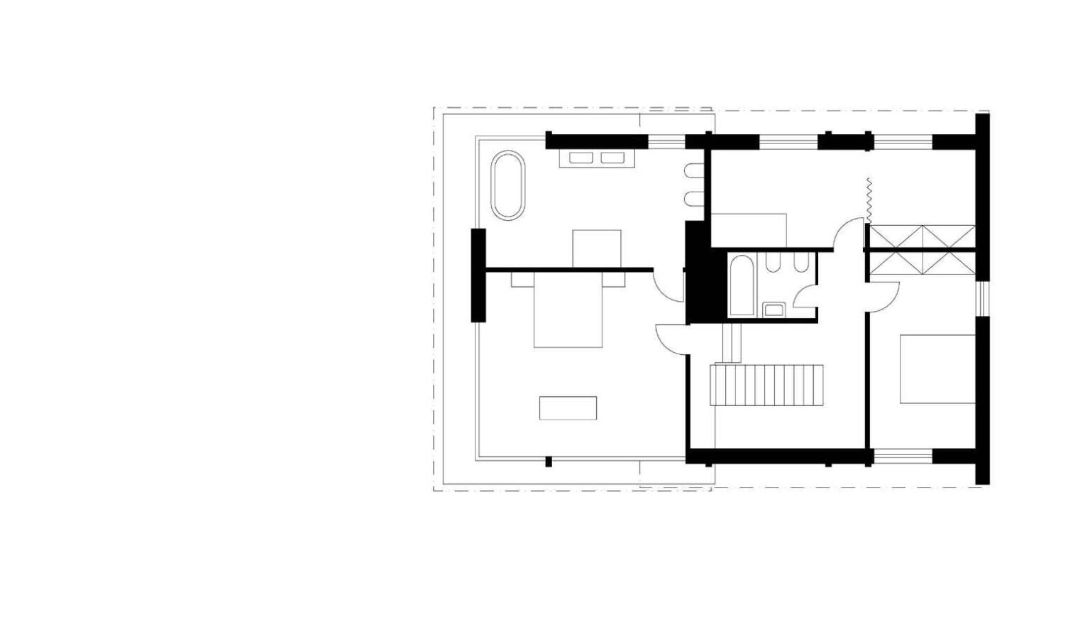
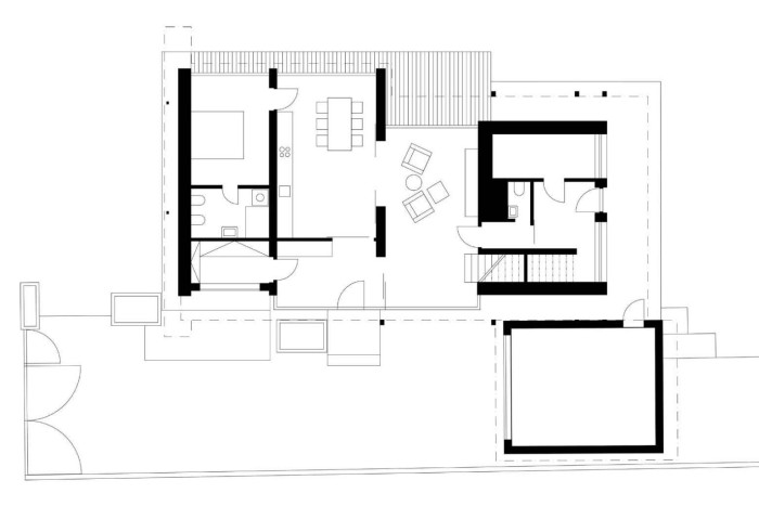
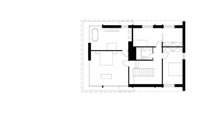
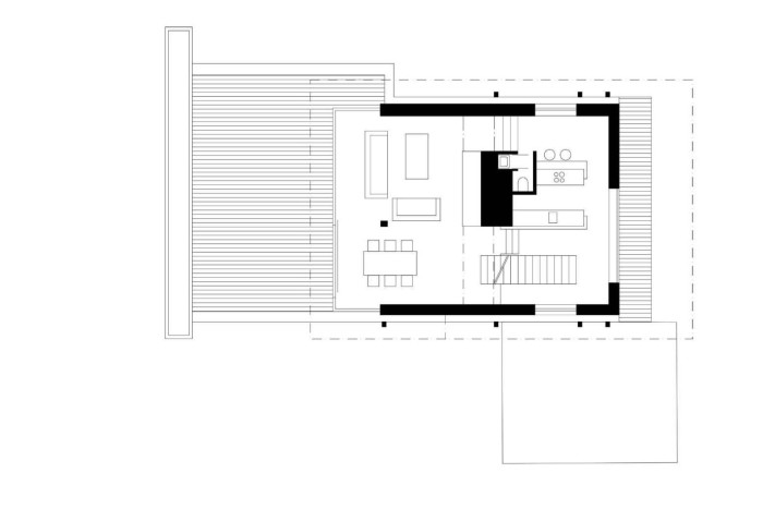
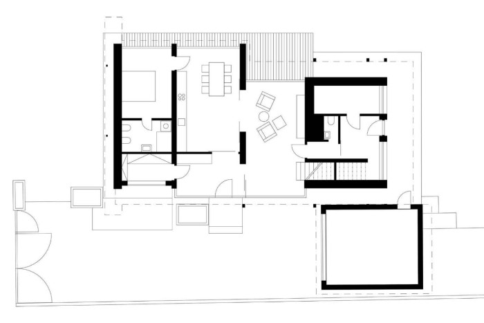
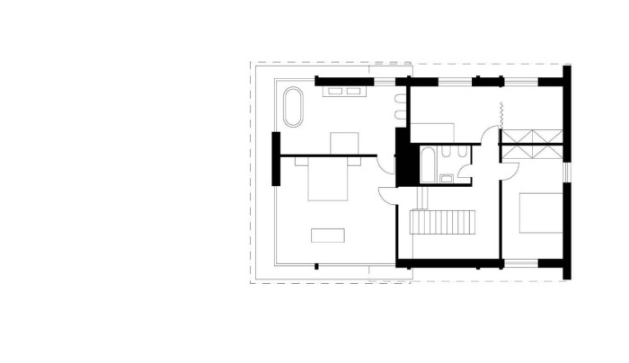
Experimentální rodinná vila v Rožnově pod Radhoštěm, navržená architektem Vladimírem Kalivodou v 60. letech, představuje osobitý příklad modernistického přístupu obohaceného o regionální výraz. Architekt zde využil ocelový skelet, který umožnil vytvářet členité prostorové celky s posuny v půdoryse i výšce. Tento konstrukční princip společně s uplatněním přírodních materiálů – především dřeva, kamene a bílé omítky – dal domu sochařský charakter.

Rekonstrukce stavby, podle architekta Kamila Mrvy, reagovala na potřebu současného komfortu, ale zároveň pracovala s respektem k původnímu architektonickému řešení. Původní uspořádání společenských a klidových zón bylo zachováno, v interiéru byly repasovány hodnotné povrchy a řada vestavěných prvků našla své nové využití. Oba krby prošly renovací a díky instalaci topných vložek jsou opět plně funkční součástí domu. Drobné úpravy, například změna podlahových krytin či rozšíření kontaktu s exteriérem prostřednictvím nové terasy, pomohly přiblížit dům současným uživatelům bez narušení jeho identity.

Foto: Původní krby byly renovované.

Úpravy vnějšího pláště objektu sledovaly především zlepšení tepelně technických parametrů a prodloužení životnosti stavby. Původní dřevěná okna nahradily hliníkové rámy s lepšími vlastnostmi, avšak s ohledem na zachování původních proporcí otvorů. Zateplení bylo navrženo s důrazem na minimální změnu vzhledu obvodových konstrukcí, přičemž citlivé barevné a materiálové řešení navázalo na výraz původní realizace. Díky těmto krokům se podařilo vrátit objektu jeho plnohodnotnou funkci při zachování architektonické hodnoty.

EB - stavební společnost zajistila úpravu a zateplení fasády, okenních výplní, renovaci vnitřních krbů s osazením vložek.

  • Adresa: Slezská ulice, Rožnov pod Radhoštěm, Moravskoslezský kraj, Česká republika
  • Země: Česká republika
  • Realizace: 2011
  • Projekt: 2011
  • Projekt: 2011
  • Realizace: 2011
  • Fotograf: Studio Toast
  • Dodavatel: EB - stavební společnost

Mohlo by vás zajímat

Generální partner
Hlavní partneři