Petr Stolín Architekt - Mateřská škola ve Vratislavicích nad Nisou

Realizace nové Mateřské školy - Nová Ruda ve Vratislavicích nad Nisou řeší potřeby městského obvodu v návaznosti na rostoucí populaci a na uvolnění prostor v základní škole. Vybraný pozemek je ve vlastnictví města a byl vytipován jako nejvhodnější vzhledem k plánované nové zástavbě bytových domů v blízkém okolí. Samotné místo je doposud nezastavěné, větší část územní plán určuje jako veřejnou zeleň.

V těsném sousedství se nachází historická budova a pozemek umělecké střední školy a několik torzovitě rozmístěných rodinných domů, které v dalším kontextu tvoří zástavbu až venkovského stylu. Charakter území určeného územním plánem není zcela nejvhodnější, jelikož se jedná o severně orientovaný svah zastíněný vysokou budovou školy, přes pozemek vede několik tras infrastruktury, minimálně zpevněná komunikace a nároky na parkování zúžily profil prostoru pro výstavbu vlastní školky.

Veškeré tyto limity a další faktory, které představují české normy pro výstavbu předškolních zařízení, stejně jako nové trendy v přístupu k dětem a kvalitě prostředí v němž jsou vychovávány, vykrystalizovaly v předkládaný návrh nové budovy mateřské školky. Chceme děti naučit vnímat architekturu prostoru v rozličných formách, které jsme se snažili zapsat do celé kompozice. Již samotný nástup do domu je nechává si dům po cestě dovnitř postupně prohlédnout a zorientovat se. Celý den tak mohou společně objevovat jeho zákoutí a možnosti pohybu v něm.

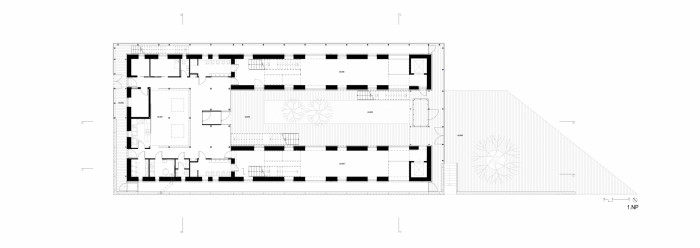
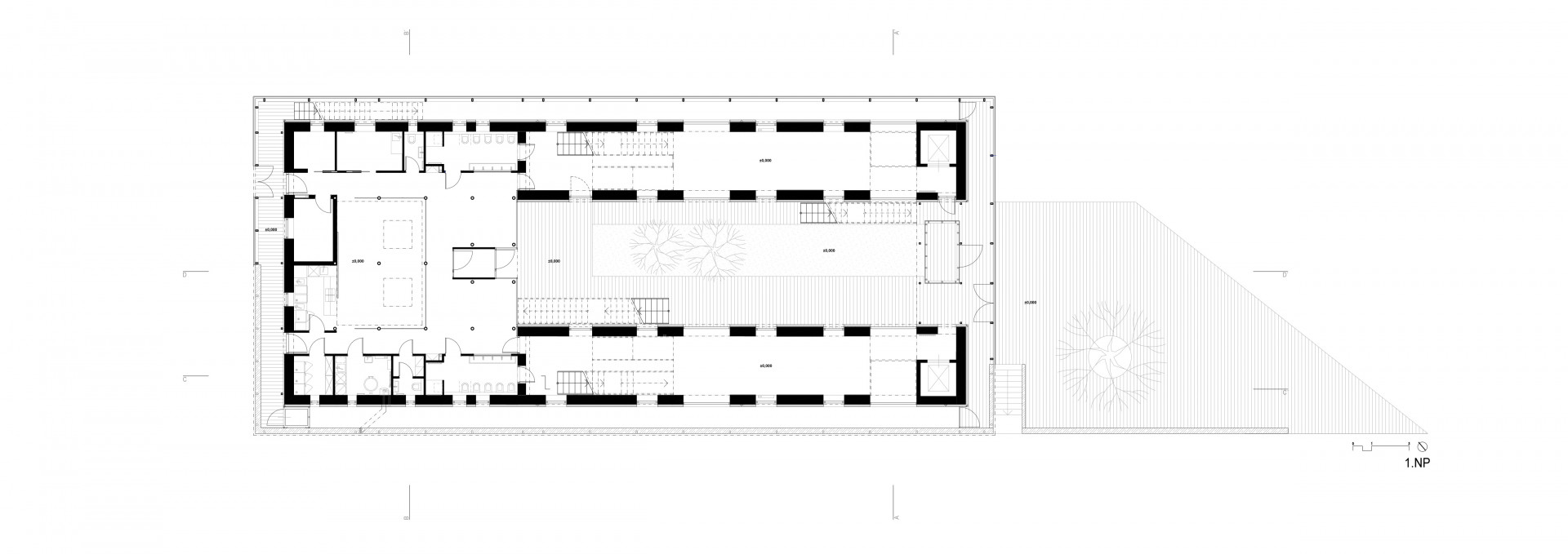
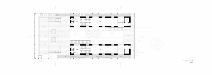
Jejich třída není obyčejný obdélníhový prostor. Je to struktura, která je velkými okny propojena vizuálně s exteriérem a v interiéru se střídají různě vysoká patra, která jsou opět propojena otvory ve stropech. Aktivity dětí tak mohou stoupat směrem ke slunci - ve spodní části se nachází lůžková část, nejklidnější místo, a o patro výše je herna. I zde mají děti možnost vyjít ven do malého respiria a bočními ochozy dál probíhat za fasádou domu, kde se mohou dostat až na hlavní venkovní herní terasu nad jídelnou. Celý dům je vlastně jedna velká prolézačka.

Nejvyšší patro má největší světlou výšku a má sloužit jako učebna. Ze stropu je ještě přisvětlena světlíky stejně jako prostory jídelny v přízemí. Kapacity objektu - jsou navrženy dvě oddělení po 25 dětech, kabinet pro 4 vychovatele, kancelář pro vedoucího školky a hospodáře, jídelna pro 30 dětí a 4 dospělé. Optimálně jsou ke všemu navrženy i místnosti zázemí provozu - přípravna jídla, šatny zaměstnanců, úklidová místnost, technická místnost a skladoví prostory. Objekt díky svým venkovním terasovým plochám umožňuje hru venku na slunci. Tyto prostory jsou také vybaveny venkovními sklady na hračky a náčiní. Součástí návrhu je i řešení předprostoru formou nástupní terasy se stromem, která je veřejným prostorem. Navazuje na nové parkovací stání a chodník kopírující podélnou osu budovy. Zbylý pozemek by měl být komponován jako parková zeleň doplněná o drobné herní prvky pro potřeby školky, která tyto venkovní plochy bude využívat. Materiály i povrchy jsou laděny do světlých tónů v kombinaci s přírodním dřevem na terasách a sklem v průhledech.

Objekt školky je navržen jako zděná stavba s fasádou ze sklolaminátu na dřevěném roštu. Celý objekt objímá ocelová konstrukce s pochozími rošty a vynáší druhou vrstvu trapézového sklolaminátu. Tento koncept tranparentnosti celý objem ozvláštňuje a vytváří pocit bezpečí ve vlastním světě. Vnější fasáda domu jako jemný závoj objímá všechny prostory vnitřního světa školky. Dům tudíž nepotřebuje plot. Vnější plášť nechává tušit dvě štíhlé hmoty obou oddělení, které jsou v zadní části propojeny společnými prostory. Tyto základní objemy vytvářejí mezi sebou příjemný a chráněný prostor vnitřního atria.

  • Ateliér: PETR STOLÍN ARCHITEKT
  • Autoři: Petr Stolín, Alena Mičeková
  • Země: Česká republika
  • Stavebník: Městský obvod Liberec - Vratislavice nad Nisou
  • Město: Liberec
  • Ulice, číslo: Donská 1835
  • PSČ: 463 11
  • Suma: 40 000 000.00
  • Měna: CZK
  • Datum projektu: 2015
  • Realizace: 2018
  • Užitná plocha: 425.00m<sup>2</sup>
  • Zastavěná plocha: 915.00m<sup>2</sup>
Generální partner
Hlavní partneři