Porodní dům Letná
Pozemek pro porodní dům se nachází na nejzazším východním okraji Letenských sadů, mezi Nábřežím kapitána Jaroše a Skaleckou ulicí, v zahradě polikliniky. Místo je specifické svou polohou na hranici města a parku. Tato hranice je i jako každý jiný ekoton v přírodě daleko bohatší na formy, než její okolí. Setkává se tu hradba kompaktního města se solitérními budovami a městským parkem a místo samotné je malebnou zahradou, která je skryta v mírné prohlubni, přicházející člověk do ní shlíží svrchu přes zeleň. Člověk musí zahradu chvíli obcházet, než se dostane dovnitř a začne sestupovat k průčelí polikliniky.
Porodní dům je v České republice novým typologickým druhem, pro který zatím není vytvořený legislativní rámec. Jeho dlouhodobé fungování je ale známé ze západních zemí. U nás se delší dobu ozývají hlasy po jeho zavedení, především od žen hledajících bezpečnou alternativu k rození v nemocničních zařízeních. Důvodem je jejich dlouhodobá kritika. Porodní dům je kompromisem mezi nemocnicí a domovem: svým vzezřením a atmosférou maximální měrou připomíná domácí prostředí a zároveň zajišťuje odbornou péči profesionálních zdravotníků. Porodní dům je zařízením „komorního“ typu: když vcházíte do porodního domu, vůbec nemáte pocit, že vcházíte do zdravotnického zařízení.
Autorská zpráva projektu Barbory Kopřivové
Porodní dům se nachází mezi pevnou urbánní strukturou stávajícího bloku a městským parkem. Pozemek disponuje nejnižším i nejvyšším bodem bloku a hmotově je ohraničen zdola domem Sdruženého ambulantního zařízení, ze shora domem s věžičkou a bokem zákl. školy Fr. Plamínkové.
Urbánní blok je do Letenských sadů a částečně do ul. Skalecká otevřený. Prostor vnitrobloku je exponován, jak tomu v centrálně ložené pražské zástavbě není zvykem. Obě koncové stavby mají fasády s okny do všech stran. Dům, který navrhuji, je tedy ve své podstatě domem solitérním. Mou snahou je jej co nejlépe zasadit do kontextu současného bloku a vytvořit tak k němu osobitý kontrapunkt s jasným oddělením vnější-veřejné, vnitřní-poloveřejné.
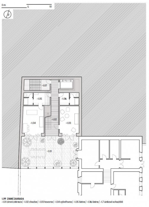
Dům tvoří vrcholný moment Skalecké ulice. Aby byl z ulice Fr. Křížka zachován kontext, padá výška domu ve dvou terasách až k nároží, kde se láme podél svahu dolů k nábřeží. Poporodní část funguje samostatně, nicméně s možností průchodu v přízemí do veřejné části. Jsou zde 4 pokoje, které odpovídají předpokládanému zájmu o tento servis s ohledem na očekávaných 1,6 porodů denně. Ve vrchním patře je společná místnost s terasou pro ubytované a jejich hosty.
Spodní patro veřejné části, přístupné ze dvora slouží pro potřebnou administrativu, porady s porodní asistentkou, laktační poradkyní, aromaterapeutičkou apod. V horním patře je víceúčelový sál pro pořádání porodní gymnastiky, cvičení s dětmi, přednášek, školení pro asistentky aj. Díky terase je možné tyto aktivity přesunout také ven. Směrem do nitra domu se dostáváme do dvoupatrové části porodní. Porodní pokoje jsou zařízené tak, aby umožňovaly rodičce prožít porod dle jejích představ. Tímto je rozuměna volnost pohybu (nejen v rámci pokoje, ale i domu, dvora, parku), možnost měnit polohy, využívat úlevové pomůcky, porod ve vaně, změna intenzity a tónu osvětlení, stanovení míry intimity.
Autorská zpráva projektu Prokopa Matěje
Narození stejně jako smrt tvoří mezník lidského života v přesně daném čase a místě. Jak vypadá místo takového narození? Místo kam člověk zavítá pravděpodobně jen párkrát za život. Porodní dům vyvstává jako alternativa k institucionální péči. Já jsem se snažil hledat alternativu k romantizujícímu předobrazu porodního domu. Dům s vlastním vnitřním světem, který ženu chrání před okolím.
Nacházíme se na parcele vymezenou Letenskými sady a Skaleckou ulicí. Na první pohled nedokončený letenský blok se jeví jako příhodné místo pro zásah. Roh má ale spíše dvojznačný charakter, polohou náleží bloku, ale vzezřením Letenským sadům. Právě nedokončenost bloku nám umožňuje vhlédnout do rozmanité struktury dvorků a zahrad. Návštěvník musí prvně projít brankou. V podobném duchu jsem se tedy snažil navázat a jasně vymezuji, co je přístupné a co není. Odkrojením dostatečně velkého oblouku ze zdi získávám rychlý přístup k domu, tři dočasná parkovací místa přímo na pozemku a v neposlední řadě dům zanechává rozpoznatelnou půdorysnou stopu.
Návrh je založen na dvou protichůdných stanoviscích. Na rozporu mezi vnitřkem a vnějškem. Tak jako neprostupná zeď obepíná skrytou zahradu, tvrdá drsná schránka ukrývá bezpečné místo pro nejcitlivější z životních mezníků člověka. Terénní rozdíl jednoho a půl patra na pozemku vybízel k vytvoření dvou vstupů, zahradní vstup a obloukový vstup o patro výš. V pravé části pozemku vstupuji “skrytou” brankou a dostávám se o patro níž do suterénu. Tento vstup slouží ženám připravujícím se na porod. Nalézá se zde vyšetřovna, konzultace a sál. Druhý obloukový vstup v přízemí je pak určen pro příjem rodiček a pro rychlou obsluhu domu. Obě tyto části spojuje jedno kapslovité schodiště, které prostupuje celým domem. Schodiště je záměrně umístěno diagonálně, aby nastavilo dispozici směrem k intimnímu vnitrobloku, výhledům na řeku a zády k veřejným Letenským sadům.
Autorská zpráva projektu Vojtěcha Ružbatského
Práce řeší návrh porodního domu na omezeném pozemku zahrady polikliniky na Letné v Praze. Porodní dům nabízí žádanou bezpečnou alternativu k rození v nemocnicích. Dům navržený na pomezí města a parku přirozeně sestupuje po svahu. Blízkost vůči budově polikliniky vytváří napětí, obě budovy společně vymezují zahradu a dodávají ji intimnější měřítko. Zahradní fasáda polikliniky zůstává volná vůči ulici, místo tak zůstává jasné a přehledné. Svah je v domě zpřítomněn přímým schodištěm následujícím jeho tvar. Vnitřní chodba je prosvětlena světlíkem, který stavbu kompozičně pointuje. K nábřežní ulici se dům vztahuje klasickou uliční fasádou, do parku nabývá charakteru pavilonu.
Hodnocení poroty:
Porota se rozhodla udělit 2. sloučenou cenu třem diplomním projektům „Porodní dům Letná (resp. U Ledňáčka)“ z ateliéru FA ČVUT Michala Kuzemenského za mimořádně vysokou úroveň zpracování nového typologického tématu na složitou parcelu. Diplomní projekty důsledně pracují s mnohovrstevnatým kontextem svažité parcely na rozhraní blokové zástavby a letenských sadů a řeší komplexně otázky urbanismu, měřítka, architektonického výrazu, dispozice i interiéru. Výsledkem poctivé práce jsou tři originální a krásné domy, plné tajemství a překvapení.
Vítězným diplomovým projektem v rámci 18. ročníku Přehlídky diplomových prací pořádané Českou komorou architektů se stala vize Veroniky Indrové na konverzi strahovského stadionu. Indrová navrhuje zachování konstrukce tribun, do kterých nově zasazuje byty, plochy hřiště pak využívá jako veřejný park. Třetí místo získal student Emila Přikryla z pražské AVU za radikální dostavbu kostela Panny Marie Sněžné v centru Prahy.
- Autoři: Barbora Kopřivová, Prokop Matěj, Vojtěch Ružbatský
- Země: Česká republika
- Město: Prague
Mohlo by vás zajímat