Přízemní dům se slunolamem

Novostavba rodinného domu je situována do malé obce nedaleko Mladé Boleslavi. Pozemek je součástí většího území, které bylo developerem rozčleněno na jednotlivé parcely určené pro výstavbu rodinných domů. Pozemek je rovinatý, mírně se svažující k jihu a na severovýchodní straně sousedí přímo s ulicí.
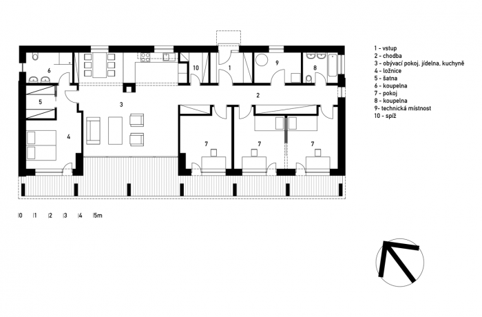
Obdélníkový půdorys jednopodlažního domu je zastřešen převážně pultovou střechou. Terasa probíhající po celé jižní fasádě je zastřešena plochou střechou, která plní funkci slunolamu chránící obyvatele terasy účinky počasí. Dostatečná hloubka střechy - slunolamu současně brání přehřívání místností v letním období. Slunolam je podepřen stěnovými prvky, které kromě své konstrukční funkce rozdělují terasu na sekce s výstupy z jednotlivých pokojů.
Základem dispozičního řešení je chodba, která tvoří vnitřní komunikační osu a zároveň rozděluje dům po délce na dvě funkční části. Na jižní osluněné straně domu, jsou podél chodby situovány obytné místnosti, které všechny mají přímý výstup přes terasu na zahradu. Ze severní strany se k chodbě přimykají provozní místnosti domu včetně vstupu se zádveřím a kuchyně.
Tvar zastřešení, kombinující pultovou a plochou střechu, umožňuje přirozeně osvětlit chodbu uvnitř dispozice okenními otvory umístěnými v nejvyšší části stěny na severní straně. Chodba vedoucí středem domu tak zůstává světlá jako ostatní místnosti se standardně umístěnými okny.
Stavba je konstrukčně řešena jako dřevostavba v systému "two by four". Hlavním zdrojem pro vytápění a ohřev TV je plynový kondenzační kotel. Vyhřívání jednotlivých místností zajišťuje podlahové topení. V domě bylo realizováno řízené větrání s rekuperací.
Prvotní návrh domu byl investory poměrně rychle odsouhlasen. Nejvýznamnější změna projektu proběhla až z popudu stavebního úřadu. Jako porušení jediného závazného regulativu musela být plochá střecha změněna na pultovou předepsaného sklonu. Dům byl ještě ve fázi studie publikován v mainstreamovém časopise o bydlení a na podkladě otištěných výkresů a vizualizací byl postaven v malé vesnici v západních Čechách dle původního návrhu s plochou střechou.
- Autoři: Vladimír Balda, Lucie Baldová
- Ateliér: Vladimír Balda architekt
- Země: Česká republika
- Generální dodavatel: PENATUS s. r. o.
- Město: Bradlec
- Ulice, číslo: K Oboře 391
- PSČ: 293 06
- Datum projektu: 2010
- Realizace: 2012
- Užitná plocha: 125.00m2
- Zastavěná plocha: 207.00m2
- Poznámka: Foto © Aleš Jungmann, Robert Žákovič
Související projekty
Související architekti
Související ateliéry a firmy
Mohlo by vás zajímat






























