I

IGLOO ARCHITEKTI - Rodinný dům Nové Město na Moravě

Rodinný dům v Novém Městě na Moravě od IGLOO ARCHITEKTI Foto: Filip Šlapal

Zadáním byl návrh přístavby rodinného domu ve vnitřním dvoře historického měšťanského domu v centru Nového Města na Moravě s využitím pro občasné bydlení čtyřčlenné rodiny s předpokladem budoucího využití pro trvalé bydlení. Důležitým aspektem zadání bylo zachovat a posílit ducha místa historické stavby, struktury zástavby města, a současně poskytnout dostupné bydlení v současném moderním standardu. Neméně důležitým požadavkem investora bylo propojení interiéru s venkovním prostorem dvora se zahradou, vytvoření chráněného venkovního pobytového prostoru, který bude orientován do osluněné části zahrady.

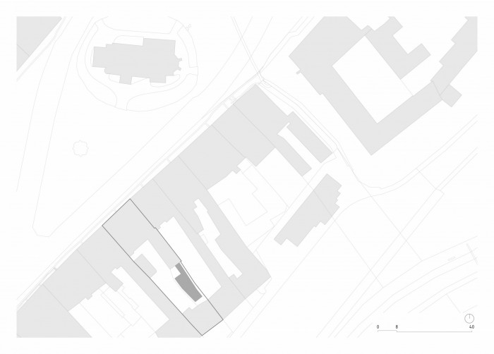
Jedná se o lokalitu s nejlépe dochovanou historickou zástavbou ve městě, s užší a do hloubky protáhlou parcelací. Orientace parcely v podélném směru je SZ–JV. Parcela je směrem k jihovýchodu výrazně svažitá. Směrem do náměstí je situován původní obytný dům se dvěma nadzemními podlažími, mansardovou střechou a se zasklenou pavlačí směrem do vnitřního dvora. Ve dvoře kolmo navazují původní hospodářské objekty umístěné podél vysokých zdí, oddělujících sousední pozemky. Kvalitou místa je zachovalá historická struktura zástavby s původními stavbami a architektonickými detaily. Hodnotné jsou taktéž průhledy na okolní domy, kostelní věž, vrstvení střech a zdí. Velmi příjemný je vnitřní dvůr také z hlediska klidu a soukromí, možností propojení s interiérem stavby, přitom v samém centru města.

Návrh vychází z geometrie pozemku, jeho orientace vůči světovým stranám a také kontextu zástavby vnitřních dvorů v dané lokalitě. Proto byla pro stavbu zvolena poloha podél severovýchodní hraniční zdi v "proluce" mezi stávajícím objektem původních chlévů a stodolou na jihovýchodní straně parcely v místě, které již v minulosti bylo zastavěno hospodářskými objekty. Toto osazení domu je výhodné také z hlediska oslunění obytných místností a teras. Stavba respektuje stávající trasy pohybu ve dvorové části, průjezdy a vstupy do stávajících objektů, resp. do dvora.

Hlavním architektonickým konceptem návrhu je symbióza a pocitové splynutí nové přístavby se stávající strukturou staveb, avšak současným, moderním přístupem a architektonickými detaily, nikoliv kopírováním historických forem.

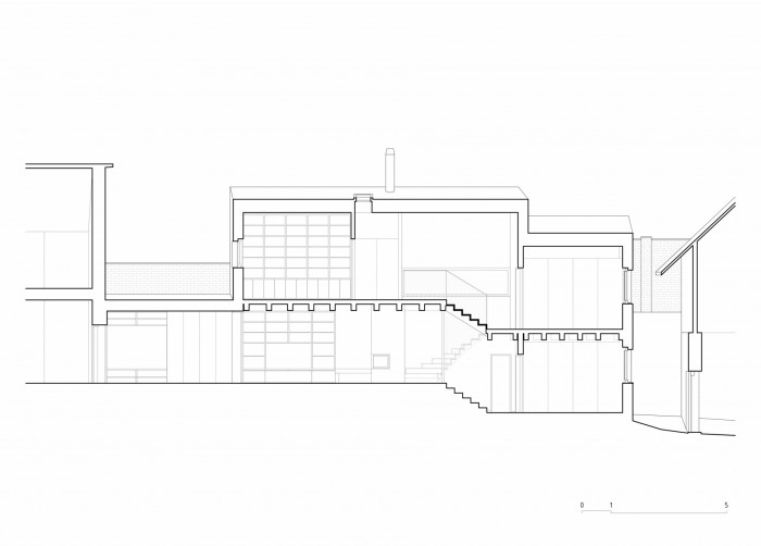
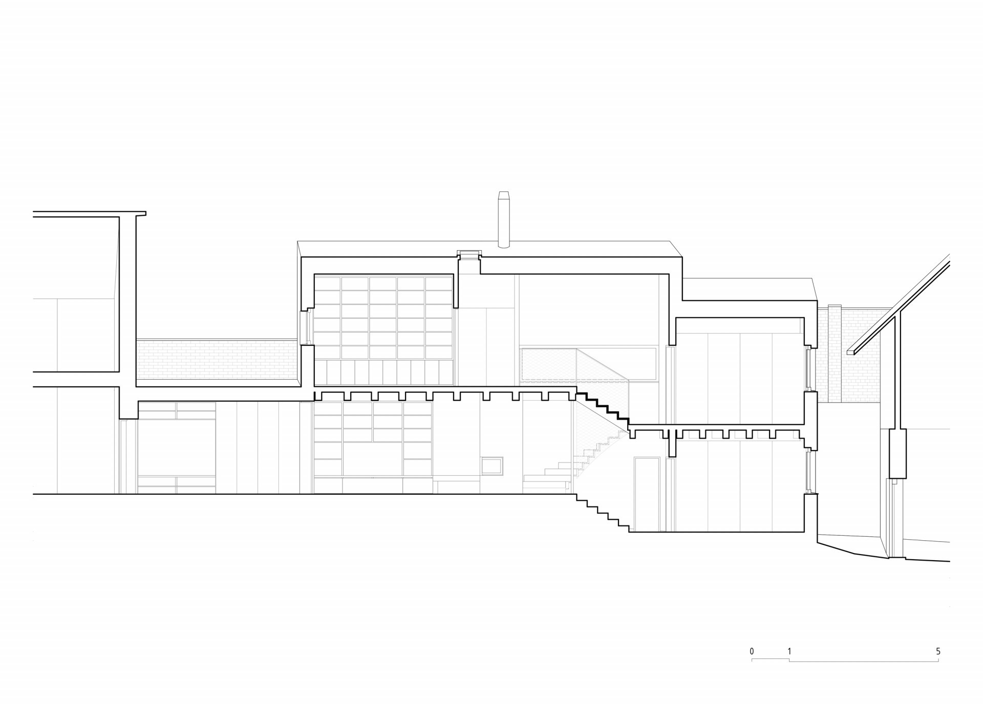
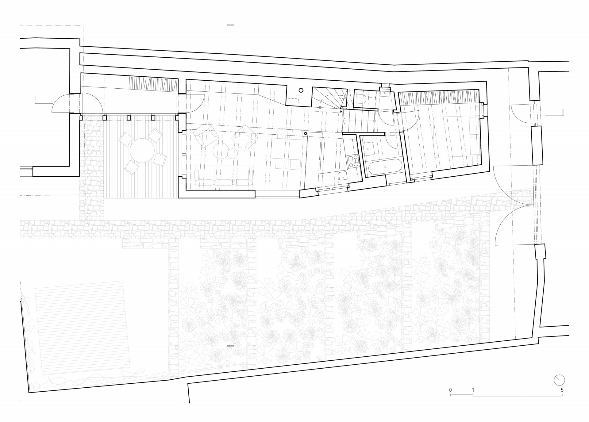
Základní materiálové řešení návrhu vychází z tradičních a místně používaných materiálů – dřevo, ocel, hlazená, režně bílá omítka, kámen, sklo. Přístavba je zastřešena pultovou střechou, spádovanou do dvora a je omítnuta bílou hlazenou omítkou. Vzhledem k výraznějšímu spádování terénu ve dvoře je přístavba rozdělena do několika výškových úrovní, což umožňuje zmenšovat a členit hmotu domu, která se tak přirozeně přizpůsobuje morfologii terénu, a snižuje ve směru spádu. Tímto principem je dům v prostoru vnitřního dvoru vnímán objemově menší. Vstupní část je řešena jako prosklený přízemní "krček" spojující stávající objekt chlévů a novou přístavbu.

Okenní otvory jsou s rozvahou navrženy pouze v polohách, kde jsou důležité a opodstatněné. Jedná se o kompozici především čtvercových oken s různou pozicí v ostění tak, aby různorodost podpořila dojem vrstevnatosti a tvarové i konstrukční rozmanitosti místních dvorových staveb a stavbiček. Prosklené plochy v interiéru působí jako živé obrazy, měnící se dle ročních období a světelných podmínek. Současně přinášejí do interiéru důležitý světelný standard a hodnotné průhledy do exteriéru.

Dům je navržen jako zděná stěnová konstrukce s nosným obvodovým zdivem, založená na základových pasech. Zdivo je provedeno z vápenopískových tvárnic s vnějším zateplením. Stropy nad přízemím jsou dřevěné trámové se záklopem, doplněné pomocnou ocelovou konstrukcí. Konstrukce střechy je dřevěná. Střešní krytina je falcovaný titanzinkový plech.

  • Autoři: Jan Pačka, Igor Šimon
  • Ateliér: IGLOO ARCHITEKTI
  • Spolupráce: Radek Fila
  • Země: Česká republika
  • Město: Nové Město na Moravě
  • Projekt: 2016-17
  • Realizace: 2021
  • Užitná plocha: 122 m²
  • Zastavěná plocha: 80 m²
  • Hrubá podlahová plocha: 149 m²
  • Fotograf: Filip Šlapal

Související ateliéry a firmy

Generální partner
Hlavní partneři