Q

QARTA Architektura - Obnova Domu Radost

Vizualizace Foto: monolot

Objekt původního paláce Všeobecného penzijního ústavu patří k nejvýznamnějším stavbám českého meziválečného funkcionalismu. Současný návrh obnovy proto maximálně zachovává a novými vrstvami podporuje kvality stavby.

Studio QARTA architektura důsledně řeší vzájemně se podmiňující funkční a formální podobu rekonverze tak, aby zachování formálního hlediska neodporovalo samotnému principu funkcionalistické stavby. Architektonický návrh obnovy, vedený pokorou a respektem k původnímu dílu, vznikl na základě mezioborové spolupráce a je výsledkem intenzivních jednání s památkovým ústavem.

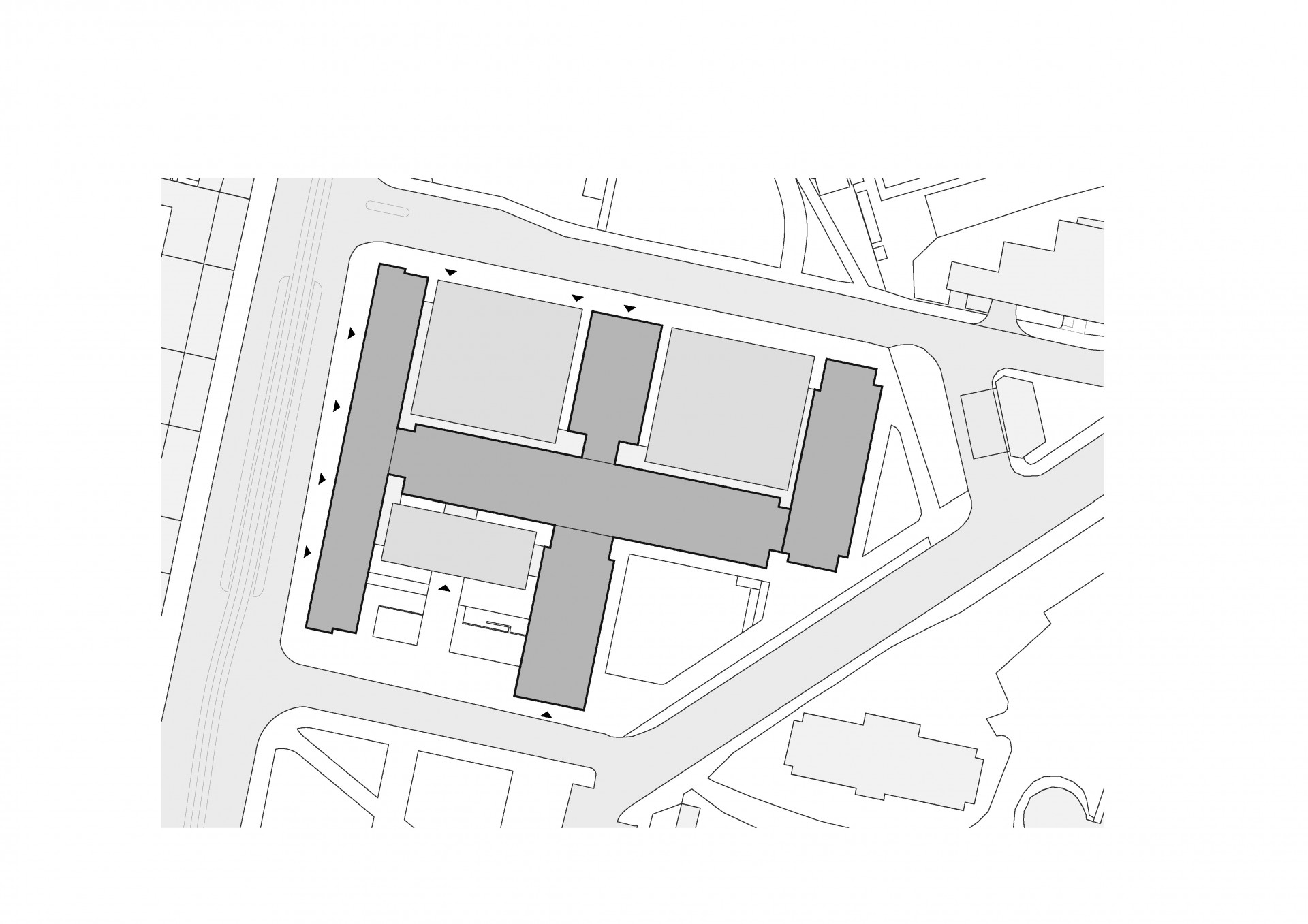
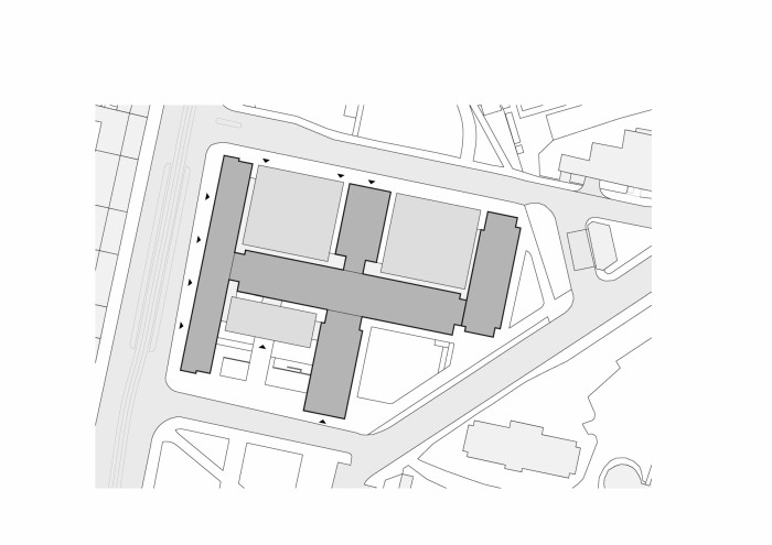
Původní palác Všeobecného penzijního ústavu byl dokončen roku 1934 podle návrhu architektů Josefa Havlíčka a Karla Honzíka. Významným avantgardním řešením jejich návrhu bylo křížové půdorysné schéma, inspirované dílem Le Corbusiera, které v principech modernismu vyjímalo stavbu jako solitérní objekt z okolní blokové zástavby.

Havlíček s Honzíkem rovněž podnikli studijní cesty do Německa a Nizozemí za realizacemi obdobné typologie. Po jejich stopách se vydali také autoři návrhu obnovy David Wittassek a Jiří Řezák a doplnili studium historických souvislostí o inspiraci konvertovanými budovami a jejich městotvornými návaznostmi.

Záměr

Vizí autorů a investora je vytvořit unikátní místo v celoevropském kontextu: zachránit chátrající architektonickou památku, podpořit význam lokality a naplnit budovu unikátní typologií užitného konceptu s komplexní nabídkou pro její obyvatele i širokou veřejnost.

Návrh obnovy domu Radost vychází z širšího urbanistického konceptu, který jednak ukotvuje lokální centrum dolního Žižkova, jednak sleduje napojení tohoto území na centrum metropole a vnímá jeho strategickou pozici v blízkosti hlavního nádraží.

Základním východiskem revitalizace objektu je koncept propojení domu s okolím, jehož záměrem je mimo jiné vytvoření funkčního veřejného prostoru, kterého se (nejen) v této lokalitě nedostává a pro který bude budova Radosti multifunkčním zázemím.

Z hlediska dnešních nároků na konektivitu a naprosto zásadní potřebu kultivace a aktivace veřejného prostoru zůstává objekt neprostupným blokem. Solitérní budova křížového půdorysu se tak vůči okolnímu prostoru otevírá pouze svou formální dispozicí.

Návrh je rovněž veden pochopitelnými potřebami ekonomické a ekologické udržitelnosti objektu. Současný stav domu je z hlediska energetického i stavebně-technického dále neudržitelný. Technologická koncepce, podložená energetickými studiemi, zohledňuje v dlouhodobé perspektivě požadavky na ekologii i funkčnost provozu. Jednoznačnou výhodou je fakt, že dům přísluší jednomu investorovi s finálním pronájmem daných provozů.

Zachování stávajících vrstev a podoby domu

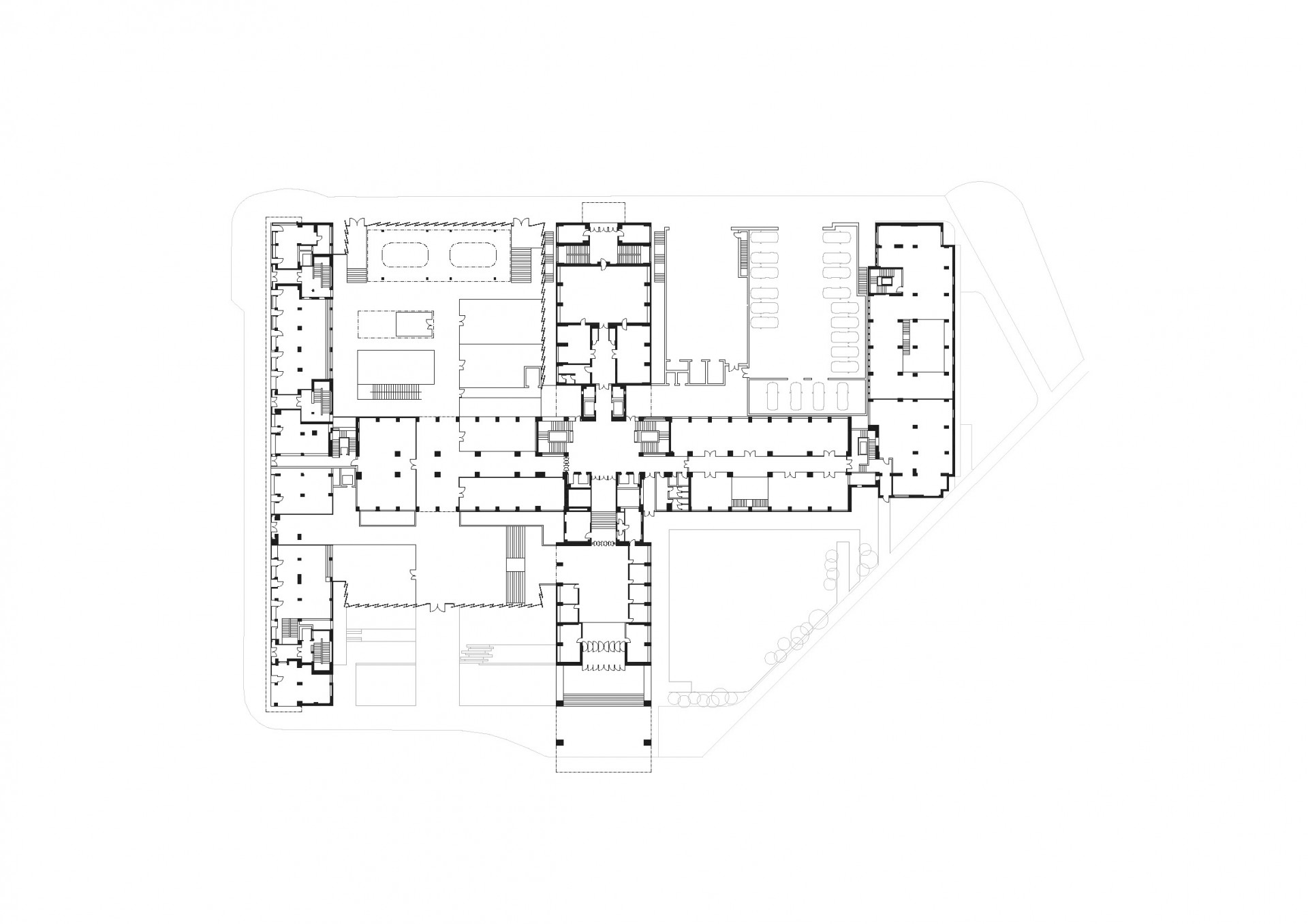
V prvé řadě zůstává zachována hlavní figura domu daná jak půdorysným řešením, tak rozvržením hmot. Návrh zachovává a podporuje původní osu kříže v parteru i v nadzemních částech. V patrech je respektován princip vertikální a horizontální komunikace, v části parteru je aplikován volný komunikační princip. Otevřenou dispozici dvorů interpretujeme z hlediska formy i funkce způsobem, který ctí formální, funkční i filozofickou podstatu funkcionalismu.

Rekonstrukce a celková revitalizace respektuje a reflektuje významnou památku moderní architektury také v implementaci nových vrstev. Nové vrstvy se od stávajících vrstev formálně odlišují a budovu aktualizují pro potřeby dneška a dalších mnoha desetiletí.

Návrh rekonverze pracuje s prostorovou filozofií funkcionalismu a v jeho rámci promýšlí především novou komunikační funkci. Pohyb v prostoru budovy byl určen její převažující monotematickou funkcí, kterou byla administrativa penzijního ústavu, velmi jasně určující strukturu pohybu v prostoru. I pokud by byla administrativní funkce zachována, není z dnešního hlediska možné udržovat historicky dané trajektorie pohybu v budově, neboť neodpovídají současným potřebám.

Nové vrstvy doplňující křídla z ulice Seifertovy a od Rajské zahrady rozvíjí původní variantní návrhy architektů Havlíčka a Honzíka a hlavní figuru domu nenarušují (z hlediska výšky bočních křídel je zajímavé srovnání s řešením jedné ze zahraničních inspirací Havlíčka s Honzíkem – Kathreiner-Hochhaus od Bruno Paula v Berlíně, kde jsou boční křídla se svými šesti patry zarovnány na okapovou výšku okolních budov). Realizovanou variantu z 30. let 20. století je možné vnímat i jako kompromisní řešení reagující mimo jiné na požadavky Státní regulační komise. Po jednání s památkáři bylo v současném návrhu upuštěno od střešních pergol. Současnou debatu nad ideálními proporcemi stavby je vhodné nahlížet také z pozice funkce.

Další naprosto signifikantní znak, tvořící výraz budovy, je její plášť. Keramický obklad fasády (výrobce Rako) je ovšem za hranicí životnosti. Po zateplení budovy bude aplikována replika za dodržení přesného kladení, koncovek i spárování. Současná okna jsou nepovedenou replikou a s památkáři se bude hledat adekvátní náhrada.

Z ulice Seifertovy bude kompletně repasována fasáda, parter a z něj vedoucí tři vstupní prostory a jejich navazující schodiště.

Monumentální vstup do budovy z náměstí Winstona Churchilla bude i nadále plnit funkci hlavního vstupu.

V interiérech zůstávají zachovány historicky významné prostory a prvky, jako je kino Přítomnost, reprezentativní prostory zasedacích sálů a jejich předprostor s objekty telefonních budek, dále schodiště, zábradlí a související prvky. Celkově pak zůstávají v intaktní formě v součtu zachována celá dvě patra. Plánována je rovněž expozice prezentující historii objektu. Nepovedené repliky stávajících prvků, jako jsou například vitráže, budou rovněž nahrazeny.

Z hlediska původní náplně budovy zůstávají zachovány byty v křídle u rajské Rajské zahrady. 

Princip volných dvorů / princip volné komunikace

Jelikož je dům nově naplněn multifunkčním programem, založeným především na bydlení, je naprosto zásadní, aby volný pohyb prostorem podněcoval skutečně živé prostředí.

Dvory Všeobecného penzijního ústavu jsou orientovány do otevřeného prostoru, ale zůstávají s odlišnou mírou zastavěnosti/zaplněnosti spíše prostorem uzavřeným vůči okolí zdí. Za účelem otevření a zprůchodnění parteru je půdorys kříže v části dvorů doplněn o nové vrstvy. Jejich vložením dojde k propojení vnitřních a vnějších prostorů budovy směrem k ulici Seifertova (na severu), náměstí Winstona Churchilla (na západě) i náměstí Radost (na východě). Parter budovy se stane živým organismem, nově plně prostupným ze všech hlavních směrů.

Odstoupením, stejně jako dále odražením od stávajícího objektu, je navrhované řešení dvorů jasně koncipováno jako nová vrstva. Transparentní, výtvarně pojatá skleněná fasáda nových objemů nechá vyniknout a působit původní koncept křížového půdorysu domu. Konstrukce a formát jednotlivých skel odráží technologické a materiálové možnosti současnosti.

Do dvora směrem k VŠE je pod úroveň terénu vložen víceúčelový kulturní sál, který má ozeleněnou střechu.

Do dvora k náměstí Winstona Churchilla je vložen ustoupený objem o dvou nadzemních podlažích a prostor se tak otevírá podélným směrem k ulici Seifertova. Tato nová transparentní vrstva s aspekty, jako je lehkost a vzdušnost, je jemným a současně kontrastním projevem současnosti. Koncept nepravidelně umístěných vertikálních skleněných lamel je výtvarný spíše než technicistní. Zachována zůstává větší část dvorní stěny s modrými kachličkami. Lávka, která stěnu prolamuje, umožňuje přímý nástup do domu při zachování původní terénní vlny. 

Zadní dvůr směrem k náměstí Radost propojuje dům s náměstím Winstona Churchilla. Zachován zůstává bývalý sklad chladiva, který je do nové části včleněn. Hmota je koncipována jako transparentní, kontrastní, odražená – vložena s patrnou distancí.

Do zadního dvora směrem k Rajské zahradě je na základě stejných principů umístěn parkovací zakladač, technologie, zásobovací a hospodářský dvůr.

Prostor parteru se otevírá tak, aby nenarušil původní dispozici a řešení bylo v souladu s funkcionalistickou koncepcí stavby jako účelné sestavy otevřených prostorů. Vložené hmoty jsou v půdorysu determinovány jasně a logicky navazují na stávající budovu. Princip propojování či otevírání jednotlivých prostor je v souladu se základní filozofií stavby. Nově vzniklé prostory jsou velkorysé, avšak se subtilnějším a křehčím tvarovým cítěním, než má stávající konstrukce.

Nové typologie a funkce

Novou hlavní náplní dnes převážně administrativní budovy je koncepce nájemního bydlení v režimu co-living. Celkově se může jednat o rozsah až 600 základních ubytovacích jednotek, které je možné slučovat a vytvářet přitom různé prostorové varianty. Jednotky budou vestavěny do stávající konstrukce tak, aby respektovaly hlavní nosný systém budovy, řešení obvodového pláště. Vestavby do buněk jsou řešeny „suchým způsobem“.

Prostorově malometrážní jednotky mají výhodu dostupného individuálního bydlení. Koncept co-living poskytuje obyvatelům domu Radost řadu souvisejících služeb a zázemí, jako např. možnost využívat komunitní obývací prostory, hernu, prádelnu anebo sdílené kanceláře.

Rezidenční prostory, lokalizované v křídle u Rajské zahrady a nově také v centrální části, jsou zcela nezávislé a soběstačné. Současně je možná jejich plná integrace do využívání prostorů a služeb určených širší veřejnosti, jakými jsou pasáž, restaurace, kavárny, bistra, drobné obchůdky, lékárna a uvažuje se o ordinacích lékařů, které fungují v domě již dnes. Pod úrovní vstupního podlaží je navržen velkokapacitní multifunkční kulturní sál, fitness a lázně. Parkování domu Radost je vyřešeno zakladačem, alternativní transfer po městě bude podpořen depem a půjčovnou kol.

Administrativní prostory jsou nově funkcí spíše doplňkovou, lokalizovanou zejména v křídle podél Seifertovy ulice. Nové veřejné funkce dům oživí a umožní mu jeho maximální užitnost.

Závěr

Proměna funkce budovy a doplnění stávajícího půdorysu kříže o novou otevřenou strukturu zpřístupní objekt veřejnosti, a to fyzicky i mentálně. Věříme, že vytvořením komunikačních a společenských vazeb může budova obhájit svou pozici ikony české architektury nejen z perspektivy historie, ale také v životech širší veřejnosti.

Stavebně-historický průzkum

Líbal, M., Líbal, P.: Stavebně historický průzkum objektu „Všeobecného penzijního ústavu“ v k. ú. Praha 3 – Žižkov, Praha 07/2020

Stavebně-technický průzkum

Hrabánek, M.: Diagnostika keramického obkladu fasády budovy RADOST, náměstí Winstona Churchilla, Praha 3 – Žižkov; nemovitá kulturní památka, č. rejstříku ÚSKP 40245/1-1327. Expertní zpráva Kloknerův ústav ČVUT č. 2000 J 176-03, Praha 08/2020

Hrabánek, M.: Stavebně technický průzkum budovy RADOST, náměstí Winstona Churchilla, Praha 3 – Žižkov; nemovitá kulturní památka, č. rejstříku ÚSKP 40245/1-1327. Expertní zpráva Kloknerův ústav ČVUT č. 2000 J 176- 01, J 176-02, Praha 08/2020

Sociodemografická studie

Krokem: Demografická analýza Prahy 3 a okolí domu Radost, Praha, únor 2021

Časová osa projektu

Přelom 2018/19  investor koupil Dům Všeobecného pensijního ústavu (Dům odborových svazů)

2018-20019         stavebně historický průzkum objektu

2019                     architektonický workshop

2020                    studijní cesta do zahraničí

2020                    stavebně technický průzkum

2020                    dokončení architektonické studie

2020                    prezentace projektu na MČP3, IPR a další

2021                     prezentace a projednávání projektu na NPÚ, sboru expertů OPP MHMP

2021                     zpracovávání dokumentace pro územní rozhodnutí

2022                     podání žádosti o územní rozhodnutí

  • Autoři: David Wittassek, Jiří Řezák
  • Ateliér: QARTA architektura
  • Spolupráce: Lukáš Němeček
  • Země: Česká republika
  • Město: Praha 3 - Žižkov
  • Adresa:: Dům Radost, náměstí Winstona Churchilla 2, Praha 3 – Žižkov
  • Investor: rodina Valových
  • Projekt: 2019–2021
  • Celková plocha pozemků investora: 9 287 m²
  • Hrubá podlažní plocha NP: 37 602 m²
  • Hrubá podlažní plocha PP: 12 212 m² (bez plochy technologií a skladů)
  • Původní stávající zastavěná plocha: 4 895 m²
  • Celková zastavěná plocha: 8 852 m²
  • Celkový počet jednotek: až 658 (69 ateliérů, 589 ubytovacích jednotek)
  • Celkový počet parkovacích stání: 223 (208 v zakladačovém systému)
Generální partner
Hlavní partneři