RAW - Bytový dům Domino

Staveniště bytového domu Domino se nachází v Brně Zábrdovicích v zastavěné části na ulici Francouzské. Parcela má obdélníkový půdorys a je orientována směrem k jihu. Poloha domu umožňuje jeho snadnou dostupnost a obsluhu individuální i městskou dopravou.

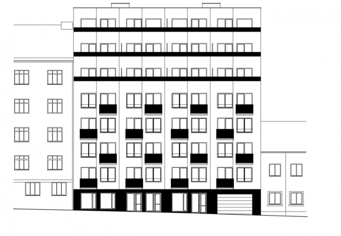
Dům má dvě schodišťová jádra opatřená výtahy. Do ulice jsou umístěny obývací pokoje a terasy bytů, do dvorní části pak ložnice s balkony. V přízemí objektu jsou kromě vstupů umístěny i servisní prostory, průjezd do dvorní části a obchodní jednotky. Dům má jeden vstup z ulice umožňující přístup k oběma schodišťovým jádrům.

Foto: EARCH

Silueta domu ustupuje směrem k horním patrům a vytváří tak průběžné terasy orientované směrem k výhledům na brněnské panorama. Uliční čára objektu propojuje oba sousední stávající objekty formou uskakujících linií. Fasáda domu je bílá s pravidelně umístěnými balkony. Objekt je barevně komponován v černé a bílé barvě s akcentem barvy červené v schodišťových jádrech. Černá barva se objeví na obkladu parteru domu, ve vstupní hale a jako černo bílá šachovnice i na podestách schodišť.

Dům obsahuje 22 bytů, 4 ateliéry a 2 obchodní jednotky. V parteru je umístěn vstup do domu, dvě obchodní jednotky, kočárkárny a průjezd do dvorní části. V patrech jsou umístěny byty a to většinou dva byty na patře. Dispozice bytů jsou přehledné a umožní komfortní užívání budoucími majiteli. Mají centrální halu z nichž jsou přístupné koupelna, komora a wc, do ulice orientovaný obývací pokoj s kuchyňským koutem a do dvora orientovanou ložnici. V podzemním podlaží kromě obchodního prostoru jsou umístěny sklepní kóje a technické zázemí domu.

Foto: EARCH

Foto: EARCH
 

Generální partner
Hlavní partneři