RD nad Rozkoší

Když klient ví, co chce
Pozemek s výhledem na přehradu Rozkoš se nachází na vrcholu mírného kopce. Přáním klienta bylo vytvořit přízemní rodinný dům s dostatkem úložných prostor, zejména pro sportovní vybavení, využít výhledů, které pozemek nabízí, a navrhnout fasády, které dlouhodobě odolají prašnosti okolních polí.
Jednoduché hmoty s velkorysým prosklením
Zásadním rozhodnutím v počátcích návrhu bylo oddělení přístřešku pro dva automobily a skladu sportovního vybavení a zahradní techniky od domu. To umožnilo autorům zvolit pro každý z objektů odpovídající stavební technologii i odlišný design.
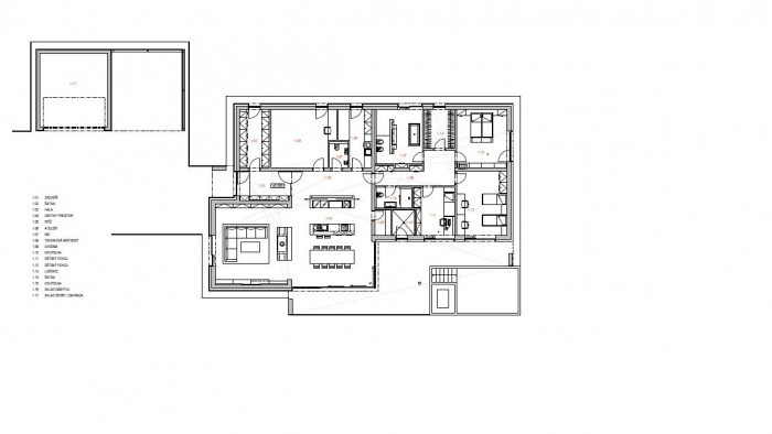
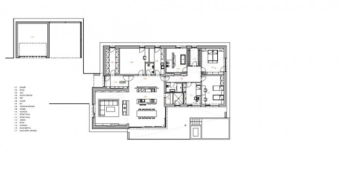
Rodinný dům navrhli autoři jako jednopodlažní nepodsklepený objekt s plochou střechou. Skládá se ze dvou hmot s plochými střechami, které se liší svojí výškou. To dodává půdorysně jednoduchému domu zajímavou dynamiku. Ve zvýšené hmotě je navržena vstupní hala a obytný prostor, v nižší hmotě pak nalezneme zádveří s šatnou, ateliér, technickou místnost, tři ložnice, šatnu a koupelnu rodičů i dětskou koupelnu.
Základ architektonického výrazu domu tvoří členění hmot s výraznou markýzou spolu s uplatněním velkých oken bez parapetu, která nabízí výhled na přehradu Rozkoš. Vzdušný hlavní obytný prostor pak získává další rozměr v podobě nerušeného propojení s navazující zahradou i s dalekými výhledy.
Fasády jsou sjednoceny obkladem z lícových pásků v elegantních odstínech pískové a šedé. Linie markýzy a ostění otvorů jsou zvýrazněny oplechováním v šedém odstínu.
Objekt skladu a krytého stání je jako protiváha k hlavnímu objektu navržen v dřevěném obkladu. Ten se coby propojující prvek objevuje v podobě podbití markýzy hlavní budovy.
Jemná přírodní barevnost přechází z exteriéru i do interiéru, kde je dominantní barvou bílá, doplněná béžovými a šedavými odstíny. Opět vnímáme kvalitu přírodních materiálů a čistou jednoduchost linií.
Podrobný 3D model jako standardní pracovní nástroj
V ateliéru ROSA – ARCHITEKT běžně zpracovávají architektonické studie formou modelů. Nejinak tomu bylo i v případě tohoto rodinného domu, kdy jako základ pro prezentaci projektu i následné projektové podklady posloužil 3D model vytvořený v programu Allplan.
„Modely slouží k průběžné prezentaci vzhledu domu formou jednoduchých renderů, z modelu se pak dále generují řezy a pohledy včetně stínů. Model také používáme jako podklad pro finální vizualizace zpracovávané již v jiném softwaru. Rovněž stavební půdorysy vyšších stupňů dokumentace vznikají na podkladě modelu přímo v Allplanu. Dále standardně využíváme automatického generování popisů otvorů a kótování. Řezy jsou pak již detailně zpracovány formou 2D výkresů. V případech, kdy je požadována sofistikovanější kniha místností, využíváme modul místnosti pro zadání povrchových úprav,“ popisuje práci s 3D modelem Michal Rosa.
- Autoři: Michal Rosa, Martina Rosová
- Ateliér: ROSA - ARCHITEKT
- Země: Česká republika
- Datum projektu: 2013
- Realizace: 2015
- Užitná plocha: 272.00m2
- Zastavěná plocha: 318.00m2
- Plocha pozemku: 6 346.00m2
- Poznámka: Foto © Petr Košťál
Související projekty
Související architekti
Související ateliéry a firmy
Mohlo by vás zajímat

























