ROSA – ARCHITEKT - Klubovna oddílu běžeckého lyžování Trutnov

Klubovna pro oddíl běžeckého lyžování se nachází na mýtině na vrcholu kopce Chmelnice v nadmořské výšce 506,700 m n. m, kde se kříží několik běžeckých tratí. V bezprostřední blízkosti se nachází i venkovní posilovna. Nahrazuje dva menší objekty, které již nedostačovaly svému účelu.
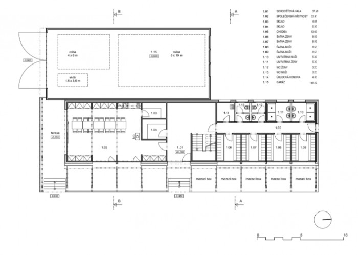
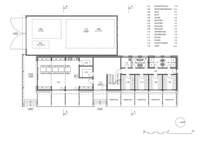
Klubovna je navržena jako celodřevěný dvoupodlažní objekt s dvojicí pultových střech. Objekt je navržen souběžně se západní hranicí pozemku (hranicí lesa) a otvírá se k východu – směrem k běžeckému oválu a otevřené sportovní ploše, na které se umísťuje start a cíl závodů. Východní fasáda ustupuje za krytou venkovní plochu, která částečně slouží jako mazací boxy a částečně jako divácká terasa.
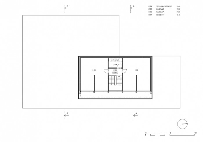
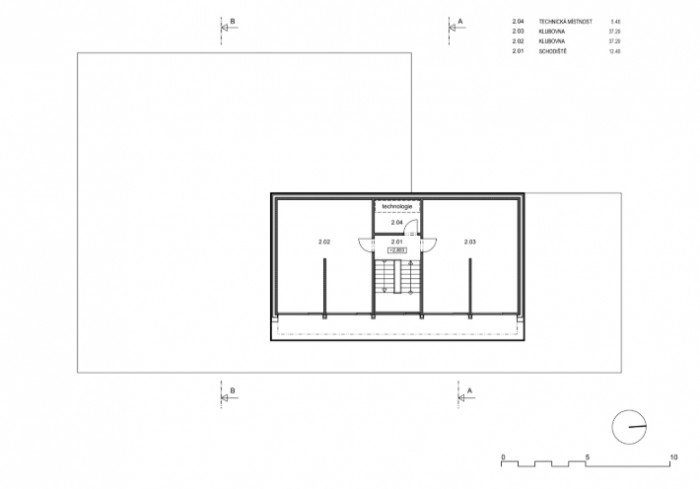
V přízemí objektu jsou navrženy šatny, umývárny a společenská místnost. Ve druhém podlaží jsou umístěny dvě klubovny. Součástí objektu je i garáž pro dvě rolby a skútr krytá hlavní hmotou.
120 mm silné CLT panely jsou v interiéru opatřeny pouze olejovým nátěrem a definují tak charakter jednotlivých místností. Na vnější straně jsou panely zatepleny 150 mm minerální izolace a obloženy modřínovým dřevem. Protože objekt bude využíván celoročně, je vybaven tepelným čerpadlem a krbovými kamny.
Použít pro stavbu umístěnou uprostřed lesů na vrcholu Chmelnice dřevěnou konstrukci bylo naprosto přirozené. Navíc vlastnosti dřevěné stavby jsou v souladu s se způsobem užívání objektu. Protože jsme chtěli, aby konstrukční dřevo bylo přiznané, padla volba na CLT panely, které mají při malé tloušťce velmi dobrou únosnost a lze je použít jak na stěnové i stropní konstrukce.
- Autoři: Michal Rosa
- Ateliér: ROSA - ARCHITEKT
- Spolupráce: Petr Košťál, Hynek Stiehl, Vít Zinga, Marie Dvořáková, Andrea Junková, Jan Pěnčík, Pavel Rus
- Země: Česká republika
- Město: Trutnov
- Datum projektu: 2014
- Realizace: 2019
- Užitná plocha: 420.00m2
- Zastavěná plocha: 499.00m2
Související projekty
Související architekti
Související ateliéry a firmy
Mohlo by vás zajímat



















