ROSA - ARCHITEKT - Rodinný dům Na Červeném Kopci IV

Reakce na svažitý terén
Tvar domu vychází z omezení daných místními podmínkami i požadavky klienta. Prvním úkolem architektonického návrhu bylo vyřešit osazení domu na poměrně úzkém pozemku, který se výrazně svažuje směrem k jihu. Přáním mladého páru rovněž bylo zachovat volnou západní část pozemku pro případnou dostavbu bazénu. Vznikl tak dlouhý dům zasazený částečně do svahu, jehož základní kvádrovou hmotu doplňuje v příčném směru pouze výrazná terasa.
Základní hmota domu navržená na půdorysu 6,2 x 22,2 m má s ohledem na místní regulační plán sedlovou střechu a stojí na uliční čáře. Ze západní strany k ní přiléhá tubus schodiště, který ve své jižní části přechází do zastřešení terasy. Fasády sjednocuje bílá omítka, jejíž čisté nečleněné plochy prolamují pouze okna v jednoduché kompozici. Jediný barevný akcent tvoří šedé odstíny okenních rámů, střešní krytiny a kovového zábradlí terasy.
Jednoduchá funkční dispozice
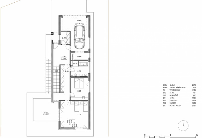
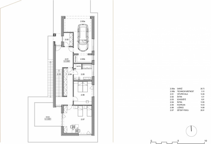
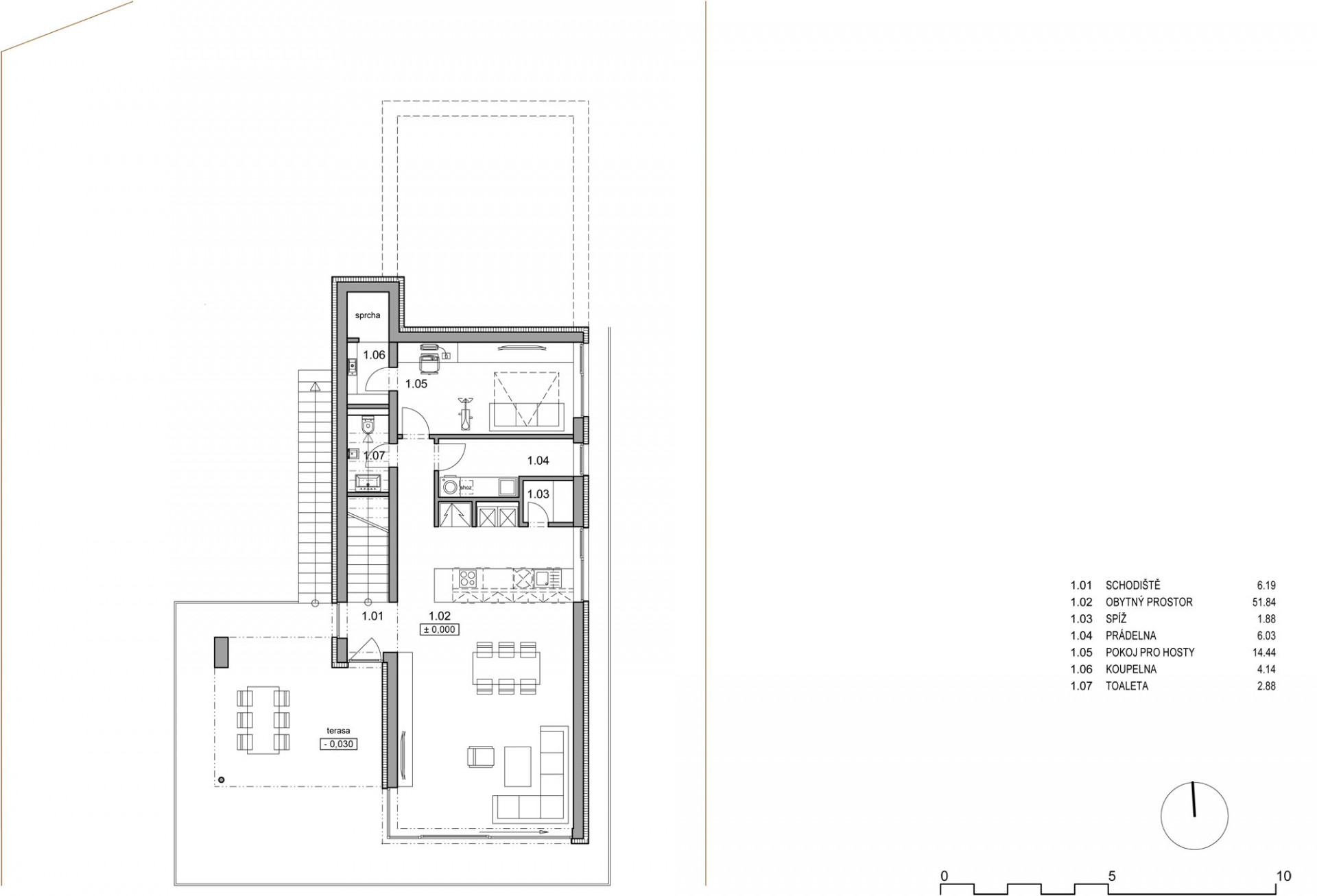
Do domu se vstupuje ze severní strany v nejvyšším bodě pozemku, kde se nachází i garáž s prostorem pro umístění sportovního vybavení a technická místnost. Na prostornou vstupní halu navazuje šatna. Do obytného prostoru o podlaží níže se sestupuje po přímém schodišti, které ve své dolní části nabízí průhled do zahrady.
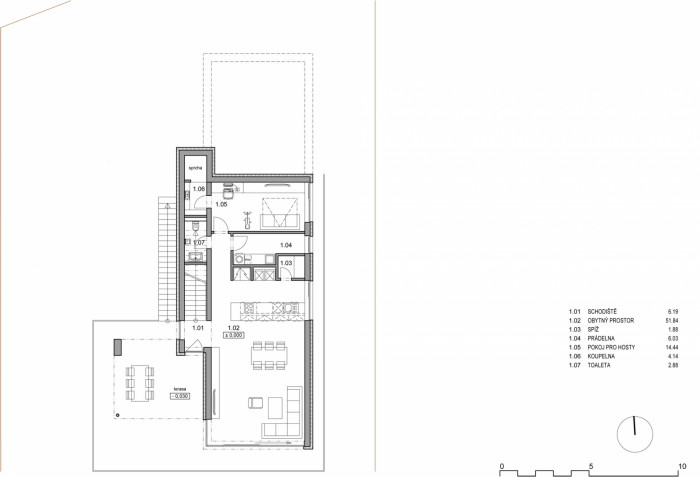
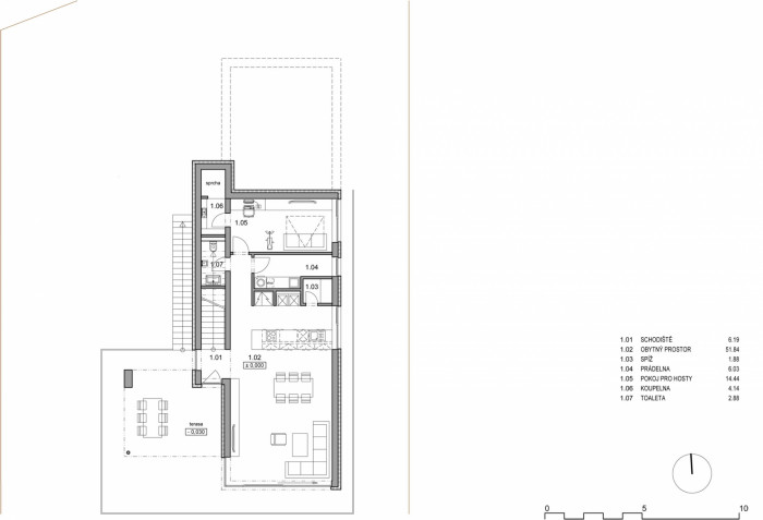
Obývací pokoj, jídelnu a kuchyň navrhli architekti jako jeden společný obytný prostor, jednotlivé zóny jsou zde však jasně definovány. Na ostrovní kuchyňskou linku navazuje spíž. Další úložné prostory tvoří vysoké skříně a volně stojící americká lednice, obojí vestavěné do niky. Na kuchyň navazuje prádelna, v níž ústí praktický shoz na prádlo z horní koupelny. V tomto podlaží nalezneme rovněž pokoj pro hosty s koupelnou a samostatnou toaletu.
Hlavní obytný prostor se díky velkoplošnému zasklení opticky rozšiřuje o navazující terasu se zahradou. Velké prosklené plochy s minimálním členěním osazené v hliníkových rámech Schüco poskytují obyvatelům domu ničím nerušené výhledy do okolní krajiny. Posuvné dveře umístěné v čele obývacího pokoje zajišťují dokonalé propojení interiéru s exteriérem.
Ložnicovou část domu umístěnou na úrovni vstupního podlaží tvoří ložnice rodičů, dětský pokoj, šatna a koupelna. Autoři při návrhu dispozice uvažovali také o možném budoucím rozdělení dětského pokoje na dva samostatné pokoje. Obytnou plochu tohoto podlaží doplňuje ještě terasa přístupná z šatny a dětského pokoje. Současně tak tvoří zastřešení terasy osazené na terénu a navazující na obývací pokoj.
Vytápění domu zajišťuje plynový kondenzační kotel a termické panely. Optimální klima vnitřních prostor podporuje řízené větrání s rekuperací tepla.
- Autoři: Michal Rosa, Martina Rosová
- Ateliér: ROSA - ARCHITEKT
- Země: Česká republika
- Město: Trutnov
- Datum projektu: 2015
- Realizace: 2016
- Užitná plocha: 209.00m2
- Zastavěná plocha: 157.00m2
- Plocha pozemku: 918.00m2
- Poznámka: Foto © Petr Košťál (petrkostal.cz)
Související projekty
Související architekti
Související ateliéry a firmy
Mohlo by vás zajímat























