Rodinný dům se zimní zahradou

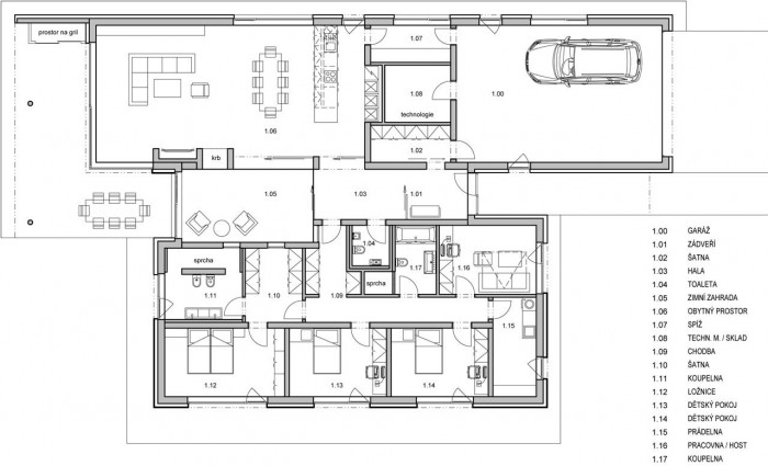
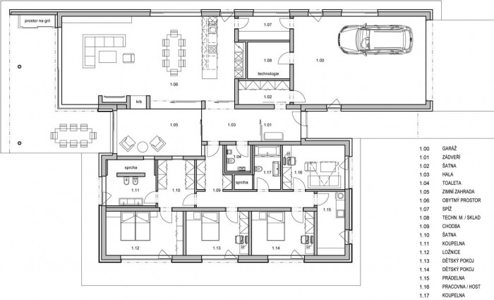
Stavební pozemek pro navržený dům je poměrně úzký a rovinatý s příjezdem z východní strany. V okolí se počítá s hustou zástavbou, takže nebylo při návrhu možné uvažovat s blízkými či vzdálenými výhledy. To do jisté míry determinovalo půdorysný tvar domu, kdy primární snahou autorů bylo vytvořit nerušený soukromý prostor zahrady na západní straně domu. Dům samotný vytvořili na základě zadání klienta jako přízemní, kde pohodlně může žít čtyřčlenná rodina. Dalším požadavkem byla garáž pro dvě auta a dostatek úložných prostor zejména na sportovní vybavení.

Zelená stěna jako živé srdce domu

Inspirací pro návrh interiéru domu se stala záliba klientů v interiérové zeleni. Srdcem dmu se tak stala zimní zahrada, která je vizuálně propojená s obytnou místností a díky světlíku je také zdrojem světla pro přilehnou kuchyň, která je umístěna v hloubi obytného prostoru a jinak je osvětlena pouze pásovým oknem se zvýšeným parapetem.

Zeleň je řešena formou vertikální zahrady. Zimní zahrada leží na průhledové ose, která vede domem od vstupu až do zahrady. Tato osa směřuje z východu na západ a architektonicky dělí dům na dvě hmoty a zároveň i dispozičně na dvě provozní části.

Podél jižní fasády jsou umístěny všechny ložnice, protože orientace ložnic do ulice nebyla žádoucí. Na sever od osy je pak umístěna garáž, technické místnosti a směrem do zahrady obytný prostor. Hmoty koncipovali autoři tak, aby se i do obytného prostoru doslalo i jižní slunce. Příjemným prodloužením obytného prostoru je krytá terasa s úložným prostorem na potřebné zahradní a sportovní vybavení.

Kvalitní materiály a precizní detaily

Interiér domu je řešen s důrazem na funkčnost konceptu. Autoři stejně jako při návrhu samotné hmoty domu volili jasné, čisté linie a to jak v půdorysu, tak v plochách nábytku a dalšího vybavení. Hlavnímu obytnému prostoru i dalším místnostem domu dominují kvalitní moderní materiály. Barevnost je velmi střízlivou kombinací šedé a bílé, doplněnou přírodními odstíny dubového dřeva. Překvapujícím osvěžujícím prvkem je pak růžová stěna za vanou jedné z koupelen.

Exteriér domu je navržen v souladu s jeho interiérovým řešením. Z exteriéru doplňuje bílé omítané plochy obklad z brazilské břidlice v šedé barvě.

Inteligentní dům

Dům je vybaven inteligentní elektroinstalací, řízeným větráním s rekuperací tepla, chlazením obytných místností a tepelným čerpadlem. Akustika hlavní obytné místnosti, chodeb a koupelen je řešena napínanými podhledy.

3D model jako ideální nástroj pro prezentaci návrhu

Navrhnout inteligentní moderní dům nespočívá jen v použití nejmodernější materiálů a technologií, ale i v efektivním využití techniky, jež může práci při návrhu i dalších projektových fázích významně usnadnit. V ateliéru ROSA – ARCHITEKT běžně zpracovávají architektonické studie formou modelů. Nejinak tomu bylo i v případě tohoto rodinného domu, kdy jako základ pro prezentaci projektu i následné projektové podklady posloužil 3D model vytvořený v programu Allplan.

Díky prostorovému modelu mohli autoři názorně prezentovat vzhled domu již ve fázi návrhu. Rovněž stavební půdorysy vyšších stupňů dokumentace vznikaly na podkladě modelu přímo v Allplanu. V ateliéru dále standardně využívají automatického generování popisů otvorů a kótování. Řezy jsou pak již detailně zpracovány formou 2D výkresů.

  • Ateliér: ROSA - ARCHITEKT
  • Autoři: Michal Rosa, Martina Rosová
  • Země: Česká republika
  • Město: Pardubice
  • Datum projektu: 2014
  • Realizace: 2016
  • Užitná plocha: 283.00m<sup>2</sup>
  • Zastavěná plocha: 347.00m<sup>2</sup>
  • Plocha pozemku: 1 259.00m<sup>2</sup>
  • Poznámka: Foto © Ing. Petr Košťál
Generální partner
Hlavní partneři