Rekonstrukce plzeňského 1+1
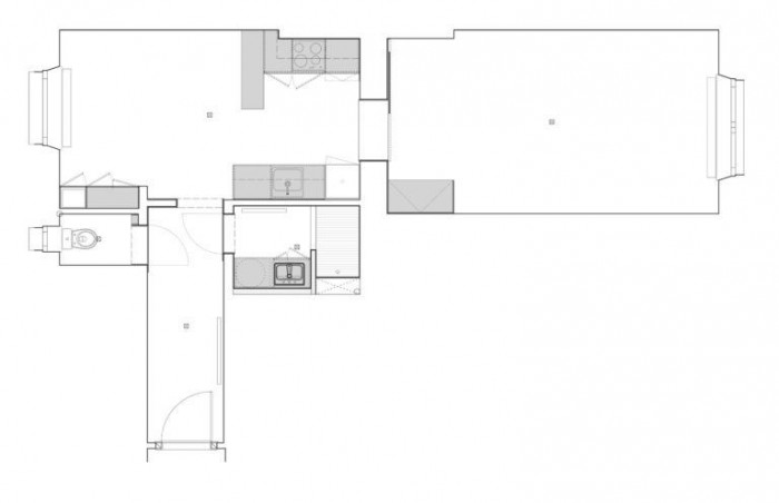
Byt o dispozici 1+1 se nachází ve čtvrtém patře dříve družstevního domu v Plzni na Slovanech. Dům byl vystavěn na Slovanské třídě v roce 1923, součástí celku měla být modlitebna reformované církve. Ta však realizována nebyla a ve vnitrobloku zůstala společná zahrada. Celý dům tvoří 30 bytů, všechny o stejné dispozicí 1+1. Námi rekonstruovaný byt situovaný u štítové zdi má dva pokoje, a to příčně přes celou hloubku domu.
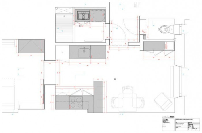
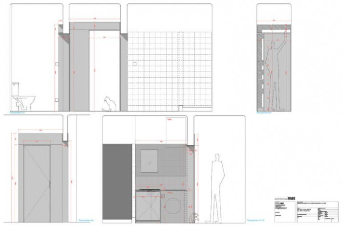
Rozhodli jsme se podpořit orientaci bytu západ-východ s výhledem na Plzeň. Probourali jsme větší otvor místo původních dveří. Dispozici jsme radikálně neměnili. Předsíň, záchod i koupelna mají na koso položenou dlažbu, koupelna je obložena běžným bílým obkladem RAKO 15×15. Pokoje mají novou podlahu ze smrkových prken, stěny mají novou štukovou omítku, stropy jsme opravili a zachovali rákosový podhled s fabiony. Do interieru jsou vloženy objemy kuchyně, velkých obložek a vestavěných skříní z borovicové překližky s matným vodou ředitelným lakem. Dveře mezi obytnými místnostmi tvoří posuvná stěna z téměř celé desky, dveře na toaletu a do koupelny jsou zapuštěny do stejné roviny s obkladem, zavěšené na skříňové kování.
Byt je vybaven novým i starším nábytkem tak, aby prostředí působilo neokázale a domácky. V obývacím pokoji je spací kout a houpací síť. Interier je realizován částečně svépomocí. Jednotlivá řemesla jsou použita v co možná nejviditelnější formě. Kladli jsme důraz na využití tradičních a běžných materiálů – dřevo, kov, keramika. Chtěli jsme zhodnotit byt, pozvednout ho na standard současného bydlení a zároveň zachovat charakter téměř sto let starého domu. Proto jsme ani nepoužili závěsné WC, „nutnost“ každé současné rekonstrukce, naopak jsme osadili pouze běžný „kombík“.
V bytě byla provedena celková rekonstrukce všech technických rozvodů. Vytápění karmou bylo nahrazeno ústředním topením s elektrickým kotlem, použitým z důvodu nemožnosti vyvložkování stávajícího komínu. Nové jsou také rozvody vody a elektřiny. Sporák je elektrický, ohřev vody je lokální - boilerem. V koupelně jsme rozvody umístili do sádrokartonové předstěny tak, aby při nadcházející rekonstrukci stoupaček nebylo nutné mnoho bourat.
Mohlo by vás zajímat