Revitalizace hospodářského dvora JACER

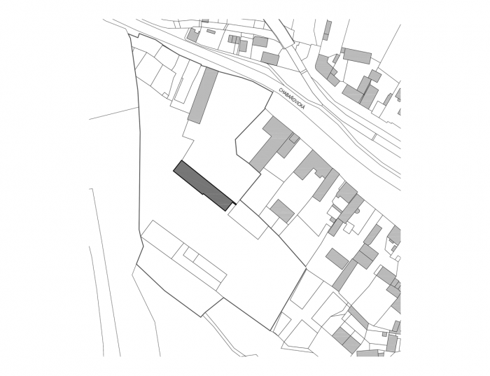
Urbanistické řešení

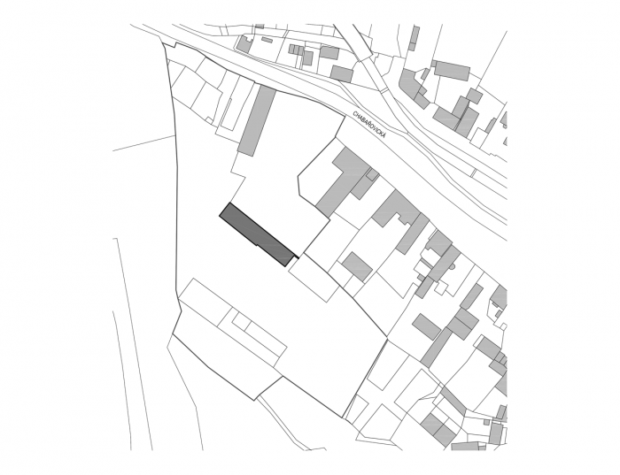
Původně zemědělská usedlost, velkoryse založená v druhé polovině devatenáctého století v Předlicích na okraji Ústí nad Labem. Za minulého režimu tu hospodařilo JZD, které areál využívalo nejspíš naprosto pragmaticky. Udržovalo se pouze to, co se bezprostředně hodilo, zbytek chátral. Od devadesátých let bylo místo opuštěné a následoval rychlý rozklad.

Přes pokročilou devastaci tu ale stále byla a je zřetelná síla koncepce a provedení původního založení. Výrazné objekty po obvodě pozemku artikulují měřítko a prostor rozsáhlého dvora. Dva z nich – padesát metrů dlouhá konírna na západě a šedesát dva metrů dlouhá stodola na jižní hraně pozemku – jsou základními kameny našeho návrhu.

Konírna

Architektonické řešení

Objekt bývalých stájí je součástí hospodářského areálu založeného pravděpodobně někdy kolem roku 1870. Velikost a poloha domu je pro uspořádání hospodářství klíčová. Spolu s podobně velkou stodolou na jižní hraně pozemku vymezuje prostor velkého dvora a ustavuje měřítko areálu, řádově větší než měřítko okolní obytné zástavby.

Dům byl posledních zhruba dvacet let nevyužíván, nakonec navíc delší dobu bez střechy. Degradace původních stavebních konstrukcí tak byla značná.

Návrh směřoval k fixaci a záchraně možného. Připadalo nám, že k jistotě a velkorysosti původního, není potřeba přidávat. Cílem byl jeden velký, univerzální výstavní prostor s malým zázemím, využívaný sezónně od jara do podzimu. Původní prostorový koncept zůstal zachován, pouze se proměnila funkce.

Hlavním stavebním zásahem byla fixace obvodového zdiva (zhruba o několik decimetrů vychýlená západní strana domu) pomocí masivních betonových rámů a návrh nového zastřešení. Střecha je valbová stejně jako původní. Horní osvětlení proskleným hřebenem značí novou náplň prostoru a principiálně propojuje konírnu se sousedním nově navrženým školicím střediskem (původní stodolou).

Kámen obvodového zdiva byl v ploše manuálně očištěn, lokálně vyspraven a přespárován. Stejně tak byly vyspraveny cihelné šambrány kolem oken. Do původních otvorů jsme zasahovali minimálně.

Navrhovali jsme jednoduchá konstrukční a materiálová řešení (důraz na nízké náklady). Důležitá nám pro případné budoucí sofistikovanější úpravy připadá čitelnost původního.

Zásadní byla investorova chuť a vůle zachránit objekt většinově považovaný za odepsaný, navíc v území, které je dík současné absenci smysluplné sociální a urbánní politiky města nahlíženo s přezíravým despektem.

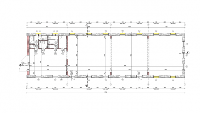
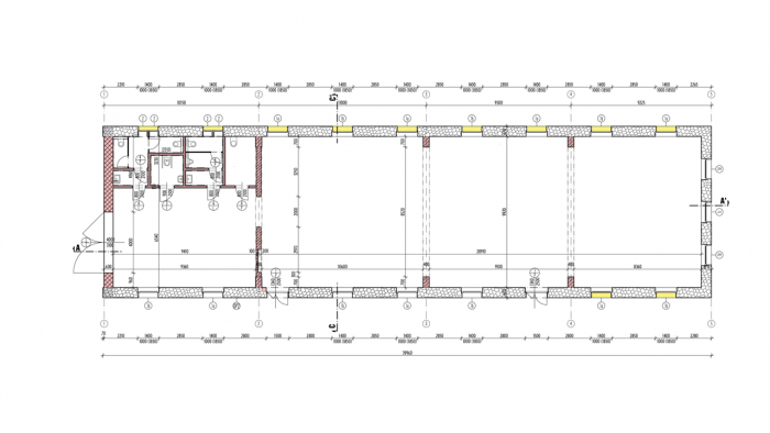
Konstrukční řešení

Původní kamenné obvodové zdivo stáje je očištěno a opraveno. Obnovena jsou v průběhu času nahodile zazděná okna. Korunní římsa, která byla ve velmi špatném stavu, byla lokálně opravena, respektive přezděna. Na římse byl vybetonován masivní železobetonový věnec, propojený se čtyřmi příčnými železobetonovými ztužujícími rámy. Rámy navržené v osových vzdálenostech po 10 metrech mezi podélnými obvodovými zdmi zajišťují prostorovou tuhost celé stavby a umožňují volnou vnitřní dispozici stáje.

Na pozední věnec jsou osazeny střešní dřevěné příhradové vazníky. Výška vazníků byla zvolena tak, aby byl zachován původní sklon valbové střechy stáje. Vazníky jsou v interiéru přiznané a střecha je nezateplená. Střešní plášť je z plechové falcované krytiny doplněné ve hřebeni střechy průběžným lineárním světlíkem.

Podlaha je z drátkobetonu se strojně hlazeným povrchem. Okna jsou dřevěná smrková s jednoduchým zasklením. Vstupní dveře a vrata jsou z dubového masivu.

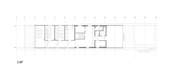
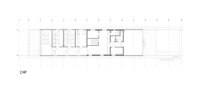
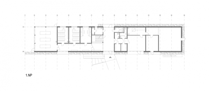
Školicí středisko

Architektonické řešení

Připadalo nám dobré sledovat zkušenost a myšlení původních stavitelů. Torzo stodoly na jižní hraně pozemku v sobě mělo potenciál a kouzlo, které bylo škoda nevyužít a nový dům jsme proto umístili sem. Kamenná obvodová zeď navíc svojí velikostí a proporcí překvapivě dobře funguje pro dispozici a zamýšlený provoz nového domu. Ve chvíli kdy jsme zjistili, že původní zdi a otvory, sami o sobě proporčně přesné a krásné, ladí dokonale také s modulací dřevostavby (se dřevem jako stavebním materiálem se od počátku automaticky alespoň na část domu počítalo), zkonstruoval se dům vlastně sám.

Na obou kratších koncích jsme prolomili původní kamenný obvod (půdorys 62 × 10 m) a symbolicky tak propojili skrz nový dům dvůr s rozsáhlým pozemkem na jihu (měly by tu vyrůst ještě další objekty a odehrávat se další aktivity). Dlouhé boční kamenné zdí využíváme naopak jako přirozené opěrky (výrazný terénní zlom) a zároveň stabilní a pevné fasády nového domu. Původní vjezdy do stodoly nám dobře zapadají do dispozic přízemí jako hlavní vstupy a velká okna. Střešní rovina je pilou šedových světlíků. Jejich velikost a směřování váže pevně k dispozici druhého podlaží. Na východ orientované světlíky stejné velikosti prosvětlují jednotlivé učebny a západně orientované prosklení osvětluje komunikační prostor a velkou jednací místnost.

Střecha svým tvarem odkazuje k industriální atmosféře městské periferie (v blízkém okolí používaný typus) a zároveň přináší nevšední světelnou kvalitu do celého horního patra domu. S nadsázkou je střecha také zubatým plátem pily, typického nástroje JACERu.

  • Ateliér: 3+1 architekti
  • Autoři: Pavel Plánička, Bruno Panenka, Matěj Páral
  • Země: Česká republika
  • Město: Ústí nad Labem - Předlice
  • Ulice, číslo: Nám. Prokopa Velikého 466
  • PSČ: 400 01
  • Datum projektu: 2011
  • Realizace: 2014
  • Užitná plocha: 892.00m<sup>2</sup>
  • Zastavěná plocha: 545.00m<sup>2</sup>
  • Plocha pozemku: 6 066.00m<sup>2</sup>
  • Poznámka: Foto © Pavel Plánička
Generální partner
Hlavní partneři