3+1 architekti - Rodinnů dům Maxičky
Původní dům, ačkoliv plný kouzel, byl svým uspořádáním, konstrukcí a materiály natolik pevně definován, že jsme ho pro náš záměr neuměli smysluplně „přeložit“ standardní rekonstrukcí.
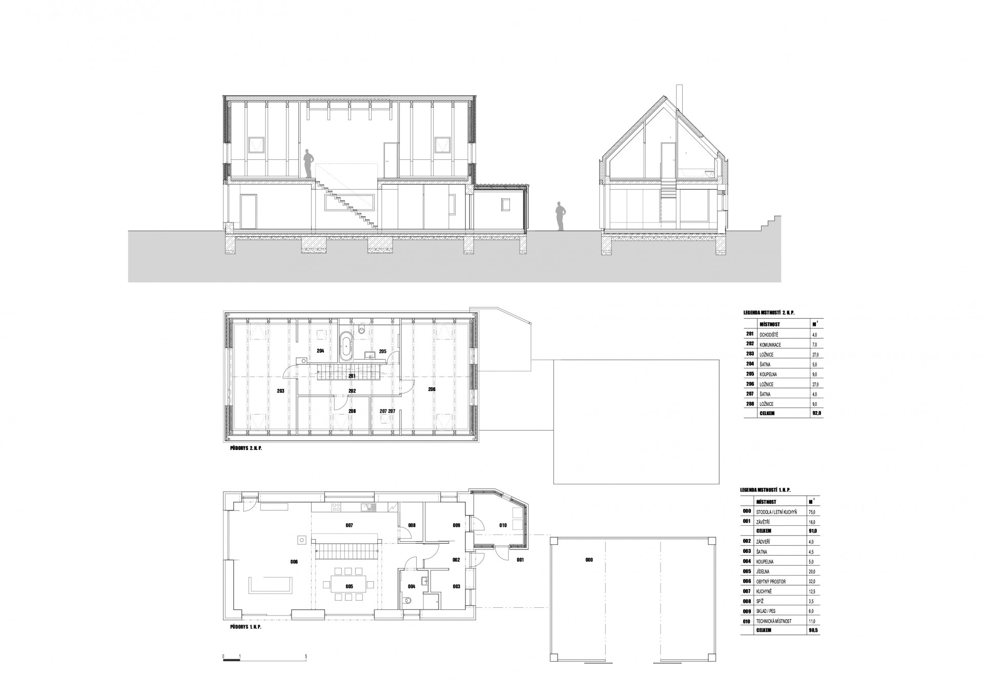
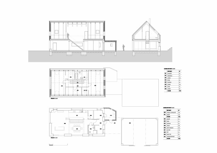
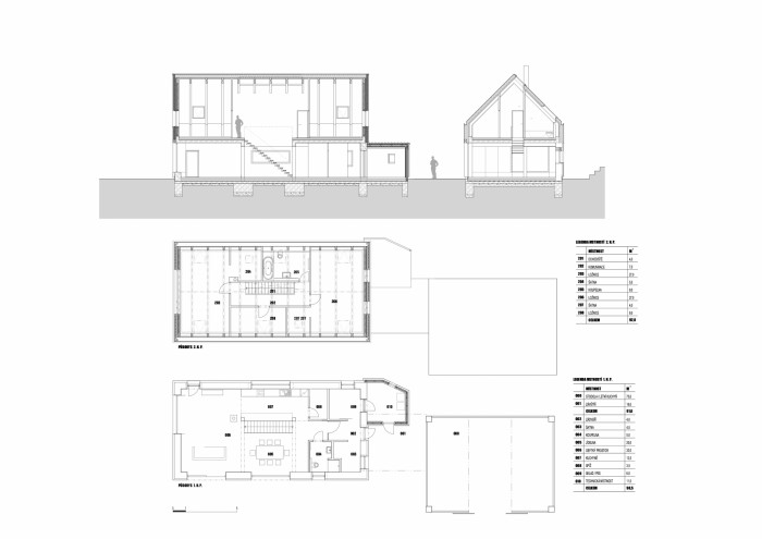
Navrhli jsme proto dům nový, následujíc přitom pozičně a měřítkem převědčivé historické uspořádání lípa / dům / stodola. Oproti krásným, ale stále vlhkým masivním pískovcovým stěnám a malým místnostem mezi nimi, nám konstrukce ze současných materiálů umožnily vytvořit relativně velkorysé a dle potřeby otevřené prostory v objemu a proporcích podobných původnímu domu.
Dřevěná, pohltivě monochromatická kůže domu příbuzná plášti stodoly, je klidným pozadím proměnlivě barevných dějů kolem. Stavebník je sběratel, artefakty se kupí. Nové vrstvy se podivuhodně rychle prolínají a překrývají se starými. Spoje jsou bezešvé.Je tu mnoho odkoukaných původních motivů a též pár posunů a aktualizací. Zastřešním prostoru mezi stodolou a domem byl nastolen jejich nový, bližší vztah. Vzniklé závětří nabídlo přesun hlavního vstupu z boční fasády do štítu. Jihovýchodní fasáda s původním vstupem se uvolnila pro užší spojení vnitřku s vnějškem.
- Autoři: Pavel Plánička, Bruno Panenka, Barbora Urbanová
- Ateliér: 3+1 architekti
- Země: Česká republika
- Město: Maxičky
- Užitná plocha: 190.00m2
- Zastavěná plocha: 128.00m2
Související projekty
Související architekti
Související ateliéry a firmy
Mohlo by vás zajímat