Revitalizace zámeckého návrší v Litomyšli
 
                                
                                Regionální muzeum
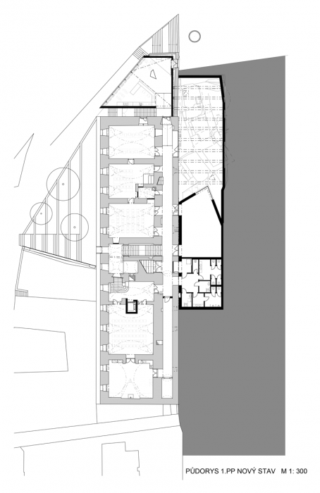
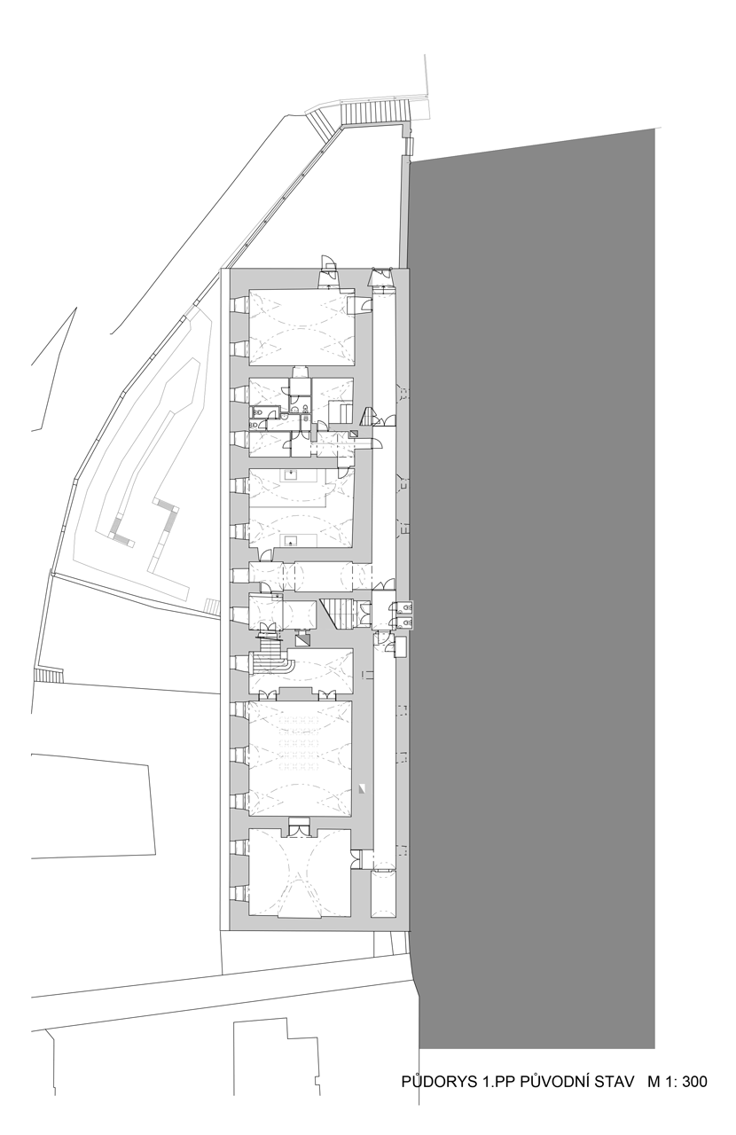
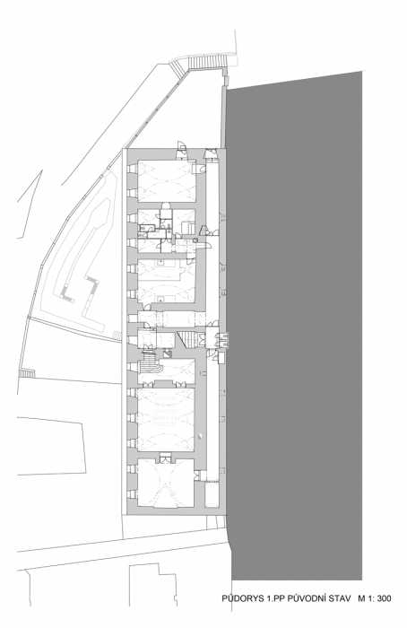
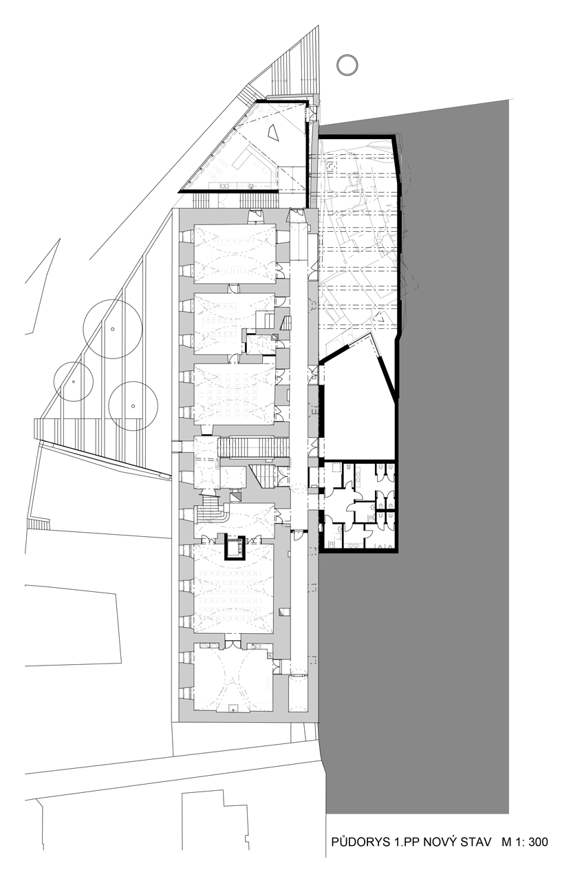
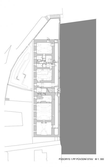
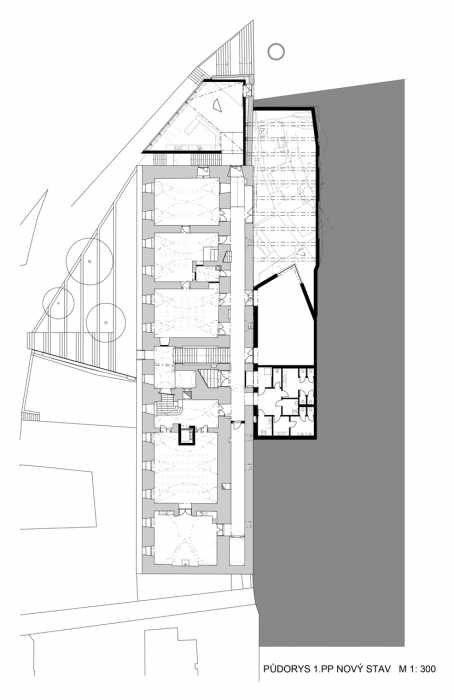
Rozsáhlý projekt revitalizace zámeckého návrší v Litomyšli byl doplněn doprovodným dotačním programem, který se soustředil na obnovu bývalého piaristického gymnázia. Od jeho zániku sídlí v autentické barokní budově asi osmdesát let regionální muzeum. Obnova muzea se nezaměřila jen na opravu stávajících stavebních konstrukcí, ale soustředila se na kvalitativní proměnu budovy jako celku tak, aby muzejní instituce dostala současné společenské parametry.
Velká pozornost byla věnována vstupu, hygienickému zázemí, prostupům pro pořádání dočasných výstav, celkově bezbariérovému provozu, interaktivnímu pojetí dlouhodobých expozic, dětským programům, vzdělávacím aktivitám a také otevření muzea nejbližšímu okolí i celému městu. Také vznikl moderní archiv a v zámeckém pivovaru detašované restaurátorské dílny muzea.
Při realizaci předsevzatého programu byly objeveny pozdně středověké archeologické pozůstatky tzv. Kostkova města. Tyto cenné nálezy ovlivnily koncept řešení muzea natolik, že se staly součástí nového řešení a nakonec i nejvzácnějším sbírkovým exponátem.
Ambicí projektu bylo i vytvoření společenské aktivní zóny okolo budovy, vlastně veřejného prostoru pro živelné občanské využívání. Vznikly tak pobytové schody, plošina a kašna.
Samotná revitalizace zámeckého návrší vygradovala úpravou hlavního prostranství do podoby regulérního veřejného prostoru – náměstí, o jehož názvu bude ještě nějaký čas vedena politická diskuse.
- Autoři: Josef Pleskot, Jiří Vlach, Andrej Škripeň, David Ambros, Marek Barták, Daniel Kříž
- Ateliér: AP ATELIER
- Země: Česká republika
- Město: Litomyšl
- Ulice, číslo: Jiráskova 9
- PSČ: 570 01
- Datum projektu: 2007
- Realizace: 2014
- Foto ©: Tomáš Souček
Související projekty
Související architekti
Související ateliéry a firmy
Mohlo by vás zajímat
 
				 
				 
				 
				 
				 
				 
				 
				 
				 
				 
				 
				 
				 
				 
				 
				 
				 
				 
				 
				 
				 
				 
				 
				 
				 
				 
                             
                             
                             
                             
                             
                                 
                             
                             
                             
                             
                             
                             
                             
                             
                             
                             
                             
                             
                             
                             
                             
                             
                             
                             
                             
                     
                     
                     
                     
             
             
             
             
             
            		 
            		 
            		 
            		 
            		 
                                                                                                             
                                                         
                                                         
                                                                                                             
                                                         
                                                         
                    