Rusina Frei architekti - Komunitní centrum Opatovice
V malé středočeské obci Opatovice I bydlí jen něco kolem sta místních obyvatel. Aby tato komunita měla místo pro setkávání a pořádání kulturních a společenských akcí pro děti i dospělé, zakoupila obec starou chalupu nad Mlýnským rybníkem.
S přáním přestavět dům na komunitní centrum se na naši kancelář obrátil pan starosta v roce 2016. Využili jsme prázdného domu před rekonstrukcí a letní počasí ke krátkodobému přestěhování kanceláře do Opatovic. A tak přímo v obci vznikla studie na rekonstrukci a využití obecních stavení, kterou jsme rovnou v hospodě odprezentovali a prodiskutovali s obyvateli.
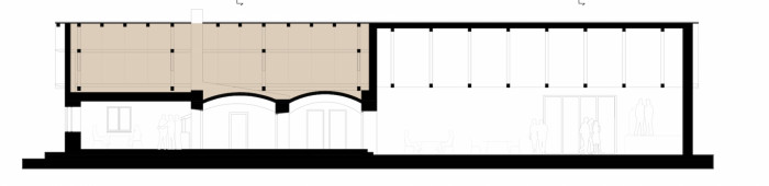
Z domu vzniklo komunitní centrum s klubovnou a tanečním sálem, který místním chyběl. Přestavba zachovává nejhodnotnější části chalupy – světnice a zaklenuté místnosti v prostřední části domu. Této části jsme navrátili historické velikosti otvorů a špaletová okna. Původní dveře byly repasovány. Světnice s prkennou podlahou a kamny může být malou klubovnou pro dětské kroužky i počítačovou učebnou pro seniory. Kuchyně opět slouží svému účelu – s moderním vybavením i s původním kachlovým sporákem na nožičkách. Nové podlahy ze slinutých dlaždic doplňují ty staré. Interiér zabydluje zrepasovaný nábytek po původních majitelích.
Dožilá stáj a stodola ustoupila novostabě sálu, otevřeného do krovu. Víceúčelovou místnost lze osadit mobilním barem s pípou, podiem nebo projektorem s ozvučením. Taneční parket je z dřevěné průmyslové mozaiky, obložení z lazurovaných překližek. Společenský prostor propojují velká okna na vstupní dvůr vpředu i na sad nad chalupou. Okna chrání posuvné dřevěné okenice odpovídající velikosti někdejších stodolových vrat. Nová a stará část domu pokorně srůstají do jednoho celku, stejně jako u původních stavení.
Chalupu na pěkném velkém pozemku doplňuje ještě zděná kolna, která po menších úpravách slouží jako hospodářský objekt a dílna pro potřeby obce. Na místě zbořené kamenné stodůlky se výhledově počítá s výstavbou chaty se dvěma malými obecními byty. Ty budou sloužit jako obecní nebo jako prázdninové bydlení.
Zpevněné prostory kolem budovy jsou vydlážděny kamennou dlažbou a osety štěrkovým trávníkem. Vzrostlé stromy doplňují trvalkové záhony. Na sad se opět vrátí ovocné stromy.
- Ateliér: Rusina Frei architekti
- Autoři: Martin Rusina, Martin Frei, Markéta Poláčková
- Spolupráce: Antonín Hampl
- Země: Česká republika
- Město: Opatovice I
- Ulice, číslo: Opatovice I, 28
- PSČ: 28601
- Datum projektu: 2017
- Realizace: 2021
- Užitná plocha: 196.00m<sup>2</sup>
- Zastavěná plocha: 268.00m<sup>2</sup>
- Plocha pozemku: 3 933.00m<sup>2</sup>
Mohlo by vás zajímat