Stavební úpravy RD v Říčanech u Prahy

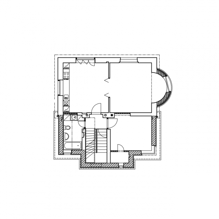
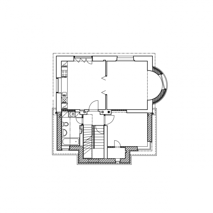
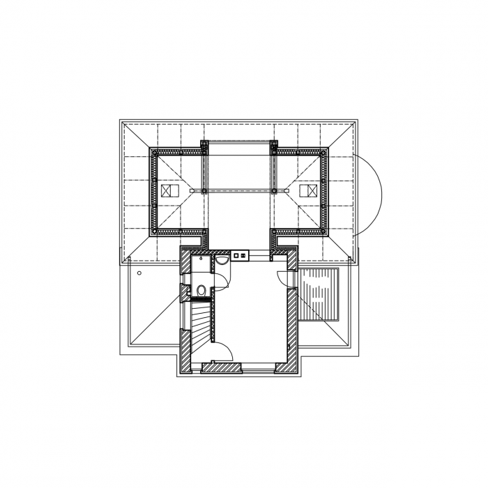
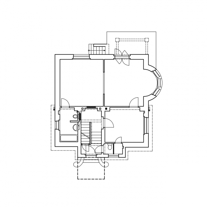
Projekt řeší stavební úpravy a nástavbu a stavební úpravy rodinného domu z 30. let. V domě byl původně jeden byt. Cílem úprav bylo vytvoření samostatného menšího bytu v přízemí a většího bytu v patře a v nástavbě.

Se stavebníkem jsme hledali co největší cenovou hospodárnost při současném zachování prostorové i materiálové kvality. Všechny zachovalé a kvalitní původní části stavby byly zachovány a opraveny (krov, špaletová okna, zábradlí, parkety). Nové části jsme navrhli v soudobém tvarování, ale tak, aby byly s původním charakterem domu v souladu. Krytina je z břidlicově šedého titanzinku.

Pro malé stavby – a rekonstrukce rodinných domů obzvlášť – se často obtížně hledá dodavatel. Tento druh staveb je totiž pracný a náročný na koordinaci, ale přitom z finančního hlediska nevděčný. V tomto případě se však dílo firmě Sanace Vape, s. r. o. podařilo velmi dobře.

  • Ateliér: třiarchitekti
  • Autoři: David Mareš, Petr Šťovíček
  • Země: Česká republika
  • Generální dodavatel: Sanace Vape s. r. o.
  • Město: Říčany
  • Ulice, číslo: Bachmačská 960
  • PSČ: 251 00
  • Datum projektu: 2010
  • Realizace: 2012
  • Užitná plocha: 205.00m<sup>2</sup>
  • Zastavěná plocha: 98.00m<sup>2</sup>
  • Plocha pozemku: 1 250.00m<sup>2</sup>
  • Foto ©: Petr Neubert
Generální partner
Hlavní partneři