Viktor Vlach - RD Mercedes
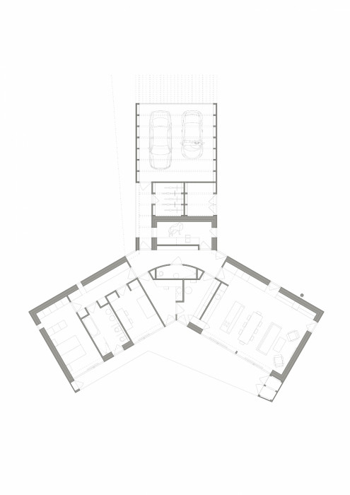
Pozemek na okraji malé vísky na Náchodsku byl spíš pastvinou, ze které se pro stavbu vyčlenila část těsně přiléhající k obci. Rozlehlost rovinaté parcely, výhledy do kraje, blízkých hvozdů i na pasoucí se koně poskytovaly jistou svobodu a možnost velkorysejšího rozmachu. Jednopodlažní dům je koncipován jako symetrická trojcípá hvězdice připomínající znak Mercedesu, jednotlivá křídla mezi sebou svírají úhel 120 stupňů.
Rozdělení funkčních zón nejlépe splňovalo požadavky jak na vytvoření soukromí, nasměrování k výhledům, reaguje i na cestu slunce po obloze. Hospodářská část s parkováním a sklady je orientovaná k příjezdové cestě, denní a noční obytná zóna se otáčí ke slunci a k panoramatům. Krytá terasa spojující obě tyto části je další a možná nejoblíbenější místností, díky které se v létě okna nepřehřívají, zatímco v zimě je slunci umožněno nahlédnout dovnitř. Tvar domu také předurčuje jednotlivé zóny zahrady, kde jedna část je příjezdová a vstupní, další určená k hospodaření a zahradničení, poslední k odpočinku obyvatel domu po práci na přilehlých plantážích.
- Autoři: Viktor Vlach
- Spolupráce: Vladimír Mucha
- Země: Česká republika
- Realizace: 2019
- Datum projektu: 2016
- Realizace: 2019
Mohlo by vás zajímat