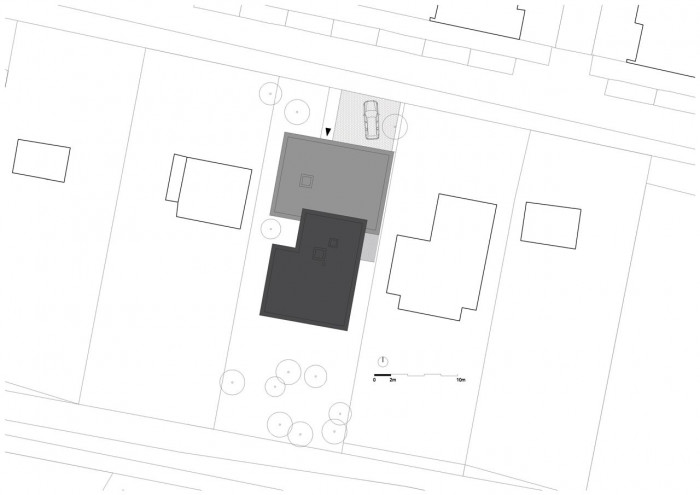
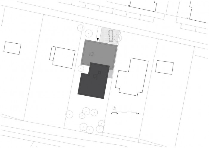
Pozemok pre výstavbu rodinného domu sa nachádza na severovýchodnom okraji Bratislavy a je súčasťou pôvodnej záhradkárskej kolónie. Priame dopravné napojenie je zabezpečené cez ulice Anízova a Rascová. Pozemok je mierne svažitý (133,50 m n. m. – 131,50 m n. m.) s rozmermi približne 15,5 × 37 m. Pôvodne slúžil ako úžitková záhrada so záhradnou chatkou. Výstavba bola regulovaná ochranným pásmom vzletového a približovacieho priestoru (uhol 1:70), ktorým je obmedzená výška zástavby od 140,0 m n. m. smerom od Hradskej cesty po výšku 143,8 m n. m. na Priehradnej ulici.

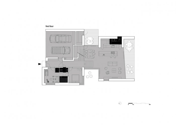
Navrhovaný rodinný dom je nepodpivničený, dvojpodlažný. Dom je na pozemku osadený tak, aby poskytol maximálny komfort užívateľom – orientácia k slnku a svetlu, dimenzie komunikačných priestorov, kontakt so záhradou… Uzatvorenosť smerom do ulice, maximálne otvorenie smerom do záhrady.

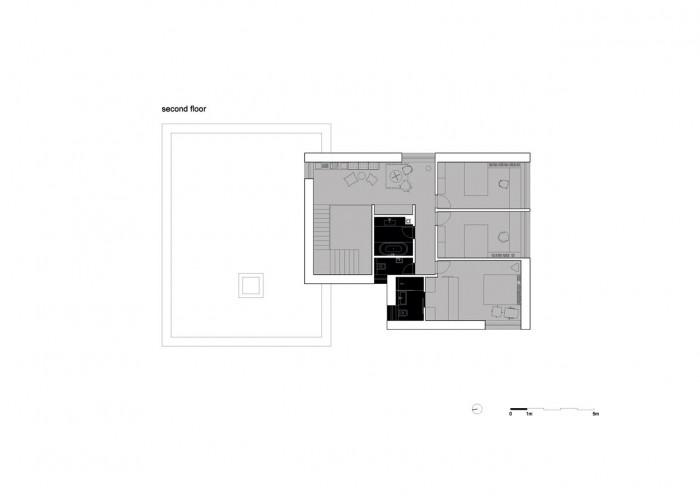
Dispozično-prevádzkové riešenie rešpektuje lokalitný program investora. Dom je orientovaný smerom do ulice (sever) svojou technicko-obslužnou časťou (garáž, fitko). Na vstupnú halu nadväzujú relaxačné priestory – telocvičňa, sauna, hygiena a hosťovská izba. Cez priamočiare schodisko sú na výškovej úrovni -1,450 (1. PP) prístupné denné priestory domu (kuchyňa, jedáleň, obývacia izba, prekrytá terasa a vybavenie domu – komora, práčovňa) sušiareň a technická miestnosť. Nočná čast domu – izby detí a rodičov, hygienické vybavenie a spoločenský priestor sú umiestnené na 2.NP. Obývacia izba, jedáleň a kuchyňa majú priamy bezbariérový prístup do záhrady. Pocit otvorenosti je podporovaný perforáciami na východnej, južnej a západnej strane.

Dom je z konštrukčného hľadiska navrhnutý ako kombinovaný systém – oceľobetónové horizontálne (čiastočne aj vertikálne) konštrukcie a murované vertikálne konštrukcie. Plochá strecha má obrátené poradie vrstiev, je ukončená riečnym štrkom. Zateplenie objektu je realizované minerálnou vlnou. Vnútorné a vonkajšie povrchy sú ukončené omietkou, resp.drevenou prevetrávanou fasádou. Okná a zasklené steny sú hliníkové s izolačným trojsklom. Ochranu pred nadmerným slnečným žiarením zabezpečujú elektricky ovládané exteriérové hliníkové žalúzie.

  • Ateliér: plusminusarchitects
  • Autoři: Maroš Fečík, Andrej Olah
  • Země: Slovensko
  • Město: Bratislava - Vrakuňa
  • Datum projektu: 2012
  • Realizace: 2014
  • Užitná plocha: 260.00m<sup>2</sup>
  • Zastavěná plocha: 202.00m<sup>2</sup>
  • Plocha pozemku: 579.00m<sup>2</sup>
Generální partner
Hlavní partneři