White Villa
Zapálený pro svou vizi, ale nejistý v tom, jak jí dosáhnout, zapojil klient do návrhu svého moderního, minimalistického a otevřeného rodinného domu architekty z ateliéru 4a. Záměr, se kterým byl dům projektován, od nás vyžadoval použití minimálního množství detailů. Vyjádřili jsme se pouze s pomocí několika málo přírodních materiálů, v monochromatickém barevném ladění. Úspěšně jsme zvýšili koeficient zastavění, museli jsme ale čelit mnoha omezením z hlediska zásad celkového urbanistického a architektonického řešení v dané lokalitě Jenerálka.
Podařilo se nám interpretovat klasickou a v místní zástavbě převládající sedlovou střechu novým způsobem, který odpovídal požadavkům klienta na současný moderní dům. V našem pojetí se tradiční tvar přetavil v pozvolně stoupající a klesající zeď, která se jako stuha vine kolem celého domu. Linie pozvolně stoupající asymetrické střechy je tvořena právě touto zdí rozpínající se přes parcelu. Části zdi jsou vynechány za účelem zdůraznění a krytí vstupu, jinde slouží průřezy pro otevření fasády domu jejímu okolí. Chtěli jsme dům vizuálně pevně spojit se zemí tak, aby působil trvalým dojmem, hmota domu vyhlížela solidně a pevně, a zároveň poskytnout klidný, lenivý pocit domu sebevědomě usazeného na pozemku. Vše je navrženo v bílé barvě s tmavými přírodně šedivými detaily v průřezech fasádou a šedým soklem tvořícím základnu domu.
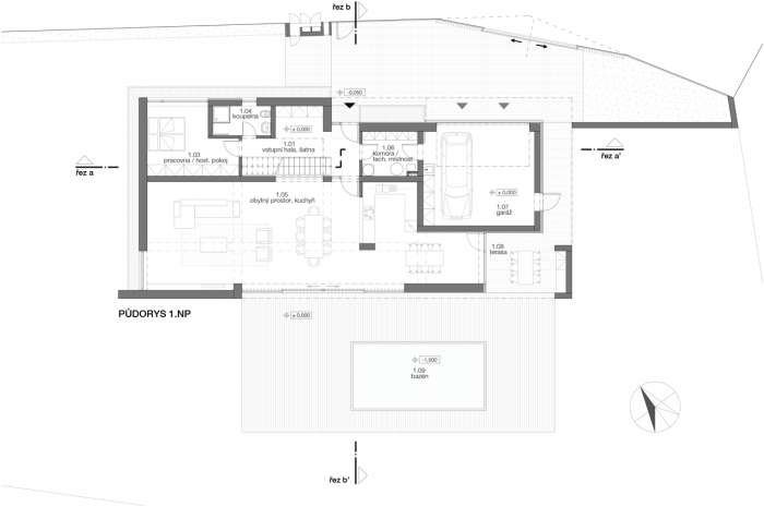
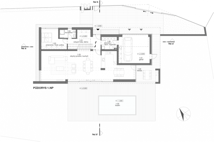
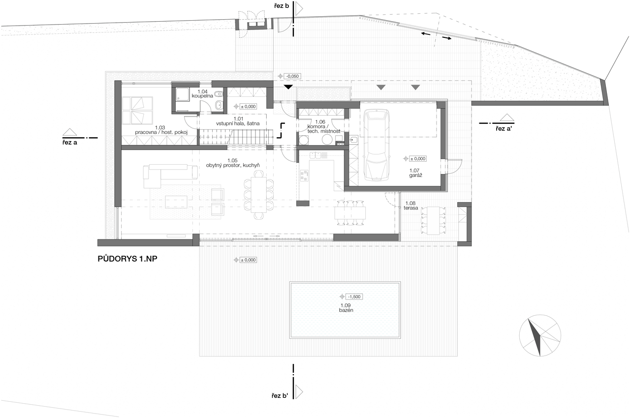
V rámci uspořádání interiéru je vstup do vily umístěn ze severu, s malou vstupní halou a prostorem pro šatnu. Při vstupu z garáže je přístup do domu veden přes technickou místnost. Z haly je přístupná koupelna a pokoj pro hosty/pracovna. Celá zbylá plocha přízemí je věnována obývacímu prostoru, na jižní straně propojenému se zahradou. Těchto přibližně osmdesát metrů čtverečních otevřeného prostoru, na jednotlivé zóny rozděleného pouze vizuálně, je v polovině délky jižní fasády plně prosklených a pouští tak zeleň zahrady do obytného interiéru.
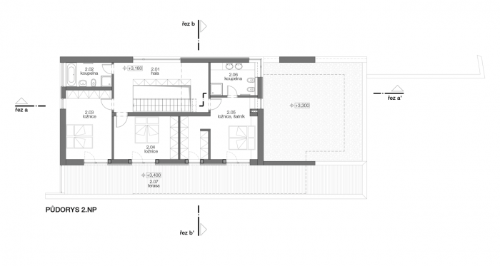
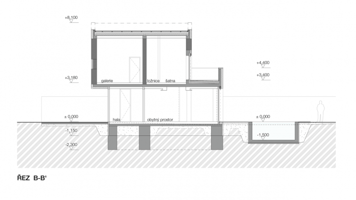
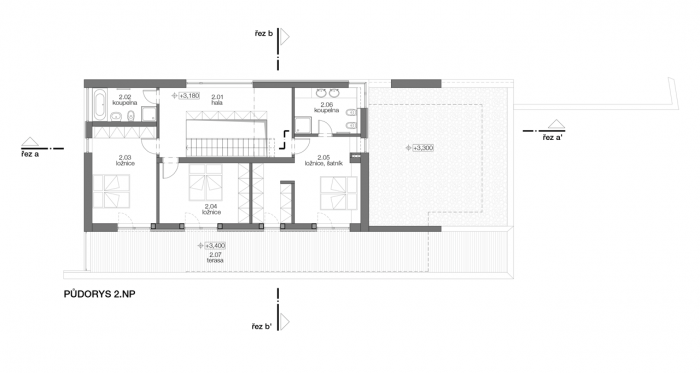
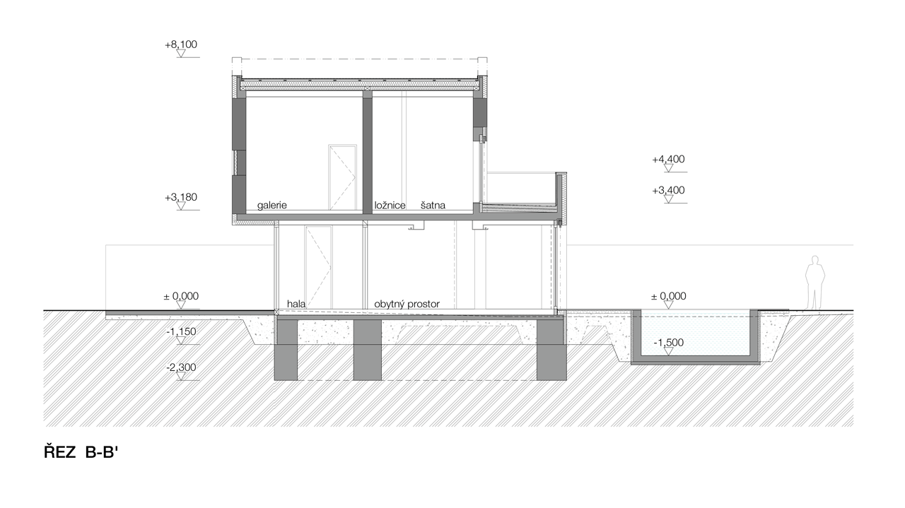
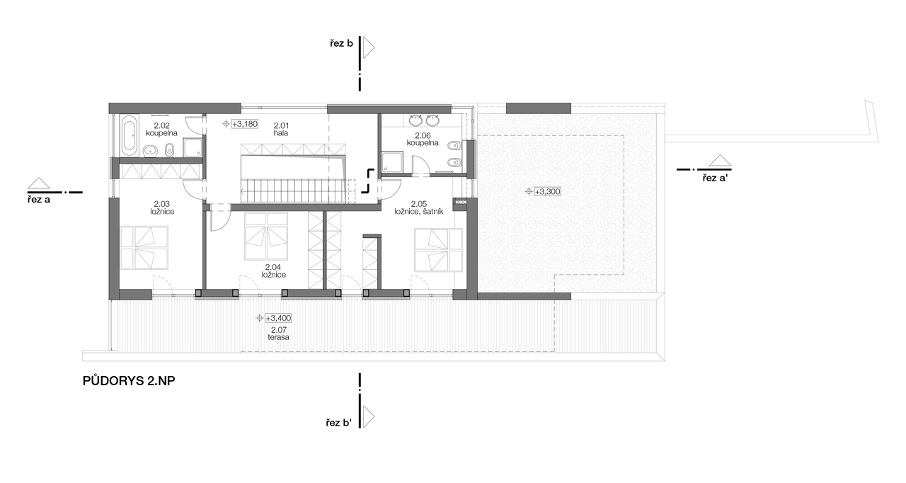
Podesta v prvním patře je koncipována jako průchozí galerie, strop zde sleduje tvar střechy a má tím pádem dvojnásobnou výšku, umožňující v budoucnu vestavbu mezipatra. Tři ložnice s francouzskými okny jsou všechny otevřeny směrem k jižní pobytové terase. Hlavní ložnice s šatnou má soukromou koupelnu vybavenou sprchovým koutem, druhá koupelna s vanou je určená k užívání všem.
- Ateliér: 4a architekti
- Země: Česká republika
- Realizace: 2014
- Užitná plocha: 260.00m2
- Poznámka: Foto © Ivan Bárta
Související projekty
Související ateliéry a firmy
Mohlo by vás zajímat