Znamení čtyř - architekti - Letní dům u Štěchovic

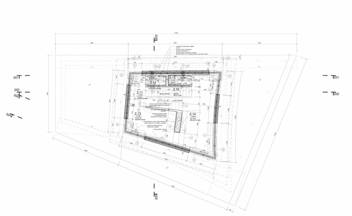
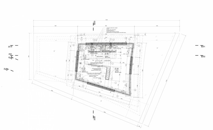
Navržený objekt ležící na hranici lesa je ze tří dalších stran obklopen lukami, přes které se nabízí daleké výhledy na zvlněnou krajinu povltaví u Štěchovic. Urbanismus zohledňuje lichoběžný tvar pozemku, stav vzrostlé zeleně v jihovýchodní části pozemku / resp. okolních pozemků. Tato skutečnost se promítá i do vlastního půdorysu objektu a jeho situování vůči světovým stranám. Snahou bylo získat co největší plochu zahrad orientovaných na nejcennější jihozápadní stranu spolu s navazujícími výhledy.

Výraz domů je soustředěn do hmotové kompozice, siluety na terénu a polohy v horní části pozemku. Architektura domu je řešena v pěti úrovních, vycházející z převýšení pozemku (od vstupu či vjezdu na pozemek stoupá o ca 5,50m). Geometrie hmoty přízemí je v interakci jak s půdorysným tvarem pozemku, tak i vzrostlou zelení propojující horní část pozemku s blízkým lesem. Konkávním prohnutím přízemí na jihozápadní straně dodává domu další terasu, předprostor jídelny a kuchyně, kterou stíní konzolovaný přesah střechy přízemí. Stejný přesah střechy je i při vstupu do objektu (salla terena) podpořen tenkými sloupy.

  • Ateliér: ZNAMENÍ ČTYŘ – ARCHITEKTI
  • Země: Česká republika
  • Realizace: 2019
  • Město: Masečín u Štěchovic
  • Datum projektu: 2012
  • Realizace: 2019
  • Užitná plocha: 180.00m2
Generální partner
Hlavní partneři